
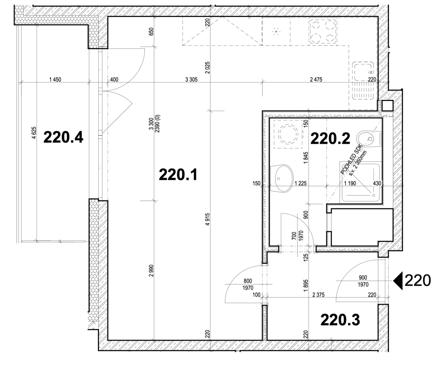
Pronájem bytu 1+kk • 48 m² bez realitkyGerstelova, Praha - Vysočany
Gerstelova, Praha - VysočanyČástečně vybaveno • Výtah • Balkón 7 m² • Sklep 4 m²Vyžadováno pojištění odpovědnostiVyžadováno ověření bezdlužnostiMáte o nabídku zájem?
Ušetřete 21 000 Kč na provizi a komunikujte se všemi majiteli.
Nabízím k pronájmu zcela nový, dosud neobývaný byt 1+kk o rozloze 41 m² + 7 m² balkon. Celkově 48 m² v novostavbě od Central Group, Praha 9 – Vysočany. Byt se nachází ve 4. patře a je ihned k nastěhování.
Byt je částečně zarízený, vybavený novou kuchyňskou linkou s vestavěnými spotřebiči (indukční varná deska, trouba, myčka, lednička s mrazákem, digestoř). Další vybavení bytu je možné dle domluvy. Součástí bytu je balkon a sklepní kóje 4 m².
Podmínky pronájmu:
- Nájemné: 21 000 Kč/měsíc
- Zálohy na služby SVJ: cca 2 500 Kč/měsíc
- Energie (elektřina, plyn): přepis na nájemníka
- Kauce: 40 000 Kč (možnost úhrady ve dvou splátkách)
- Bez provize – pronajímám přímo, bez realitky
Vysočany jsou výborně dostupné MHD (metro B – Českomoravská / Vysočanská) i autem. V okolí kompletní občanská vybavenost – obchody, restaurace, parky, sportovní areály.
V okolí nemovitosti najdete
Máte o nabídku zájem?
Ušetřete 21 000 Kč na provizi a komunikujte se všemi majiteli.
Stále hledáte to pravé?
Nastavte si hlídacího psa. Nabídky vybrané na míru dostanete souhrnně 1× denně e-mailem. S Premium profilem máte k ruce hlídačů rovnou 5 a když se něco objeví, informují vás obratem.

















