Prodej bytu 3+1 • 113 m² bez realitky, Mecklenburg-Vorpommern
, Mecklenburg-VorpommernMHD do minuty pěšky • ParkováníPopis bytu:
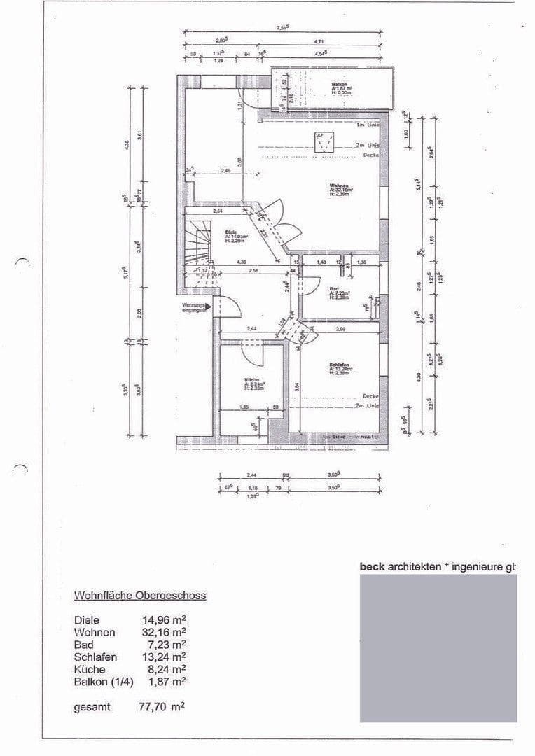
- Maisonette byt v 1. nadzemním podlaží
- Celková obytná plocha 113 m²
- Orientace v domě: na jih–jihozápad
Rozložení 1. úrovně:
- Předsíň, obložená dlažbou, s dekorativním dřevěným schodištěm vedoucím do horního patra
- Obývací pokoj, prostorný a světlý obytný prostor s velkými křídlovými dveřmi, dřevěnou podlahou, krbem, 3 okny a balkonovými dveřmi orientovanými na jihovýchod a jihozápad
- Balkon s volným výhledem přes pole, louky a les až k zálivu ve Wismaru a ostrovu Poel
- Ložnice s laminátovou podlahou, 1 okno směřující na jihozápad
- Vestavěná kuchyň, obložená dlažbou, s indukční varnou deskou, kombinovanou chlazenou mrazákem a lednicí, skříní připomínající apotheku a metlu, dalšími kuchyňskými skříňkami, 1 oknem orientovaným na severozápad
- Koupelna, obložená dlažbou a vybavená sprchovým koutem, vanou, velkým umyvadlem se zrcadlovou skříní, toaletou, prostorem pro pračku, oknem směřujícím na jihozápad
Rozložení 2. úrovně / podkroví:
- Skladovací místnost přístupná z horního schodišťového oblouku
- Prostorný pokoj s laminátovou podlahou, střešní okno s automatickými žaluziemi orientované na jihovýchod
- Sprchová koupelna, obložená dlažbou, s toaletou a umyvadlem, okno orientované na severozápad
Budova:
- Rodinný dům s 4 vlastnickými byty
- Rok výstavby: 1996
- obložený sklep, topení na olej
- Měsíční poplatek (Hausgeld) cca 400 € (včetně topení, vody, fondů, pojištění, domácí elektřiny)
- Energetická spotřeba dle energetického průkazu: 67 kWh/(m²a)
Exteriér:
- Zahrada domu se skladním kůlnou
- Parkovací místo
Pozor!
Další možnou variantou je „výměna“ za byty přizpůsobené stáří, s 2-3 pokoji či o ploše cca 70 – 90 m², ve Wismaru, Schwerinu nebo Rostocku.
Lokalita:
- Okraj města
- přibližně 15 minut pěšky k pláži
- klidná krajina pobřeží Baltského moře
- rekreační oblast nedaleko hanzaovského města Wismar a ostrova Poel
- mezi národním parkem, loukami, poli, lesem, pláží a mořem
- jednoduché nákupní možnosti v obci a autobusová zastávka dosažitelná pěšky za 5 minut
- supermarkety a čerpací stanice ve vzdálenosti pouze 3 km v sousedních obcích a ve 8 km vzdáleném Wismaru
- autobusy jezdí každou hodinu
- Wismar: město světového dědictví, s vynikající infrastrukturou a pestrou kulturní nabídkou














