
Prodej bytu 3+kk • 153 m² bez realitkyReinbeker Redder 57a Hamburg Lohbrügge Hamburg 21031
Vítejte v rezidenční čtvrti „Stará Zahradnictví“
Na adrese Reinbeker Redder 55, 55a, 57, 57a Hamburg, katastrální území Boberg, vzniká nová rezidenční čtvrť „Stará Zahradnictví“ s celkem 71 obytnými jednotkami, rozdělenými do čtyř domů, a podzemní garáží s 64 parkovacími místy.
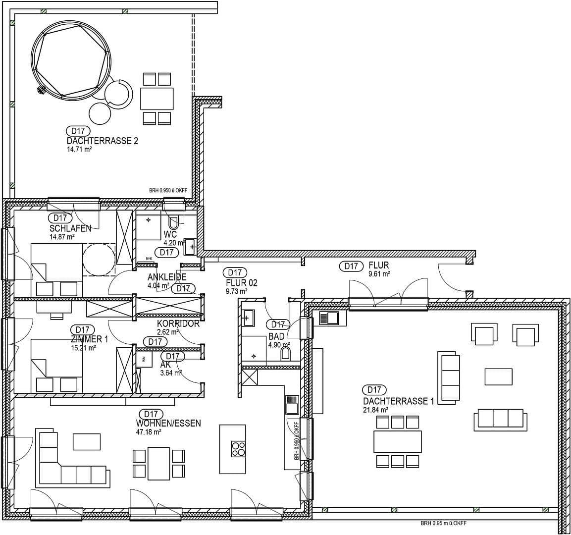
Nabízený byt D17 o dispozici 3,5 pokoje, nacházející se v rezidenční čtvrti „Stará Zahradnictví“, se umístil v patrové části domu D, který obsahuje celkem 20 obytných jednotek. Byt D17 vyniká díky dvěma prostorným střešním terasám. Venkovní vzhled domu je upraven dvěma různými omítkovými barvami. Při návrhu obytných prostor bylo promyšleno mnoho detailů, které zvyšují komfort bydlení.
Nejprve vstoupíte do bytu skrze světlou chodbu s výhledem na vaši jihozápadně orientovanou terasu. Pro vaše hosty nebo děti jsou k dispozici dvě koupelny. Obě koupelny kromě bezprahové sprchy a topných těles pro ručníky disponují satinovým oknem, které zajišťuje přítok denního světla a čerstvého vzduchu.
Umístění ložnice v klidné části obytné čtvrti zaručuje klidné a odpočinkové noci.
Probouzet se ráno v ložnici a mít výhled na 44 m² velkou střešní terasu, která poskytuje dostatek soukromí, bude vždy něco výjimečného.
Jihozápadně orientovaná hlavní střešní terasa o rozloze 65 m² nabízí široké možnosti pro útulné posezení na čerstvém vzduchu.
Tato jedinečná střešní terasa zanechává v bytě trvalý a zvláštní dojem již od prvního vstupu až po pobyt v kuchyni a obývacím pokoji.
Byt D17 může být na vaši žádost připraven k nastěhování s předstihem cca 14 dní.
Prodej probíhá bez provize přímo od developera a je k prohlídce ihned dostupný.
Dokončení čtvrti se předpokládá v červnu 2026.
Vestaveno mezi družstvy drobných zahrádek a rodinnými či vícegeneračními domy se představuje čtvrť „Stará Zahradnictví“.
Lokalita Reinbeker Redder 57a, nacházející se v Hamburgu Boberg, je jak centrální, tak i velmi atraktivní pro život.
Pěšky lze objevit okouzlující okolí, které se nachází nedaleko rekreační oblasti Boberger Dünen a Boberger Ausgleichswiesen.
Na hranici Hamburgu a Šlesvicka-Holštýnska zažijí vaši budoucí nájemníci, kromě centrální polohy mezi hamburským centrem a Hamburg Bergedorf, vysoký volnočasový a zážitkový potenciál.
Krátká cesta do přírody nebo volnočasové aktivity, jako jsou například golf, fitness, tenis, či exkluzivní SPA zařízení Vabali, dodávají této lokalitě velmi vysokou hodnotu pro volnočasové vyžití.
Veřejná hřiště, procházky v přírodě a dostupnost základních služeb v docházkové vzdálenosti dokonale doplňují lokalitu „Stará Zahradnictví“ a činí ji mimořádně atraktivní pro všechny generace.
K tomuto bytu patří také přilehlý sklepní úložný prostor o rozloze cca 7,7 m².
Vybavení:
- Efektivní dům dle standardu bývalého KfW 55
- Výtah z podzemní garáže až po obytná patra
- Podlahové vytápění
- Venkovní rolety u všech oken a terasových dveří
- Stěny s malířským vlivem a bílým nátěrem
- Koupelny: obložené dlažbou, závěsná toaleta, topná tělesa pro ručníky, bezprahové sprchové koutu
- Designový vinylový podlahový kryt s dřevěným vzhledem v obytných a ložnicích
- Vytápění prostřednictvím dálkového tepla
Další informace o vybavení obdržíte při zaslání naší stavební specifikace.
Speciální služby:
- Kuchyně (vlastní realizace): Rádi vám doporučíme našeho dlouholetého dodavatele kuchyňských řešení.
- Parkovací místa v podzemní garáži lze zakoupit již od 35.000,-€ navíc.
Všechny vizualizace, návrhy zařízení, návrhy nábytku, grafiky a rozměry slouží pouze k ilustraci a mají pouze ilustrační charakter, nevytvářejí žádný právní základ.
Krátké informace:
Spolková země: Hamburg, městská část: Hamburg-Lohbrügge – katastrální území Boberg, čtvrť: Stará Zahradnictví – 71 obytných jednotek, budova: Dům B – 15 obytných jednotek, 1. kolárna – 65 parkovacích míst, 2. kolárna – 113 parkovacích míst, podzemní garáž 64 – parkovací místa pro osobní automobily; vzdálenosti: mateřská škola: 1,2 km, základní škola: 1,6 km, kombinovaná škola: 2,8 km, gymnázium: 1,7 km, BG Klinikum: 1,7 km, Praxis Klinik Bergedorf: 3,3 km, Univerzita Hamburg Bergedorf: 4,8 km, City Center Bergedorf: 4,5 km, centrum Reinbeker: 5,4 km, hamburské centrum: 14,5 km, příjezdová cesta A1 Hannover/Lübeck: 3,2 km, příjezdová cesta A24 Berlín: 8,2 km, obchodní zařízení v okolí: 600 m, veřejné hřiště: 450 m.
Stavitelem je developerská společnost Reinbeker Redder 55 mbH.
# Realizaci zajišťuje np Projektentwicklung GmbH z Mölln s více než 25 lety zkušeností ve výstavbě bytových domů.
Kontaktní osobou pro dotazy ohledně tohoto expozé je pan Robert Wolff, np Projektentwicklung GmbH z Mölln.
Impressum
Údaje podle § 5 TMG:
np Projektentwicklung GmbH
Hindenburgstraße 15e
23879 Mölln
Zastoupená:
Pan Marcus Pape – jednatel np Projektentwicklung GmbH
Kontakt:
Telefon: +49 (0) 4542 99 59 10
Fax: +49 (0) 4542 99 59 199
E-mail: info@np-projektentwicklung.de
Zápis do obchodního rejstříku:
Rejstříkový soud: Okresní soud Lübeck
Registrační číslo: HRB 18431 HL




























