
Prodej domu 7+1 • 195 m² bez realitky, Hessen
, HessenMHD 2 minuty pěšky • Parkování • GarážTento dům vám nabízí možnost uskutečnit si své bytové sny. Dům byl zbaven veškerého interiéru a nyní čeká na rekonstrukci přesně podle vašich představ. S potenciální obytnou plochou mezi 196 m² a 250 m² a krásnou, zapojenou zahradou poskytuje tento objekt spoustu prostoru pro individuální uspořádání.
V závislosti na vašich plánech se náklady na rekonstrukci mohou pohybovat až do 500 000 €.
Lokalita
Nemovitost se nachází v klidné rezidenční ulici, převážně lemované rodinnými domy. Okolí nabízí vynikající infrastrukturu:
- Stanice metra U2 (5 minut chůze) – 25 minut do centra Frankfurtu nebo na letiště
- Několik autobusových linek přímo v okolí
- Obchod Rewe, lékárna a pošta v docházkové vzdálenosti
- Pole a oblíbená farma Lindenhof jsou doslova za rohem
- Mezinárodní škola Accadis, mateřské školy, základní škola a gymnázium jsou pohodlně dostupné pěšky nebo na kole
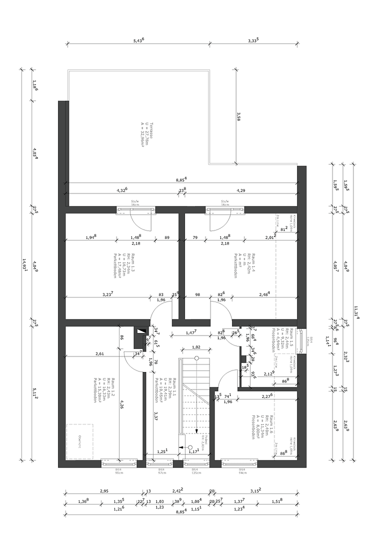
Půdorys a rozmístění pokojů
Přízemí:
- Obývací pokoj a velká kuchyně se posuvnými dveřmi, kterými je kuchyň oddělena od obývacího pokoje. Obě místnosti mají výhled do krásné zahrady.
- Kancelář nebo pokoj pro hosty
- Velká skladovací místnost
- Koupelna se sprchou pro hosty
- Šatna
Půdorys lze podle potřeby upravit tak, aby se v přízemí vytvořila ještě další místnost.
Patro:
- Velká slunná střešní terasa
- 3 místnosti, z nichž 2 mají přímý vstup na terasu směřující k zahradě
- Prostorná rodinná koupelna
Podkroví:
Podkroví lze zrekonstruovat. Plány, statické výpočty a stavební povolení již existují.
Suterén:
- 4 místnosti
Venkovní prostor:
- Velká dvojjí garáž
- Zahrada zapojená do terénu s vysokou mírou soukromí
V ukázkovém filmu a na ukázkových fotografiích uvidíte návrhy interiérového designu vytvořené profesionálními designéry:
https://www.ohne-makler.net/immobilie/309461/panorama/
Zastavte se a nechte se okouzlit tímto domem, který se nachází v jedné z nejžádanějších lokalit v Bad Homburg Ober-Eschbach.
Těšíme se na váš dotaz!
Lokalita je ideální pro rodiny i dojíždějící. Stanice metra Ober-Eschbach je vzdálena jen 5 minut chůze a během 25 minut se dostanete na hlavní stanici ve Frankfurtu nebo na letiště. I pro dovolenou je tato lokalita perfektní.























