Prodej domu • 244 m² bez realitkyDorfstraße, 16 Neuenkirchen Neuenkirchen Mecklenburg-Vorpommern 18569
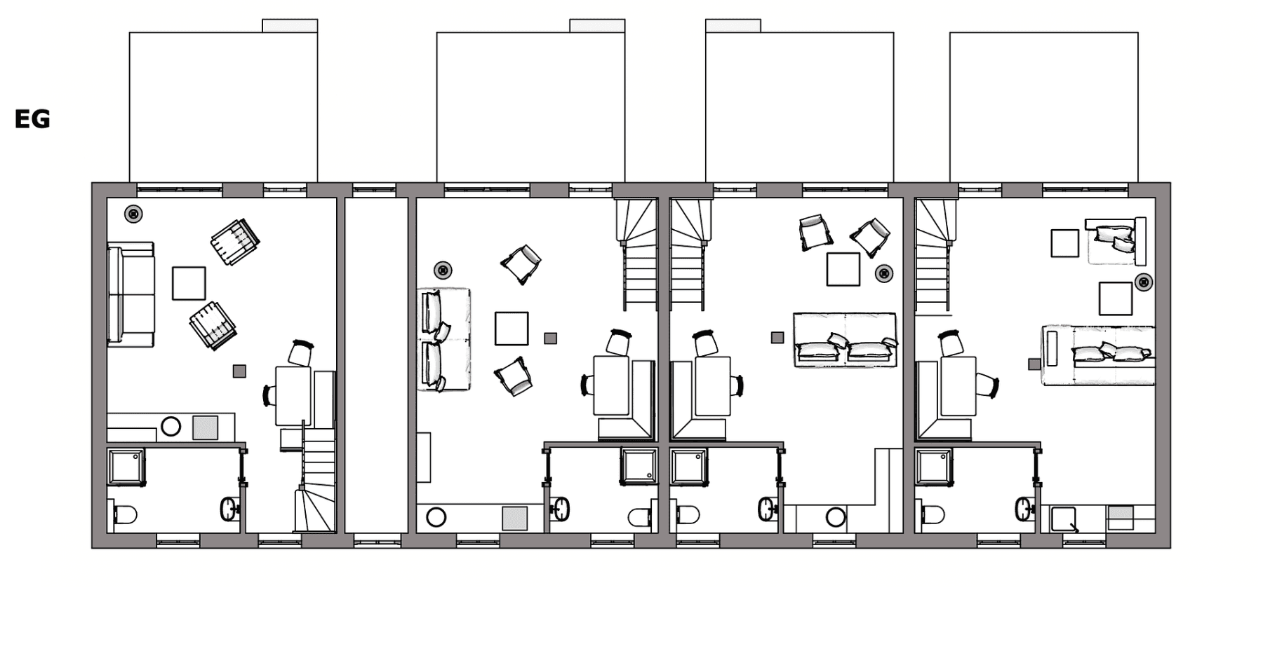
Komplex budov se skládá ze čtyř řadových domů, které nemají sklep. Každá obytná jednotka má vlastní vchod, je schematicky podobně navržena a vybavena: přes velkou terasu s neomezitelným výhledem (směrem na západ) a z 1,3 ha rozlohy pozemku se vstupuje do světlého, útulného obytného prostoru, který zaujme historickým trámovým obložením – připomínkou staré vesnické pekárny. Na základech jejího fundamentu/zdiva byl v letech 2002/03 postaven nový objekt, který byl od počátku koncipován jako rekreační rezidence.
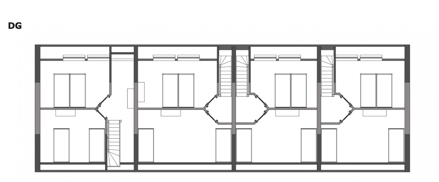
Mimochodem, vůně pece: Plně a kvalitně vybavené otevřené kuchyně postrádají cokoli, co by mohlo chybět. Jídlo se podává ve venkovském jídelním koutku. Na každé východní straně s velkými okny se nachází koupelna se sprchou a WC (sprchové kabiny 2023). Dřevěné schodiště vede do půdního patra, kde se nacházejí dvě prostorné ložnice.
Masivní zahradní domek o rozloze cca 35 m² slouží v současnosti jako sklad, ale mohl by být přeměněn také na pátou rekreační jednotku. (Všechna připojení kromě kanalizace již jsou k dispozici.) Navíc velká samostatně stojící garáž s přístřeškem na grilování nabízí dostatek prostoru – a to nejen pro zahradní nářadí, sekačku na trávu či dílnu.
Ozvláštnění „tajný tip“ pro Neuenkirchen a tento objekt v severozápadní, vnitřní rügenské oblasti Bodden může znít trochu jako klišé, ale pro tento idylický koutek je to vyloženě vhodné! Jemný cestovní ruch zde nadále slibuje „vyhlídavý“ odpočinek v pečlivě udržované a dobře rozvinuté rekreační oblasti – pro budoucí majitele i jejich hosty.
Ta malá vesnička se svými rozptýlenými usedlostmi není sterilní kolonií rekreačních domů, nýbrž kousek nedotčeného světa. Bullerbü na Rügu! S vynikajícím hostincem, nápomocným obchodníkem, jedním z nejkrásnějších vesnických kostelů na ostrově, dvěma přístavy… vše zasazené mezi mírnými kopci a chráněnými rozvětvenými lagunami, u nás nazývanými Bodden.
Po domluvě může být převzato veškeré kvalitní zařízení, kompletní vybavení a osvědčená infrastruktura (software, internetová prezentace, servis apod.) – pro úspěšný start do příští sezóny.
Centrální topný systém tvoří plynový kondenzační kotel značky Vaillant (zkapalněný plyn, 2013) s 200 litrovým zásobníkem teplé vody. Tím budova již splňuje energetickou třídu D. Od roku 2023 je v domě k dispozici širokopásmové internetové připojení, momentálně o rychlosti 25 Mbit se sítí Wi-Fi.
Nabídky od makléřů nejsou výslovně žádány. Jedná se o nabídku k prodeji od soukromého poskytovatele/provozovatele. Abychom zabránili podezřelým kontaktům, prosíme o pochopení, že odpovídáme pouze na personalizované dotazy s kompletně ověřitelnou adresou. Dodržujeme zákonné předpisy o ochraně osobních údajů.
Vše ostatní sdělíme po vzájemné domluvě. Rádi vám zašleme podrobný informační materiál s aktuálními hospodářskými údaji, měřítkovými nákresy a samozřejmě přesnou adresou. Prosíme o diskrétnost a tuto můžete od nás také očekávat…
Parametry nemovitosti
| Stáří | Nad 50 let |
|---|---|
| Stav | Dobrý |
| PENB | D - Méně úsporná |
| Plocha pozemku | 13 600 m² |
| Cena za jednotku | 2 807,38 € / m2 |
| Dostupné od | 16. 4. 2026 |
|---|---|
| Číslo inzerátu | 1012830 |
| Užitná plocha | 244 m² |
| Celkem podlaží | 2 |
Co tato nemovitost nabízí?
| Garáž | |
| Parkování | |
| Terasa |
| MHD 4 minuty pěšky |

















































