
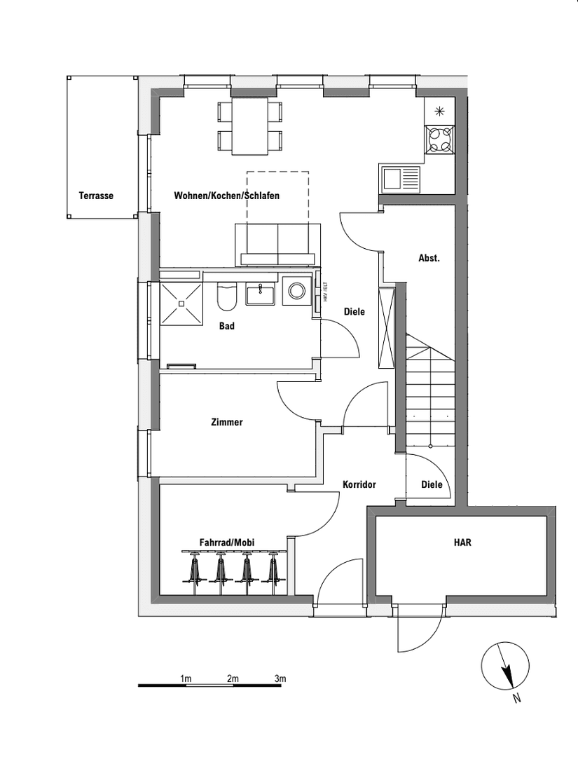
Pronájem bytu 2+1 • 46 m² bez realitkyTempelhofer Str. 8, , Braniborsko
Tempelhofer Str. 8, , BraniborskoMHD 4 minuty pěšky • ParkováníTento moderní novostavba rezidenční development se skládá celkem ze 92 bytových jednotek, rozložených v 23 dvoupodlažních budovách. Projekt je štědře naplánován a harmonicky zapadá do zeleného a klidného okolí.
Byty působí díky promyšlenému, praktickému dispozici, která je navržena pro každodenní život a nabízí pohodlné bydlení s dostatkem světla, prostoru i soukromí. Každá jednotka disponuje vlastní soukromou zahrádkou, která poskytuje další venkovní prostor – ideální pro relaxaci, hraní nebo užívání si pokojných chvil venku.
Pro větší pohodlí má každý byt přidělené vyhrazené parkovací místo, což zajišťuje snadné a bezproblémové parkování přímo u domu.
Celý projekt je vyvíjen podle moderního standardu KfW 40 QNG+, který vyhovuje nejvyšším požadavkům na energetickou efektivitu a udržitelnost. To zaručuje příjemné vnitřní klima a současný komfort bydlení spojený s nízkou spotřebou energie.
Celkově development vytváří klidné, rodinné obytné prostředí, které kombinuje moderní způsob života s úzkým spojením s přírodou – ideální pro ty, kteří oceňují pohodlí, zeleň a uvolněnou atmosféru bydlení.
Novostavby se nacházejí v klidné a vyspělé obytné oblasti v Zossenu. Okolí je charakterizováno rodinnými domy, bohatou zelení a příjemnou, pro rodiny vhodnou čtvrtí v kombinaci s vynikající infrastrukturou.
Zvláštní výhodou lokality je skvělé místní zázemí: supermarket Netto se nachází přímo naproti nemovitosti, zatímco mateřská škola je vzdálena méně než 100 metrů a je snadno dosažitelná pěšky – ideální pro každodenní pohodlí.
Město Zossen leží pouhých 20–30 km jižně od hranic Berlína, což nabízí vynikající kombinaci klidného, přírodově orientovaného bydlení a pohodlného přístupu k metropoli. Dojíždějící cestující ocení blízkost státní silnice B96 a dálnice A13, které zajišťují rychlé spojení do Berlína i na letiště Berlín Brandenburg (BER).
Díky vylepšenému železničnímu spojení zavedenému v roce 2025 (včetně dalšího okruhu v regionálních dopravních službách) byla dále zvýšena dostupnost městské hromadné dopravy. Díky tomu je možné se z Zossenu dostat na letiště Berlín Brandenburg (BER) za přibližně 40 minut, což činí lokalitu obzvláště atraktivní pro dojíždějící i časté cestovatele.
V širším okolí najdou obyvatelé i školy, lékaře, lékárny a další nákupní možnosti, které zajišťují dobře rozvinutou a pohodlnou infrastrukturu.
Idylické okolí s četnými zelenými plochami a jezery nabízí vysokou rekreační hodnotu a zve obyvatele k procházkám, sportovním aktivitám nebo jednoduše k odpočinku po náročném pracovním dni.
- Terasa se sousední soukromou pronajatou zahrádkou
- Venkovní parkovací místo
- Včetně vestavěné kuchyně
- Úložný prostor uvnitř bytu
- Vnější žaluzie na všech oknech
- Trojskla
- Dřevěné podlahy, dlažbená koupelna
- Podlahové vytápění ve všech místnostech
- Úložná místnost na kola v přízemí
Znázornění bytů, často doplněné obrázky ukázkové bytu. Veškeré změny jakéhokoli druhu jsou vyhrazeny. Všechny údaje v textu a na obrázcích slouží pouze k předběžné informaci a nerodí smluvní nabídku ani nezaručují vlastnosti nemovitosti.
V okolí nemovitosti najdete
Stále hledáte to pravé?
Nastavte si hlídacího psa. Nabídky vybrané na míru dostanete souhrnně 1× denně e-mailem. S Premium profilem máte k ruce hlídačů rovnou 5 a když se něco objeví, informují vás obratem.






