
Pronájem bytu 2+1 • 46 m² bez realitkyTempelhofer Str. 8, , Braniborsko
Tempelhofer Str. 8, , BraniborskoMHD 4 minuty pěšky • ParkováníNovostavba se jedná o moderní obytnou čtvrť, skládající se z celkem 92 obytných jednotek rozložených do 23 dvoupodlažních domů. Celý komplex je prostorně navržen a harmonicky zapadá do zeleného, klidného prostředí.
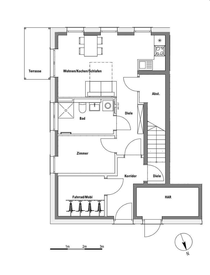
Byty vynikají promyšleným, každodenním designem a nabízejí příjemný pocit z bydlení s dostatkem světla, prostoru a soukromí. Každá jednotka disponuje vlastní částí zahrady, která vytváří další volný prostor v zeleném prostředí – ideální pro relaxaci, hraní nebo příjemné chvíle venku.
Pro zvýšení komfortu je ke každému bytu přiřazeno vlastní parkovací místo, takže parkování přímo u bydliště je bezproblémové.
Celý projekt je realizován dle moderního standardu KfW-40 QNG+ a tím splňuje nejvyšší nároky na energetickou účinnost a udržitelnost. To zajišťuje příjemné vnitřní klima a zároveň moderní úroveň bydlení při nízké spotřebě energie.
Celkově vzniká klidné, rodinně orientované obytné prostředí, které spojuje moderní bydlení s propojením s přírodou – ideální pro ty, kteří si cení komfortu, zelených ploch a uvolněné atmosféry.
Nové byty se nacházejí v klidné a ustálené obytné zóně v Zossenu. Okolí je charakterizováno rodinnými domy, hojností zeleně a příjemným, rodinně přátelským sousedstvím, spojeným s výbornou infrastrukturou.
Výhodou lokality je také vynikající dostupnost základních služeb: Supermarket Netto se nachází přímo naproti, zatímco školka je snadno dosažitelná pěšky do 100 metrů – ideální pro každodenní potřeby.
Zossen se nachází přibližně 20–30 km jižně od berlínských hranic a nabízí tak úspěšnou kombinaci bydlení blízko přírody a dobré dostupnosti hlavního města. Dojíždějící mají navíc výhodu díky blízkosti k silnici B96 i dálnici A13, díky čemuž lze Berlín a letiště BER snadno dosáhnout během krátké doby.
Díky zlepšení železniční dopravy plánovanému na rok 2025 (doplňující dodatečná odbočka v regionální dopravě) se zlepšila dostupnost veřejné dopravy. Letiště BER je tak ze Zossenu dosažitelné přibližně za 40 minut, což činí lokalitu obzvláště atraktivní pro dojíždějící pracovníky a časté cestovatele.
V blízkém okolí rovněž najdete školy, lékaře, lékárny a další možnosti nákupů, což zaručuje výbornou infrastrukturu.
Idylické prostředí s četnými zelenými plochami a jezery nabízí vysokou míru relaxace a zve k procházkám, sportovním aktivitám nebo prostému odpočinku po náročném pracovním dni.
- Terasa s přilehlou, oddělenou zahradou k pronájmu
- Venkovní parkovací stání
- Včetně vestavěné kuchyně
- Úložný prostor v bytě
- Trojitě zasklená okna
- Venkovní žaluzie na všech oknech
- Dřevěná podlaha, obklady v koupelně
- Podlahové vytápění ve všech místnostech
- Přízemní přístup do místnosti na kola
Ilustrace bytů často rovněž obsahují fotografie ukázkového bytu. Veškeré změny jsou vyhrazeny. Všechny údaje v textu a na fotografiích slouží pouze jako předběžná informace a nepředstavují ani smluvní nabídku, ani záruku vlastností.
V okolí nemovitosti najdete
Stále hledáte to pravé?
Nastavte si hlídacího psa. Nabídky vybrané na míru dostanete souhrnně 1× denně e-mailem. S Premium profilem máte k ruce hlídačů rovnou 5 a když se něco objeví, informují vás obratem.






