
Prodej bytu 3+1 • 83 m² bez realitkyBayreuth Bayreuth Bayern 95447
Mit diesem Exposé präsentieren wir Ihnen zwei ausbaufähige Rohdachböden in attraktiver Lage von Bayreuth. Die Einheiten befinden sich in einem äußerst gepflegten Mehrfamilienhaus, das über eine Öl-Zentralheizung Baujahr 2024 beheizt wird.
V tomto expozé Vám představujeme dva nedokončené půdorysy k rozšíření, nacházející se v atraktivní lokalitě Bayreuthu. Jednotlivé jednotky se nacházejí v mimořádně dobře udržovaném vícefamilijním domě, který je vytápěn centrálním olejovým topným systémem z roku 2024.
In den Jahren 2025/2026 wurde durch den derzeitigen Eigentümer eine umfassende Aufwertung des Treppenhauses vorgenommen. In diesem Zuge wurden Wände, Decken, Treppen sowie die Wohnungseingangstüren überarbeitet und neu gestrichen. Darüber hinaus wird die Hauseingangstür in Kürze vollständig erneuert, was den positiven Gesamteindruck des Hauses zusätzlich unterstreicht.
V letech 2025/2026 provedl současný vlastník komplexní renovaci schodiště. V rámci těchto prací byly renovovány a znovu natřeny stěny, stropy, schody i vstupní dveře do bytů. Navíc bude v krátké době zcela vyměněna vstupní dveře do domu, což dále podtrhuje celkově pozitivní dojem z budovy.
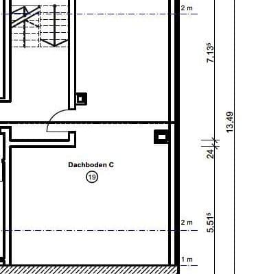
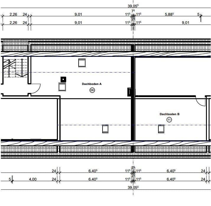
Die Dachböden überzeugen insbesondere durch ihre großzügige Giebelhöhe und eröffnen vielfältige Möglichkeiten für einen individuellen Ausbau. Durch den Ausbau und die Zusammenlegung der beiden Einheiten lässt sich eine vermietbare Fläche von bis zu ca. 83 m² realisieren.
Půdorysy zaujmou především svou prostornou šikmou střechou, která nabízí řadu možností pro individuální přestavbu. Rozšířením a sloučením obou jednotek je možné vytvořit pronajímatelnou plochu až přibližně 83 m².
Die grundsätzliche Genehmigung bzw. Zustimmung zum Ausbau seitens der Eigentümergemeinschaft liegt bereits vor und ist entsprechend in der Teilungserklärung des Mehrfamilienhauses verankert. Eine etwaige baurechtliche Genehmigung für den Ausbau ist vom Käufer eigenständig bei der Stadt einzuholen.
Základní povolení či souhlas ke změně již existuje ze strany společenství vlastníků, což je zakotveno v prohlášení o rozdělení vícefamilijního domu. Případné stavební povolení pro přestavbu je však nutné, aby si kupující vyřídil sám na městě.
Zusätzlich zu den Dachböden können bei Bedarf bis zu 2 Einzelgaragen im Innenhof des Mehrfamilienhauses dazu erworben werden (+12.000€ je Einzelgarage).
Kromě půdorysů je možné dle potřeby zakoupit až 2 samostatné garáže v dvoře vícefamilijního domu (+12 000 € za každou garáž).
Dem Dachboden ist zudem ein eigenes Kellerabteil zugeordnet.
Půdorysu náleží také vlastní sklepní kóje.
Die Immobilie befindet sich in einem sehr gepflegten Mehrfamilienhaus im schönen und begehrten Bayreuth.
Nemovitost se nachází v velmi udržovaném vícefamilijním domě v krásném a žádaném Bayreuthu.
Die Lage verbindet die Vorteile der Innenstadt mit einer angenehmen Wohnqualität: Einkaufsmöglichkeiten, Gastronomie, Nah- und Freizeitangebote befinden sich in fußläufiger Nähe, wodurch ein hoher Wohnkomfort gegeben ist.
Lokalita spojuje výhody centra s příjemnou kvalitou bydlení: obchody, gastronomie, a také možnosti volnočasových aktivit jsou v docházkové vzdálenosti, což zajišťuje vysoký komfort bydlení.
Öffentliche Verkehrsmittel sind gut erreichbar.
Veřejná doprava je snadno dostupná.
- Ölzentralheizung Baujahr 2024
- Ideálna přestavba půdorysu
- Schodiště zrevitalizováno v roce 2025
- V roce 2026 proběhne obnova vstupních dveří do domu
- Vícefamilijní dům z roku 1964
- Není chráněný památkou
- Poloha v blízkosti centra (několik minut chůze do historického centra)
- Optimální napojení na místní veřejnou dopravu
- Možnost moderního dispozice bytu
- 2. patro
- Vlastní sklepní kóje






