
Prodej bytu 3+1 • 94 m² bez realitkyBayreuth Bayreuth Bayern 95447
Tímto expozé Vám představujeme nedokončenou půdu s potenciálem rozšíření, která se nachází v atraktivní lokalitě Bayreuthu. Jednotka je situována v pečlivě udržovaném bytovém domě, který je vytápěn centrálním olejovým topením z roku 2024.
V letech 2025/2026 provedl současný vlastník komplexní rekonstrukci schodiště. Při této rekonstrukci byly opracovány a nově natřeny stěny, stropy, schodiště a vstupní dveře do bytů. Navíc bude hlavní vchod do domu brzy kompletně vyměněn, což ještě více podtrhuje celkově prémiový dojem nemovitosti.
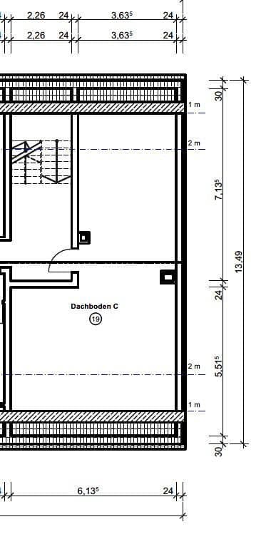
Půda zaujme zejména díky své prostorné šikmé stropní výšce a nabízí vynikající předpoklady pro individuální úpravu. Celkově může být při přestavbě realizováno až přibližně 94 m² pronajímatelné plochy (včetně prostoru v horní části půdy).
Souhlas s úpravou ze strany společenství vlastníků již byl udělen a je závazně stanoven v prohlášení o rozdělení bytového domu. Případné stavební povolení potřebné pro rekonstrukci je však nutno, aby si kupující sám zajistil u města.
Kromě půdního prostoru lze v případě potřeby dokoupit jednu samostatnou garáž v nádvoří bytového domu (+12.000 € za každou garáž).
Půdní prostor je navíc spojen s vlastní sklepní kójí.
Nemovitost se nachází v velmi udržovaném bytovém domě v krásném a žádaném Bayreuthu. Lokalita kombinuje výhody centra města s příjemnou kvalitou bydlení: možnosti nakupování, gastronomie, služby v okolí a volnočasové aktivity jsou dosažitelnější pěšky, což zajišťuje vysoký komfort bydlení.
Veřejná doprava je rovněž dobře dostupná.
Hlavní přednosti:
• Centrální olejové topení z roku 2024
• Ideálně využivatelná půda s možností rekonstrukce
• V roce 2025 renovované schodiště
• V roce 2026 výměna hlavních vchodových dveří
• Bytový dům z roku 1969
• Nemovitost není chráněna jako památka
• Lokalita blízko centra (pár minut do historického centra)
• Optimální dostupnost veřejné dopravy
• Možnost moderního řešení dispozice
• 2. patro
• Vlastní sklepní kóje





