
Prodej domu • 182 m² bez realitky, Porýní-Falc
, Porýní-FalcMHD do minuty pěšky • ParkováníCena dle jednání | Skvělá příležitost! Reagujte nyní, než se úroky zvýší!
Tento rodinný dům v srdci Waldalgesheimu byl kompletně zmodernizován a nabízí domov s hmatatelnou historií. Velký dům s mnoha pokoji, dvěma koupelnami a živou, autentickou atmosférou.
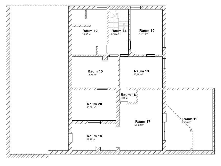
Dům se rozkládá přibližně na 182 m² obytné plochy přes několik úrovní, charakterizovaných proměnlivým rozmístěním místností a plynulými přechody. Různě tvarované místnosti poskytují široké možnosti využití – ať už jako obytné, spací, pracovní nebo hostinské prostory. Srdcem domu je prostorná obývací a jídelní část s krbem, který vytváří útulnou atmosféru a slouží jako přirozené centrum setkávání. Odtud je přímý přístup na terasy, které harmonicky rozšiřují obytný prostor ven.
V průběhu modernizace byl objekt postupně a s respektem k jeho původní podstatě dále rozvíjen. V první fázi proběhla komplexní rekonstrukce celého suterénu i obytné části domu, včetně nových podlah, povrchů a koupelen. Ve druhé fázi byly terasy přepracovány: Na velké střešní terase vznikl prvotřídní wellness prostor se saunou, venkovní sprchou a stylovou venkovní kuchyní, doplněný o další krytou terasu. Tak se vytvořil soukromý prostor pro odpočinek a volný čas, který umožňuje jak relaxaci, tak i společenské setkávání.
Původní charakter domu byl přitom vždy zachován, zatímco současně přišel moderní komfort bydlení, podpořen spolehlivým plynovým topením. Ve třetí plánované fázi modernizace má být konečně dokončena výstavba parkovacích míst pro automobily.
Nemovitost se nachází centrálně v historickém jádru Waldalgesheimu a spojuje klidné bydlení s vynikající dostupností. Jen za přibližně tři minuty se dostanete na dálnici A61, díky níž jsou Bingen, Bad Kreuznach a okolní obce rychle dosažitelné – ideální pro dojíždějící.
Obyvatelé zároveň profitují z krátkých každodenních cest: několik pekáren, velký obchodní řetězec EDEKA a autoškola jsou v docházkové vzdálenosti. I mateřská škola a základní škola jsou pohodlně dostupné pěšky, což činí lokalitu obzvláště rodinnou. Lékaři, lékárny a autobusové zastávky se nacházejí také v bezprostřední blízkosti.
Celkově lokalita nabízí úspěšnou kombinaci vesnického charakteru, dobré infrastruktury a optimální dopravní dostupnosti – atraktivní kombinaci pro rodiny, páry i dojíždějící.
Dům byl v letech 2025/2026 postupně a pečlivě modernizován s důrazem na kvalitu, funkčnost a komfort bydlení. V první fázi proběhla komplexní rekonstrukce celého suterénu a podstatných částí obytné části domu, přičemž byly obnoveny podlahy, povrchy a koupelny, aniž by byl narušen původní charakter historické budovy.
Zvláštní pozornost byla věnována přepracování venkovních prostor: Prostorná střešní terasa byla přestavěna na prvotřídní wellness a volnočasový prostor. Zde se nachází sauna, stylová venkovní sprcha a plně vybavená venkovní kuchyně, která je ideální jak pro relaxační chvíle, tak pro společenské večery. K tomu je přidána druhá krytá terasa, která poskytuje další prostor pro pobyt na čerstvém vzduchu.
Příjemné teplo a spolehlivou zásobu energií zajišťuje moderní plynové topení. Dům je navíc připojen na optickou síť, a tak je ideálně vybaven pro práci z domova či digitální práci.
Ve třetí fázi modernizace je plánováno konečné vybudování parkovacích míst pro automobily, čímž bude celkový areál dále vylepšen.
Parametry nemovitosti
| Stáří | Nad 50 let |
|---|---|
| Stav | Po rekonstrukci |
| Užitná plocha | 182 m² |
| Celkem podlaží | 4 |
| Dostupné od | 26. 4. 2026 |
|---|---|
| Číslo inzerátu | 1014334 |
| Plocha pozemku | 100 m² |
| Cena za jednotku | 2 335,16 € / m2 |
Co tato nemovitost nabízí?
| Balkón | |
| MHD 0 minut pěšky |
| Sklep | |
| Parkování | |
| Terasa |





































