
Pronájem bytu 3+1 • 94 m² bez realitkyAmerstorfferstr. 29 München Obergiesing Bayern 81549
Amerstorfferstr. 29 München Obergiesing Bayern 81549MHD 4 minuty pěšky • Parkování • GarážDiese wunderschöne und großzügige 3-Zimmer-Wohnung mit Garten, Balkon, Garage, Stellplatz und großem Hobbyraum steht ab Mitte Mai zur Verfügung.
Tento nádherný a prostorný 3-pokojový byt se zahradou, balkonem, garáží, parkovacím místem a velkou hobby místností bude k dispozici od poloviny května.
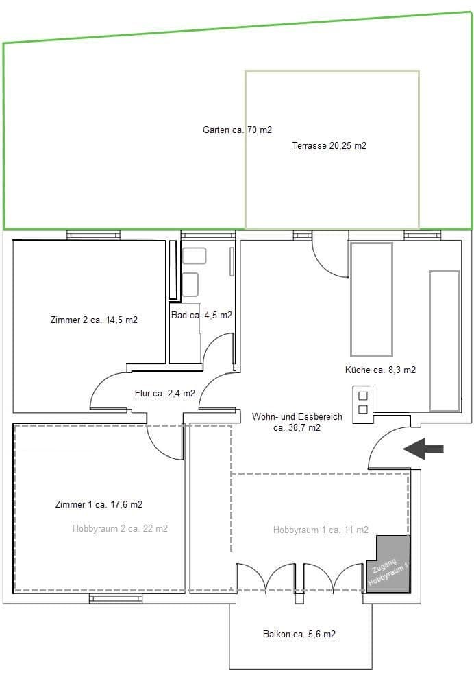
Über den Eingangsbereich gelangen Sie in den großzügigen, lichtdurchfluteten Wohn- und Essbereich mit breiten bodentiefen Fensterfronten. Auf der Westseite befindet sich ein großer Balkon mit Abendsonne, auf der Ostseite der direkte Zugang zum eigenen, ruhig gelegenen Garten mit hochwertiger Terrasse aus italienischen Designfliesen. Für zusätzlichen Komfort sorgt ein Mähroboter. Die offene Küche überzeugt mit einer hochwertigen Design-Inselküche mit erstklassigen Markengeräten und edler Naturstein-Arbeitsplatte.
Přes vstupní halu se dostanete do prostorné a světlé obývací a jídelny s širokými stěnovými okny sahajícími téměř až ke zemi. Na západní straně se nachází velký balkon s večerním sluncem, na východní straně máte přímý vstup do vlastní, klidně umístěné zahrady s kvalitní terasou z italských designových dlaždic. Pro dodatečný komfort zajišťuje péči robotická sekačka. Otevřená kuchyně zaujme vysoce kvalitní designovou ostrovní kuchyní se špičkovými značkovými spotřebiči a elegantní pracovní deskou z přírodního kamene.
Zur Wohnung gehören zwei helle Schlafzimmer (ca. 17 qm und ca. 14 qm). Das helle Tageslichtbad überzeugt mit einer großzügigen Walk-in-Wellnessdusche und hochwertiger Glasabtrennung. Alle Räume verfügen über Fußbodenheizung, auch die Hobbyräume. Über eine platzsparende Treppe ist das Untergeschoss mit zwei Hobbyräumen, einer davon mit Fenster, direkt erreichbar; über die Hobbyräume besteht ein privater Zugang zum Keller. Elektrische Rollläden an allen Fenstern sowie Balkon- und Gartentüren. Dank energieeffizienter Bauweise und moderner Technik bleiben die Nebenkosten mit ca. 210 € angenehm niedrig.
Byt zahrnuje dvě světlé ložnice (přibližně 17 m² a 14 m²). Světlá koupelna se pyšní prostornou wellness sprchou s volným vstupem a kvalitním skleněným oddělovačem. Všechny místnosti mají podlahové topení, včetně hobby místností. Prostřednictvím úložného schodiště je přízemí s dvěma hobby místnostmi – jedna z nich má okno – přímo přístupné; přes hobby místnosti je zabezpečen soukromý vstup do sklepa. Všechna okna, stejně jako balkonové a zahradní dveře, jsou vybavena elektrickými roletami. Díky energeticky úsporné stavbě a moderní technice zůstávají vedlejší náklady s přibližně 210 € příjemně nízké.
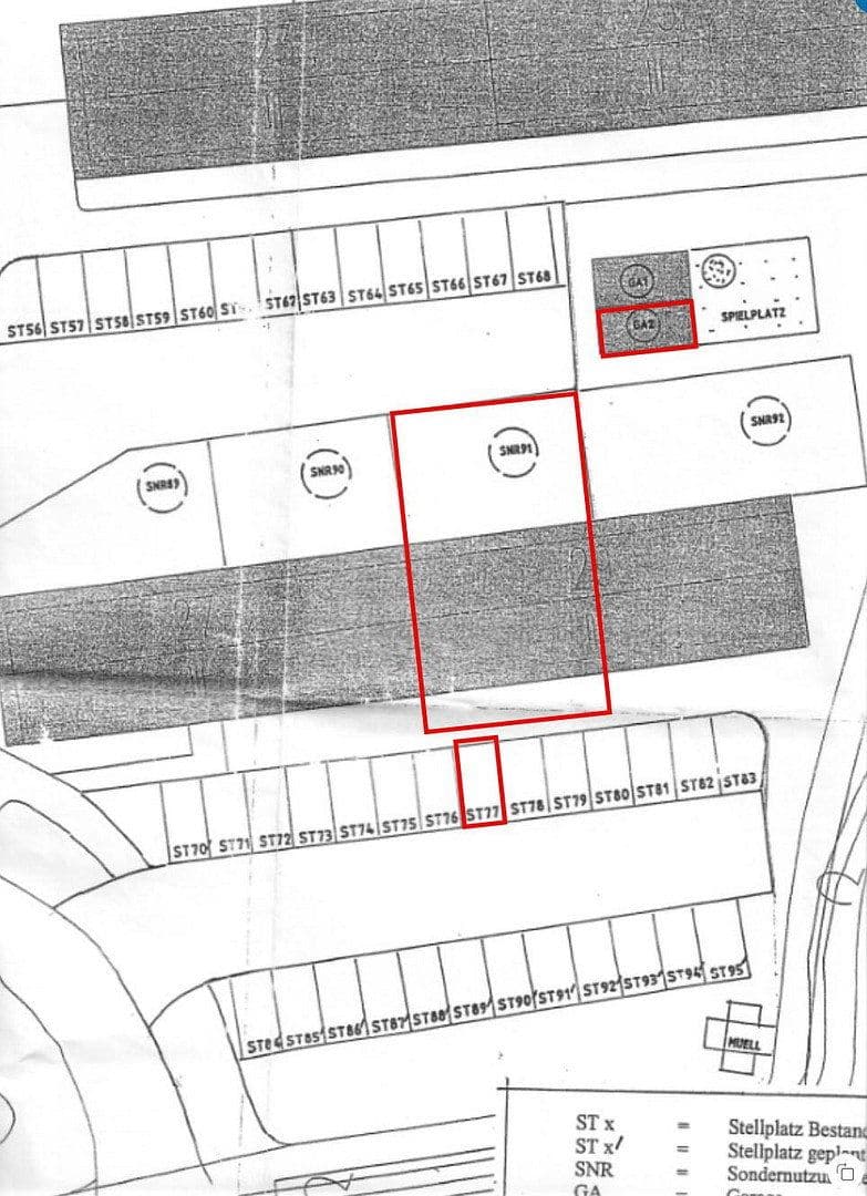
Stellplatz direkt vor der Haustür sowie Kellerabteil mit Fenster vorhanden (zusätzlich zu den Hobbyräumen). Die alleinige Nutzung von Garten, Stellplatz und Garage ist enthalten. Die Garage verfügt über Starkstromanschluss (Wallbox geeignet) und Wasseranschluss.
Součástí bytu je parkovací místo přímo před domem a sklepní kóje s oknem (kromě hobby místností). Využívání zahrady, parkovacího místa a garáže je výhradní a je zahrnuto v nabídce. Garáž je vybavena třífázovým elektrickým přípojkou (vhodná pro wallbox) a připojením na vodu.
Wohnfläche: 85,7 qm zzgl. anteilig Balkon und Terrasse = 93,5 qm. Balkon ca. 5,6 qm, Terrasse ca. 20 qm. Garten mit Terrasse ca. 70 qm. Hobbyräume (ca. 11 qm und 22 qm) sind keine Wohnräume, bieten jedoch vielseitige Nutzungsmöglichkeiten. Im großen Hobbyraum befinden sich Bulthaup-Hängeschränke.
Obytná plocha činí 85,7 m² plus podíl na balkoně a terase, což dává celkem 93,5 m². Balkon má přibližně 5,6 m², terasa cca 20 m², a zahrada s terasou zhruba 70 m². Hobby místnosti (cca 11 m² a 22 m²) nejsou určeny k bydlení, ale nabízejí široké možnosti využití. Ve velké hobby místnosti jsou umístěny závěsné skříně značky Bulthaup.
Die Wohnung befindet sich aktuell in der finalen Fertigstellung und wird in hochwertigem Zustand übergeben.
Byt se aktuálně nachází ve finální fázi dokončovacích prací a bude předán ve velmi kvalitním stavu.
Die Wohnung liegt im Süden Münchens im beliebten Stadtteil Obergiesing in einer ruhigen Anliegerstraße. Der Perlacher Forst sowie die Isar sind in wenigen Minuten erreichbar und bieten hohen Freizeitwert im Grünen.
Gleichzeitig besteht eine hervorragende Anbindung: Die U-Bahn-Station U1 Mangfallplatz ist fußläufig erreichbar (dann ca. 10 Minuten zum Hauptbahnhof). Auch die Buslinien 139, 220 und N75 sind schnell erreichbar.
Sehr gute Anbindung an die A8 und den Mittleren Ring. Einkaufsmöglichkeiten, Schulen und Kindergärten, inkl. der Europäischen Schule, befinden sich in unmittelbarer Nähe.
Byt se nachází na jihu Mnichova v oblíbené čtvrti Obergiesing, na klidné ulici určené pro rezidenty. Perlacher Forst i řeka Isar jsou dosažitelné během několika minut a poskytují bohaté možnosti pro volnočasové aktivity v přírodě.
Kromě toho má byt vynikající dopravní spojení: Stanice metra U1 Mangfallplatz je dosažitelná pěšky (poté cca 10 minut do hlavního nádraží). Rychle dostupné jsou také autobusové linky 139, 220 a N75.
Výborné spojení s dálnicí A8 a středním kruhovým obvodem. Obchody, školy a školky – včetně Evropské školy – se nachází v bezprostřední blízkosti.
Highlights:
• Hochwertig kernsanierte, energieeffiziente Wohnung mit eigenem Garten (~70 qm) + Terrasse + Balkon
• Offene Wohnküche mit hochwertiger Designküche und Premiumgeräten (Induktionskochfeld, AEG Dampf-Backofen, AEG Kombi-Mikrowelle, AEG Kaffeevollautomat, Bosch Kühl-/Gefrierkombination, Bosch Geschirrspüler, Blanco Wasseraufbereitungsanlage für gefiltertes kaltes und Sprudelwasser)
• Modernes Bad mit bodentiefer Walk-In Dusche mit Grohe Wellness-Regendusche und Glasabtrennung, Villeroy & Boch Sanitär, großformatige Fliesen von Cotto D'Este, Fenster
• Extra breite Eichenparkett-Dielen und italienische Großformatfliesen
• Fußbodenheizung in allen Räumen inkl. Hobbyräume
• Großer Hobbyraum (~33 qm gesamt)
• Bodentiefe Fenster mit elektrischen Rollläden
• Neue energieeffiziente Fenster und neue Elektrik
• Elektrische Rollläden an allen Fenstern, Balkon- und Gartentür
• Kabel-, DSL- und Glasfaseranschluss
• Stellplatz vor der Haustür + Garage mit Starkstrom (Wallbox geeignet) und Wasseranschluss
• Zentralheizung (Fernwärme)
• Mähroboter von Gardena im Garten
• Niedrige Nebenkosten (~210 €)
• Gepflegte Wohnanlage
• Fotografie ukazují aktuální stav výstavby; dokončení proběhne v krátké době.
Hlavní přednosti:
• Vysoce kvalitně zrekonstruovaný, energeticky efektivní byt s vlastní zahradou (~70 m²) + terasa + balkon
• Otevřená kuchyň spojená s obývacím prostorem vybavená špičkovou designovou kuchyní a prémiovými spotřebiči (indukční varná deska, parní trouba AEG, kombinovaná mikrovlnná trouba AEG, plnoautomatický kávovar AEG, kombinovaná chladnička/smraznička Bosch, myčka nádobí Bosch, zařízení Blancо na úpravu vody pro filtrovanou studenou a perlivou vodu)
• Moderní koupelna s podlahovou sprchou typu „walk-in“ se sprchou Grohe Wellness-Regendusche a skleněným oddělovačem, sanitární keramika od Villeroy & Boch, velkoformátové dlaždice od Cotto D’Este, okna
• Extra široké dubové parkety a italské velkoformátové dlaždice
• Podlahové topení ve všech místnostech včetně hobby místností
• Velká hobby místnost (~33 m² celkem)
• Okna až ke podlaze s elektrickými roletami
• Nová energeticky úsporná okna a nová elektroinstalace
• Elektrické rolety na všech oknech, balkonových a zahradních dveřích
• Připojení pro kabelovou televizi, DSL a optické vlákno
• Parkovací místo přímo před domem + garáž s třífázovým přípojením (vhodná pro wallbox) a vodovodním připojením
• Centrální vytápění (městské teplo)
• Robotická sekačka Gardena pro údržbu zahrady
• Nízké provozní náklady (~210 €)
• Udržovaná obytná zóna
Die Fotos zeigen den aktuellen Baufortschritt; die Fertigstellung erfolgt kurzfristig.
Fotografie ukazují aktuální stav výstavby; dokončení proběhne v krátké době.
Besichtigungen sind ab dem 1. Mai möglich. Bei dringendem Interesse kann nach Absprache bereits am 26.04. ein Termin ermöglicht werden.
Prohlídky jsou možné od 1. května. V případě naléhavého zájmu lze po domluvě již od 26. dubna zařídit prohlídku.
V okolí nemovitosti najdete
Stále hledáte to pravé?
Nastavte si hlídacího psa. Nabídky vybrané na míru dostanete souhrnně 1× denně e-mailem. S Premium profilem máte k ruce hlídačů rovnou 5 a když se něco objeví, informují vás obratem.


















