
Prodej domu 7+1 • 160 m² bez realitky, Hessen
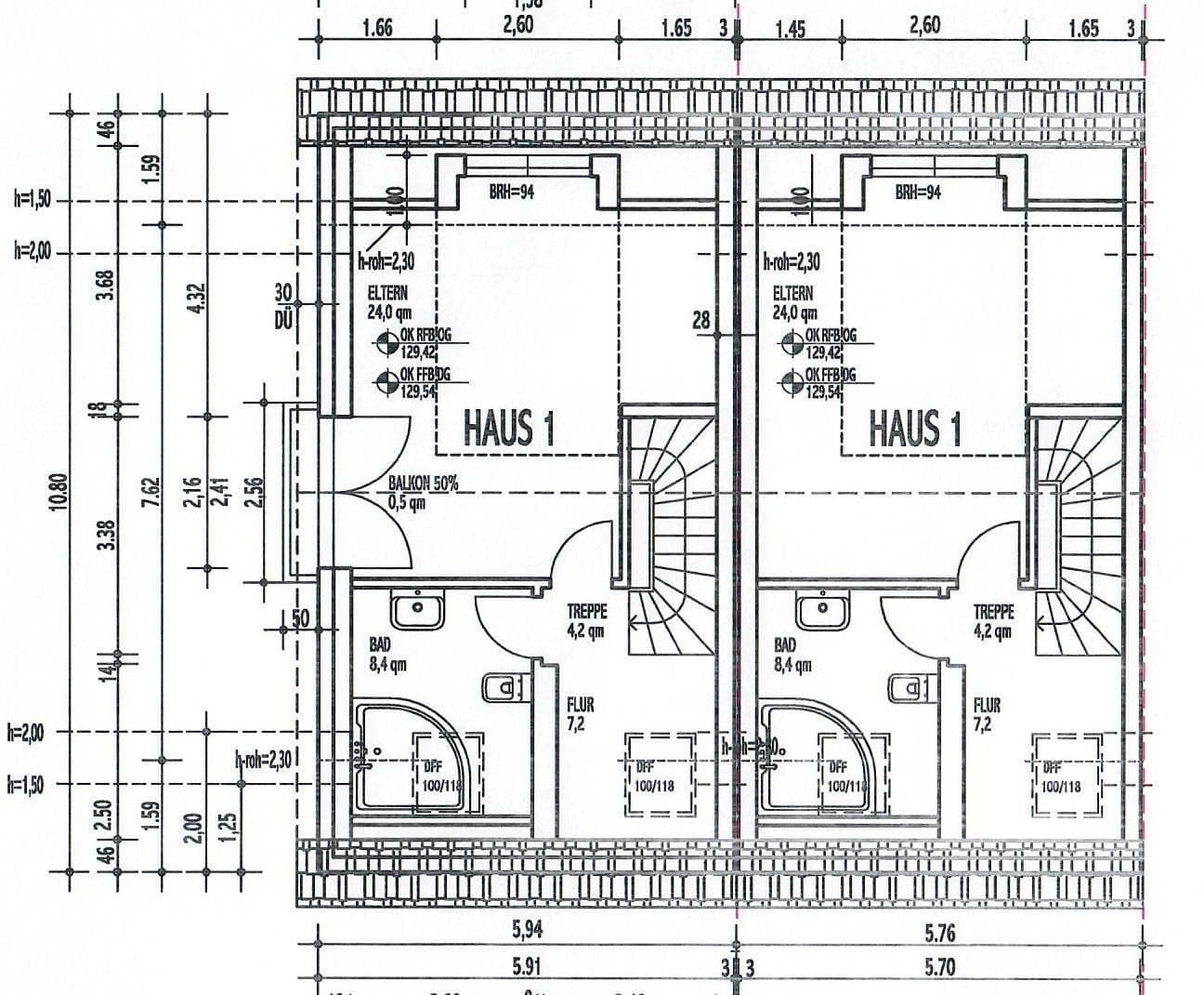
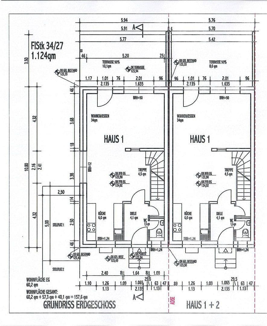
, HessenMHD do minuty pěšky • ParkováníNabízí se řadový dům v této prostorné řadové sídlištní oblasti se 5 domy, přičemž každý dům disponuje 160 m² obytné plochy a 48 m² užitkové plochy. V suterénu se nachází technická místnost i velká místnost pro volnočasové činnosti. Přízemí zaujme otevřeným stavebním konceptem. Kuchyně otevřená jídelnu a velký obývací pokoj zvou k posezení. Přes terasu se dostanete do vlastní zahrady. V patře se nachází koupelna, dvě dětské místnosti, dále pak ložnice pro rodiče – velký balkon pak doplňuje celkový dojem horního patra. Podkroví by mohlo sloužit jako další ložnice nebo kancelář, je zde také dost místa pro koupelnu. Lze však umístit i další 2 dětské pokoje v podkroví. Rozložení místností lze ještě přizpůsobit vašim potřebám.
Vybavení: masivní provedení, suterén z železobetonu, trojitě zasklená okna, elektrická rolety.
Specifika nemovitosti: Rozložení místností je ještě zcela volitelné, existuje také možnost uplatnit vlastní nápady při úpravách atd. – neváhejte nás kontaktovat, vše je možné!
Ve skvělé lokalitě Gründau Rothenbergen, v příjemné obytné čtvrti, vznikají tyto moderní řadové domy. Každý dům disponuje 4 prostornými pokoji, kuchyní, hostinským toaletou, koupelnou, velkým studiovým prostorem v podkroví a prostorným tepelně izolovaným suterénem z železobetonu. Jedná se o stavební mezeru, která se nachází v klidné obytné oblasti (hraďácká ulice) – rušivý hluk z letadel nebo dopravy se zde nevyskytuje. Terasa a balkon se nacházejí na jižní straně. Gründau nabízí vše, co k životu potřebujete! Obchody jsou dosažitelné pěší chůzí během pěti minut. Nejbližší větší město je Gelnhausen, kde najdete školy od základní po gymnázium. Také je zde zajištěna lékařská péče – nemocnice, další ordinace a podobně.
Ostatní: Nemovitost je v režii stavebního procesu, hrubý stav je dokončen, proto lze rozložení místností ještě upravit dle přání zákazníka. Je také možné dům zakoupit jako DŮM S MOŽNOSTÍ VÝBAVY – stačí nás kontaktovat. Fotografie pocházejí z našeho posledního dokončeného domu, který je v identické provedení a je k prohlídce.
Nabízí se bez příčinných zdí a podlahových krytin. Vybavení lze dle vlastního vkusu ještě zvolit.
Rovněž rozložení místností je zcela volitelné – stavíme dle zákaznických přání váš osobní vysněný dům, takže například pro větší rodinu je bez problémů možné realizovat 4 dětské pokoje, ložnici pro rodiče a 2 koupelny – kontaktujte nás.
Domus Konzepthaus GmbH
Kirchstr.18
63549 Ronneburg















