
Pronájem bytu 3+kk • 65 m²Jana Přibíka, Praha - Vysočany
Poznámka k ceně
+ poplatky 2.824 Kč/měsíc/1 os. (každá další osoba za příplatek) + elektřina, která bude převedena na nájemníka + vratná jistotaMáte o nabídku zájem?
Ušetřete 30 990 Kč na provizi a komunikujte se všemi majiteli.
Vzhledem k vysokému zájmu o námi inzerované nemovitosti žádáme všechny vážné zájemce o prohlídky, aby nás pro rychlý a efektivní postup kontaktovali výhradně skrze formulář níže. Následně Vám emailem zašleme krátký osobní dotazník, ve kterém bude třeba uvést několik základních informací. Po vyplnění tohoto dotazníku obdržíte informaci o dalším postupu. Než se setkáme na prohlídce, podívejte se prosím na výhody bydlení s námi na webu Dokonalý nájemník v sekci „Hledám bydlení“. Tuto sekci najdete přímo v horním menu našich internetových stránek.
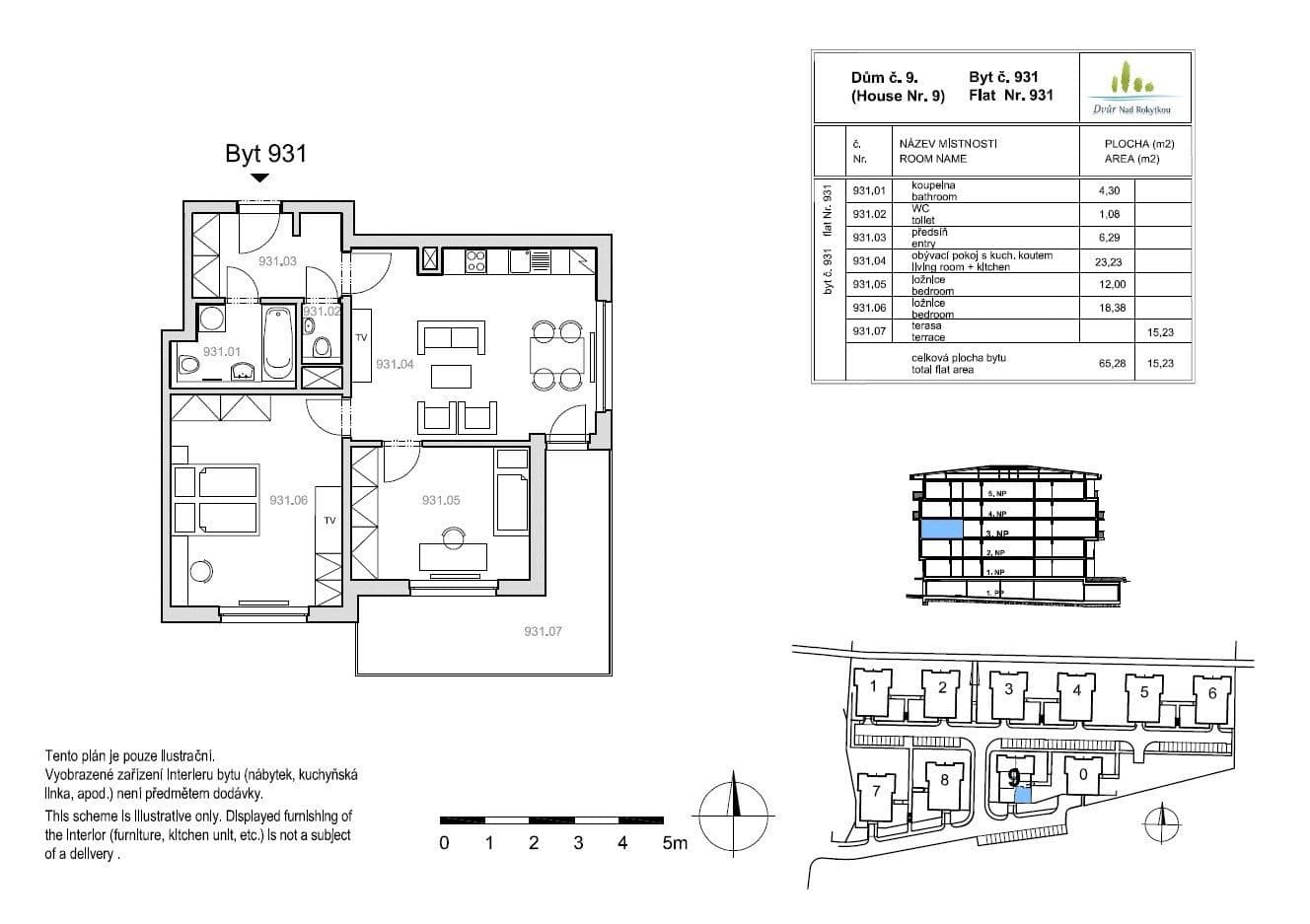
Nabízíme k podnájmu světlý byt 3+kk, o celkové výměře 65 m², ve 3. nadzemním podlaží cihlového domu s výtahem, v rezidenční čtvrti v pražských Vysočanech na Praze 9. Byt je zařízen jen částečně nábytkem, který si můžete prohlédnout ve fotogalerii, a finální styl tak bude podle Vašich představ. Moderní kuchyňská linka s vestavěnými spotřebiči (lednice, trouba, varná deska, digestoř, mikrovlnná trouba, myčka) je umístěna v obývacím pokoji, ze kterého je dále umožněn vstup na nadstandardně prostornou a kompletně zastřešenou terasu (15,23 m²). Ta Vám v letních měsících rozšíří obytný prostor a může se tak stát velmi příjemným místem k odpočinku. Koupelna je vybavena vanou, žebříkovým radiátorem a toaletou. Byt navíc disponuje ještě jednou samostatnou toaletou s umyvadlem. Spoustu úložného prostoru Vám poskytne vestavěná skříň na chodbě. Součástí podnájmu je navíc i sklepní kóje, ve které je umístěna policová sestava. Bezproblémové parkování budete mít zajištěné díky krytému parkovacímu stání, které k bytu náleží. Dům se pyšní energetickou náročností třídy B – velmi úsporná.
Nemovitost je určena výhradně k dlouhodobému podnájmu a je k nastěhování po dohodě od 15.7.2026.
Výhodou této lokality je výborná občanská vybavenost i dopravní spojení po celé Praze. Zastávka tramvaje i autobusu je nedaleko domu a díky pěší lávce přes Rokytku dojdete během 12 minut i ke stanici metra B - Kolbenova. Dům je umístěn jen kousek od Parku Zahrádky, jehož součástí je kvalitně vybavené venkovní fitness zasazené do povodí říčky Rokytka. Park disponuje dřevěnými cvičebními prvky, které nabízejí možnost posilování a protahování vlastní vahou i originálními doplňky, například na žebřinách, hrazdách a bradlech. Kolem parku také prochází stejnojmenná cyklostezka.
Poznámka k ceně: Poplatky za služby vč. pojištění domácnosti a odpovědnosti činí 2.824 Kč/měsíc + elektřina, která bude převedena na nájemníka. Při podpisu smlouvy nájemník hradí první nájemné, dále rezervaci a vratnou jistotu.
Pokud se nemůžete na prohlídku bytu dostavit osobně, je možné domluvit prohlídku formou videohovoru. V reakci na tento inzerát o sobě prosím uvádějte alespoň základní informace (počet osob, zaměstnání, od kdy hledáte bydlení, zda máte domácího mazlíčka). Děkujeme.
Parametry nemovitosti
| Dostupné od | 15. 7. 2026 |
|---|---|
| Konstrukce budovy | Cihla |
| Vybaveno | Částečně |
| Číslo inzerátu | 1015858 |
| PENB | B - Velmi úsporná |
| Užitná plocha | 65 m² |
| Cena za jednotku | 476,77 Kč / m2 |
| Stav | Velmi dobrý |
|---|---|
| Dispozice | 3+kk |
| Podlaží | 3. podlaží |
| Vlastnictví | Osobní |
| Odpad | Veřejná kanalizace |
| Voda | Z veřejného zdroje |
Co tato nemovitost nabízí?
| MHD 4 minuty pěšky |
| Parkování |
V okolí nemovitosti najdete
Poznámka k ceně
+ poplatky 2.824 Kč/měsíc/1 os. (každá další osoba za příplatek) + elektřina, která bude převedena na nájemníka + vratná jistotaMáte o nabídku zájem?
Ušetřete 30 990 Kč na provizi a komunikujte se všemi majiteli.
Stále hledáte to pravé?
Nastavte si hlídacího psa. Nabídky vybrané na míru dostanete souhrnně 1× denně e-mailem. S Premium profilem máte k ruce hlídačů rovnou 5 a když se něco objeví, informují vás obratem.


































