
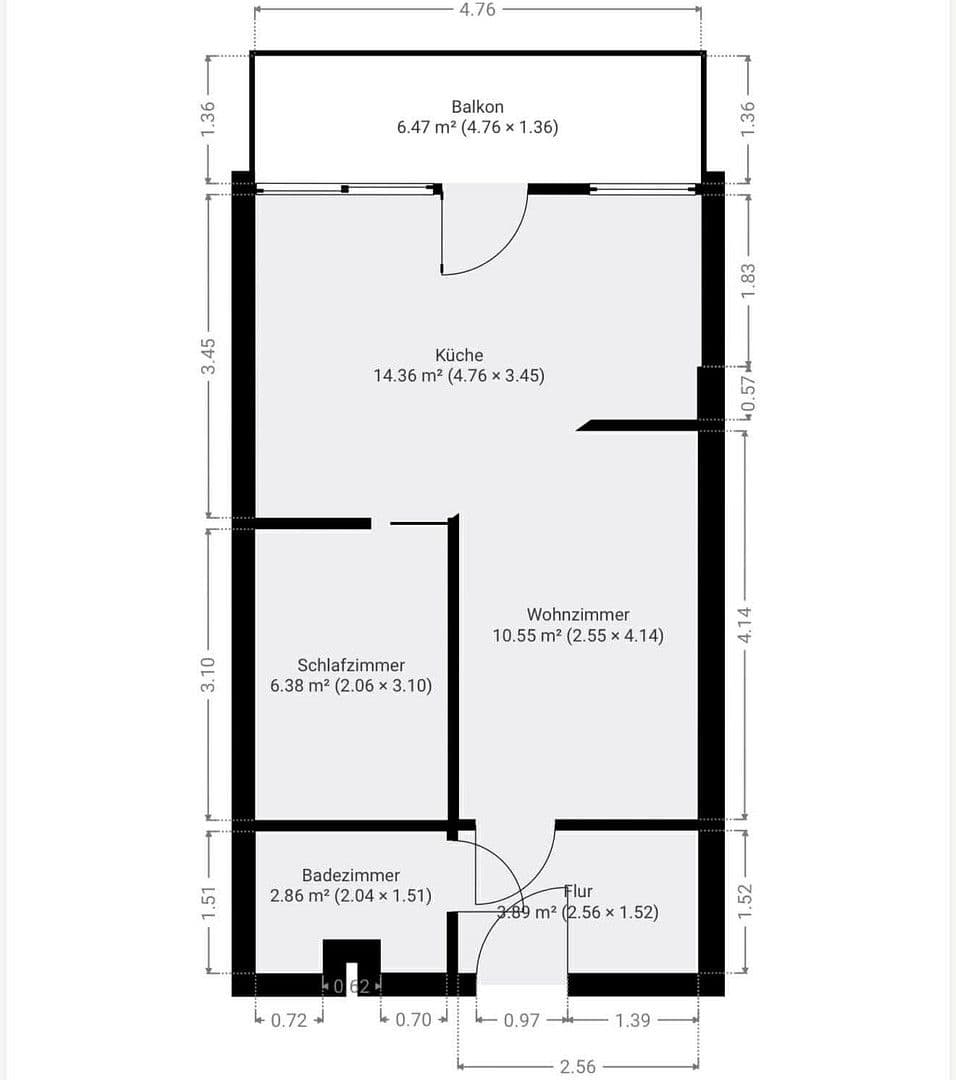
Prodej bytu 2+1 • 43 m² bez realitkyCoventrystraße 57 Frankfurt am Main Nied Hessen 65934
Coventrystraße 57 Frankfurt am Main Nied Hessen 65934MHD 3 minuty pěšky • Výtah • ParkováníK prodeji je čerstvě zrekonstruovaný 2-pokojový byt v udržovaném bytovém domě z roku 1971 ve Frankfurtu-Nied.
Byt zaujme svou kompaktní a dobře pronajímatelnou velikostí cca 43 m², promyšleným uspořádáním místností a stabilními nájemními příjmy. Díky již probíhajícímu pronájmu se tato nemovitost ideálně hodí pro investory, kteří chtějí okamžitě generovat příjmy.
K nabídce náleží také místo pro parkování v carportu (za příplatek 10 000 €), což dále zvyšuje atraktivitu pro nájemce.
Ekonomika / Výnosnost:
Studený nájem: 850 € / měsíc
Roční studený nájem: 10 200 €
Spoluvýdaje: 351 € / měsíc
Přenositelná část: 235 €
Nepřenositelná část: 116 €
Kupní ceny:
Byt: 169 000 €
Carport: 10 000 €
Celková kupní cena: 179 000 €
Hrubý výnos: cca 5,7 % – 6 %
Solidní investice s stabilním cashflow a potenciálem růstu.
Hlavní údaje na první pohled:
• Rok výstavby: 1971
• Podlahová plocha: cca 43 m²
• Počet pokojů: 2
• Stav: čerstvě zrekonstruovaný
• Pronajaté: ano
• Parkovací místo: carport (samostatně)
Byt se nachází v oblíbené části města Frankfurt-Nied, vyhledávané lokalitě s velmi dobrou infrastrukturou.
• Nákupní možnosti v bezprostřední blízkosti
• Dobré spojení s veřejnou dopravou
• Rychlá dostupnost frankfurtského centra
• Blízkost průmyslových a komerčních zón (vysoká poptávka po nájmu)
Obzvláště atraktivní pro dojíždějící a pracovní, – stabilní obsazenost zajištěna.
• Světlé a přívětivé interiéry
• Funkční uspořádání 2 pokojů
• Modernizované vybavení po rekonstrukci
• Koupelna se současným vybavením
• Snadno udržovatelné podlahové krytiny
• K dispozici sklepní kóje
• Vestavěná kuchyně s kompletním nábytkem
• Parkovací místo v carportu
Tato nemovitost je vynikající volbou pro investory, kteří hledají solidní a dlouhodobou investici v regionu s ekonomickou silou.
Prohlídka je možná na krátkou dobu. Rádi Vám poskytneme další dokumentaci.
Realitním makléřům není zájem!
Podle § 7 UWG je nevyžádaný kontakt prostřednictvím makléřů bez výslovného souhlasu adresáta zakázán!







