
Prodej bytu 3+1 • 114 m² bez realitkyHalle Giebichenstein Sachsen-Anhalt 06114
Obě remízové budovy se nacházejí centrálně v dvoře. Byly postaveny mezi lety 2023 a 2025 navýšením stávajících remíz a mohou se pochlubit moderním designem, kvalitními materiály a energeticky úsporným vybavením, včetně tepelného čerpadla a tepelně izolované fasády s cihlovým vzhledem (energetický štítek A+).
Možnost zakoupení parkovacího stání nebo místa v garáži přímo před domem je k dispozici jako volitelná nabídka.
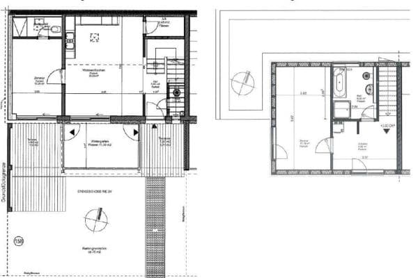
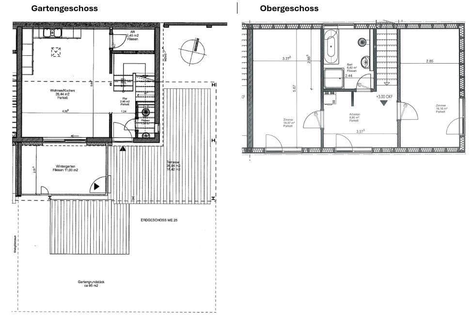
Pravá budova (WE 25) se rozkládá na dvou podlažích: V zahradní části se nachází otevřený obývací a jídelní prostor s předinstalovanými připojeními pro kuchyň. Za ním navazuje prostorná zimní zahrada, vybavená podlahovým topením a všemi mediálními připojeními. Ze zimní zahrady lze dvěma způsoby vstoupit na terasu a do zahrady. Zahrada je zasazena trávníkem a živým plotem. Již zde stojí ovocný strom a magnolie.
Pro zajištění soukromí jsou v přízemí instalovány textilní stínící panely s funkcí proti průhlednosti a sluneční ochranou. Tyto panely lze elektricky ovládat pomocí dálkových ovladačů. Jsou navrženy tak, že umožňují nahlížet zvnějšku dovnitř.
Plán bytu doplňuje i toaleta pro hosty umístěná v vstupní oblasti. Velká podlažní okna a střešní okno nad kuchyní zajišťují dostatek denního světla a cirkulaci vzduchu.
V horním patře se nacházejí dvě ložnice, moderní koupelna s vanou a sprchou a též technická místnost s připojením pro pračku a sušičku a dalšími úložnými prostory.
Podlahy jsou z kvalitního dubového parketu. Koupelna je vybavena podlahovým topením a ručníkem vytápěným radiátorem.
Mozartova ulice vede horizontálně od východně umístěného Paulusviertelu směrem k západně ležící Saale a protíná městskou část Giebichenstein v severním centru města.
Městská část Giebichenstein dostala své jméno podle hradu Giebichenstein, který se přímo nachází u řeky Saale a byl postaven již ve 12. století. Na jeho pozemku se od roku 1919 do dneška nachází část uměleckého kampusu Umělecké vysoké školy Halle. Zastavěnost této městské části převážně pochází z 19. století a od roku 1990 byla postupně zrekonstruována. V blízkosti Zoonu a směrem k břehu Saale převládají vily s předzahrádkami a cenným stromovým porostem. Díky blízkosti Saale a částečně historickým parkům a zeleným plochám (Amtsgarten, Reichardts Garten, Heinrich-Heine-Park) patří tato městská část mezi nejvíce zalesněné čtvrti. Městská část má přibližně 10 000 obyvatel.
Číslo domu 18 na Mozartově ulici představuje velmi klidnou adresu, přímo naproti zadní části přírodovědného muzea.
V nedaleké Reilově ulici se nachází několik zastávek tramvají a autobusů.
Volkspark, dále další parky a také řeka Saale jsou dostupné pěšky za méně než 500 metrů.
Domy Mozartova ulice 16, 17 a 18 byly postaveny ve stejném stylu v 30. letech minulého století a dnes tvoří zhodnocenou chráněnou historickou obytnou čtvrť. Tři přední domy byly postaveny bez bočních křídel nebo příčkových budov, takže za domy vznikl prostorný dvůr. Nabízené remízy patří k číslu domu 18.
Remízy byly přeměněny na moderní dvojdům. Samotný dvůr je prostorný a zeleně upravený. V dalších remízách se nachází úložiště pro kola, technické zařízení domu a garáž. Remízy jsou přístupné přes vjezd domu číslo 18.
V rámci navýšení střešních konstrukcí tří předních domů byla kromě nové krytiny revidována i fasáda, vstupní prostory, schodiště, společná elektřina, vjezd a další prvky.
Garáž nebo a/nebo parkovací stání v dvoře je možné (viz brožura).

































