
Pronájem bytu 1+kk • 37 m² bez realitkyMantovská, Praha - Horní Měcholupy
Máte o nabídku zájem?
Ušetřete 14 000 Kč na provizi a komunikujte se všemi majiteli.
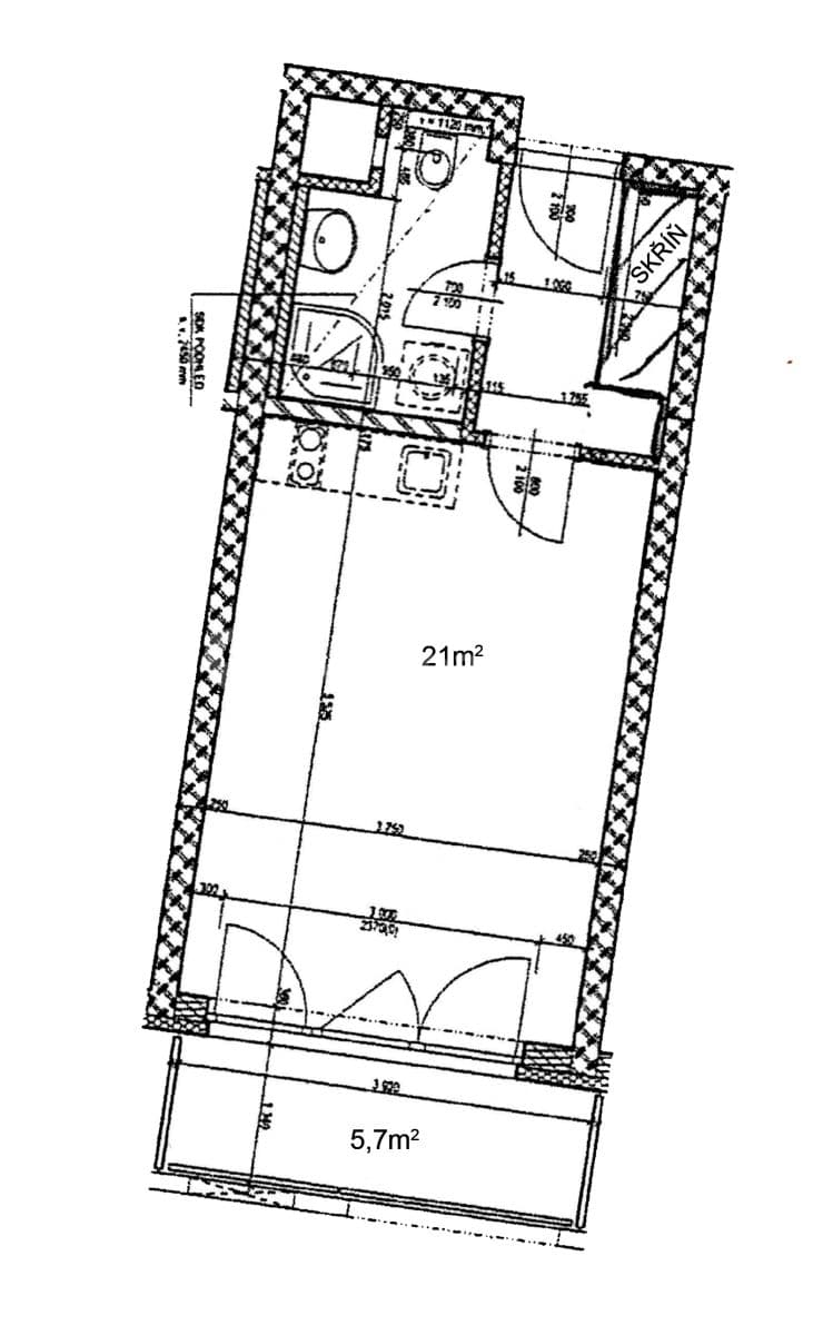
1 KK 31,6m2 + BALKON 6m2+ GARÁŽOVÉ STÁNÍ + SKLEP 4m2 - v ceně nájmu.
Majitel nabízí k dlouhodobému pronájmu velmi úsporný byt v ulici Mantovská 780/4, Praha 15– Horní Měcholupy. Byt je ve 3. patře domu s výtahem, v klidné rezidenční lokalitě, situovaný na jih. Jedná se o stavbu z roku 2019 od firmy Central Group.
Byt je částečně zařízený – dvojdílná vestavěná skříň a lednice s mrazničkou v předsíni (lze i v pokoji), kuchyňská linka s varnou deskou (dvě plotýnky), dřezem, digestoří v obývacím pokoji. V koupelně sprchový kout, WC, umyvadlo, příprava na připojení pračky. Na oknech bílé vnitřní žaluzie. Bezpečnostní vchodové dveře. V ceně nájmu je garážové stání v 2.pp dostupné od bytu výtahem a samostatný uzamykatelný sklep 4m2.
3 minuty chůze od domu je zastávka autobusu Janovská. Autobus vás odveze mj. na metro C Háje za 8 min. Spojení je i na Skalku (metro A). V blízkosti (ca 400m) zastávka vlaku Praha – Horní Měcholupy, možno použít vlaky do centra Prahy na Hlavní nádraží.
Energetický certifikát budovy B – velmi úsporný. Centrální vytápění, vlastní měření pro každý byt.
Zúčtovatelný poplatek 3000,- (pro dvě osoby 3500,-) by měl pokrýt náklady na bydlení - teplo, teplou a studenou vodu, elektřinu v bytě, výtah, odvoz odpadu, úklid společných prostor, světlo v domě. Platíte pouze to, co spotřebujete, na vše jsou měřiče. K nastěhování od 1.5.2026.
Požaduji jistotu (kauci) ve výši jednoho měsíčního nájmu 14000,-.Od zájemců ze zemí mimo Evropskou unii požaduji vratnou jistotu (kauci) 28000,- Kč.
Prosím bez domácích mazlíčků.
V blízkosti školy, školky, nakupování, zdravotnická zařízení. Kaufland hned vedle. Hostivařská přehrada, lesopark, přírodní park Botič-Milíčov, golf a jiná sportoviště v blízkém okolí.
Internet a TV signál od UPC nebo AIM (není součástí nájmu).
ONE ROOM FLAT 31,5m2 + BALCONY 6m2 + GARAGE PARKING PLACE + STORE ROOM in the basement 4m2
Owner offers for long time rent a new (2019) flat in the street Mantovska 780/2, Prague 15 - Horni Mecholupy. The flat is situated on the 3rd floor (elevator in the house), in a quiet residential part, views the south.
The flat is partly furnished - built in wardrobes and fridge with freezer in the entrance hall, kitchenette with two cookers, kitchen sink, extractor hood in the living room. In the bathroom a shower, WC. On the windows white blinds.
There is a bus stop Janovska in walking distance (buses). The bus takes you to the metro station Haje (C) in 8 minutes. Connection also to Skalka - metro A. Nearby (400 m) is a railway station Praha - Horni Mecholupy, you can use a train to get to the Main railway station in the center of Prague in 18 minutes.
Nearby are schools, kindergardens, health care centers, shopping (e.g. Kaufland). Sport facilities , lake, wood in walking distance.
Parking - own garage parking, for visitors in front of the house. Available from 16th September 2020.
The owner speaks English and German.
Parametry nemovitosti
| Stáří | Do 10 let |
|---|---|
| Stav | Velmi dobrý |
| Dispozice | 1+kk |
| Podlaží | 4. podlaží z 6 |
| Číslo inzerátu | 570776 |
| PENB | B - Velmi úsporná |
| Užitná plocha | 37 m² |
| Dostupné od | 1. 5. 2026 |
|---|---|
| Konstrukce budovy | Cihla |
| Vybaveno | Částečně |
| Vytápění | Vzdálené |
| Vlastnictví | Osobní |
| Umístění | Klidná část |
| Cena za jednotku | 378,38 Kč / m2 |
Co tato nemovitost nabízí?
| Balkón 6 m² | |
| Garáž | |
| Výtah |
| Sklep 4 m² | |
| MHD 3 minuty pěšky |
V okolí nemovitosti najdete
Máte o nabídku zájem?
Ušetřete 14 000 Kč na provizi a komunikujte se všemi majiteli.
Stále hledáte to pravé?
Nastavte si hlídacího psa. Nabídky vybrané na míru dostanete souhrnně 1× denně e-mailem. S Premium profilem máte k ruce hlídačů rovnou 5 a když se něco objeví, informují vás obratem.






















