
Pronájem bytu 2+kk • 60 m² bez realitkyMístecká, Praha - Letňany
Místecká, Praha - LetňanyMHD 3 minuty pěšky • Vybaveno • VýtahVyžadováno pojištění odpovědnostiVyžadováno ověření bezdlužnostiMáte o nabídku zájem?
Ušetřete 22 000 Kč na provizi a komunikujte se všemi majiteli.
BYT PRO PÁR od 1.2.2026. Prohlídky o víkendu nebo dopoledne + připište pár vět o sobě prosím (počet osob, povolání, věk, zvířata)
Zařízený nízkoenergetický byt 2+kk + šatna. Byt je svým vybavením i dispozičně vhodný pro pár - proto je nabízen maximálně pro 2 osoby, nekuřáky, bez domácích mazlíčků.
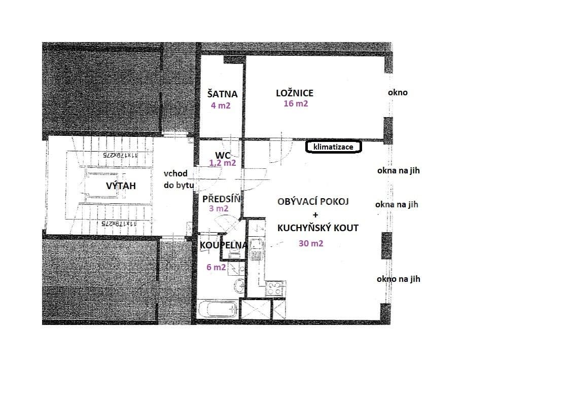
Slunný, vzdušný a prostorný byt o výměře 60 m2 orientovaný na jih, velká okna s pěkným výhledem, předposlední 8. patro v cihlové nástavbě s výtahem.
Obývací pokoj s kuchyňským koutem je vybaven TV, lednicí, velkou komodou a jídelním stolem se 4 židlemi.
Kuchyňská linka s barem včetně lednice, sklo-keramické desky, vestavné horkovzdušné trouby, mikrovlnky a myčky. Kuchyň je vybavena sklem a porcelánem (skleničky, hrnky, talíře, misky, příbory, pánev atd.).
V ložnici je velká manželská postel s bílým koženým čelem, vybavená kvalitními lamelovými rošty a matracemi 180x200 cm a velká komoda. Šatna 4 m2 je zařízena policovým systémem Kallax (s možností rozšíření), disponuje osvětlením a je oddělena od ložnice posuvnými uzavíratelnými dveřmi.
Velmi prostorná koupelna je oddělena od WC. Zrcadlo s úložným prostorem a koupelnové skříňky nabízí dostatek úložných prostor. Pračka není součástí vybavení.
Byt tedy stačí dovybavit pračkou a sedačkou a je zcela zařízený pro dlouhodobé komfortní užívání.
Byt je energeticky nezávislý na centrální teplárně, vše si regulujete digitálně sami přímo v bytě. Výhodou nízké poplatky za elektřinu (20 hod denně nízký tarif - tzv. noční proud). V bytě jsou instalovány elektrické topné panely s akumulací s možností dlouhodobého programování elektronickým termostatem. Ohřev vody bojlerem. Celý byt využívá nízkoenergetický cenově výhodný tarif (cca 1500 Kč měsíčně).
Internet a TV: Vodafone / O2 / T-Mobile. V bytě je k dispozici též datová zásuvka.
Kolárna v přízemí domu. Sklep není součástí (byt díky šatně nabízí dostatek úložných prostor).
Vstup do budovy na čip. Celá budova je zabezpečena kamerovým systémem.
Parkování - před domem jsou modré zóny. Hlídaný parkovací dům je ve vedlejší Malkovského ulici - stojí cca 1000 Kč měsíčně.
Veškerá občanská vybavenost: Obchodní centrum Letňany, supermarkety, MHD (metro Letňany 5 min), pošta, stomatologie, praktický lékař, plavecký bazén, hokejový stadión, Surf aréna, Tornádo aréna, cyklostezka, krásný lesopark, kde se konají také společenské akce atd.
POPLATKY:
- Vratná kauce 50 000 Kč
- služby spojené s užíváním bytu - poplatky za elektřinu, vodné a stočné, výtah, úklid, teplo, osvětlení atd.:
1 osoba 5000 Kč / 2 osoby 6000 Kč
- před nastěhováním se platí kauce, 1x nájemné a poplatky.
Smlouva se uzavírá na 1 rok s možností prodloužení.
Pronajímatel si vyhrazuje právo vybrat nájemce na základě jím zvolených kritérií. Preferujeme zájemce, kteří nepobírají sociální dávky (příspěvek na bydlení).
RK ani zprostředkovatelé nájmu prosím nevolejte!
V případě zájmu prosím napište pár slov o sobě - povolání, věk, počet osob v bytě a zda máte domácí zvířata. Děkujeme.
Parametry nemovitosti
| Dostupné od | 2. 1. 2026 |
|---|---|
| Konstrukce budovy | Cihla |
| Vybaveno | Vybaveno |
| Vytápění | Elektrické |
| Vlastnictví | Osobní |
| Umístění | Klidná část |
| Cena za jednotku | 367 Kč / m2 |
| Stav | Velmi dobrý |
|---|---|
| Dispozice | 2+kk |
| Podlaží | 8. podlaží z 9 |
| Číslo inzerátu | 765581 |
| PENB | C - Úsporná |
| Užitná plocha | 60 m² |
Co tato nemovitost nabízí?
| MHD 3 minuty pěšky |
| Výtah |
V okolí nemovitosti najdete
Máte o nabídku zájem?
Ušetřete 22 000 Kč na provizi a komunikujte se všemi majiteli.





Pronájem bytuAugustina Lukeše, Brandýs nad Labem-Stará Boleslav - Brandýs nad Labem, Středočeský kraj- 2+kk
- 50 m²
22 000 Kč + 4 200 Kč
Stále hledáte to pravé?
Nastavte si hlídacího psa. Nabídky vybrané na míru dostanete souhrnně 1× denně e-mailem. S Premium profilem máte k ruce hlídačů rovnou 5 a když se něco objeví, informují vás obratem.

















