
Prodej bytu 3+1 • 92 m² bez realitkyHolečkova, Praha - Smíchov
Holečkova, Praha - SmíchovMHD 1 minuta pěšky • Parkování • Sklep 13 m²Využít program Bydlím hned, koupím později
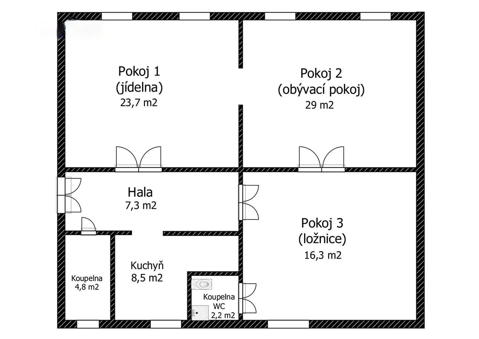
Nabízím k prodeji prostorný byt 3+1 se dvěma koupelnami o výměře 92 m2, který se nachází v 1.NP secesního domu v Holečkově ulici na rozhraní Malé Strany a Smíchova. Z ulice není do bytu vidět z důvodů zvýšeného přízemí a umístění oken více jak 2 m nad chodníkem. Byt je kompletně zrekonstruovaný. Rekonstrukce proběhla před dvěma lety. Byl naistalován plynový kotel a nové radiátory, které nahradily původní wafky. Komín nově vyvložkován. Došlo ke kompletní výměně elektroinstalace. V bytě byla stará elektroinstalace z hliníku. Krásná podlaha s takzvaným vídeňským křížem byla uvedena do původní podoby (původně lino, pod ním pazderodesky a pod nimi na červeno natřená původní podlaha). Nové v plastu jsou také rozvody vody a odpad.
Při rekonstrukci byly zachovány všechny původní prvky, které z tohoto bytu dělají opravdu noblesní bydlení. Původní okenice, původní parkety (50 cm x 50cm s vídeňským křížem), 4,5 m vysoké stropy s klenbami, dřevěné ostění, přes 3 m vysoké dvoukřídlé dveře.
K bytu náleží také prostorný sklep o výměře 13m2.
Byt má několik předností. Jednou z nich je skutečnost, že se na každém patře nachází pouze jeden byt, což zaručuje větší soukromý. Dům je kompletně zrekonstruovaný, proto jsou poplatky do fondu oprav velmi nízké. V roce 2025 byly kolem 800 Kč. Společně s poplatky za vodu, osvětlení společných prostor, popelnice, tvořily poplatky (včetně fondu oprav) kolem 1600 Kč na osobu, což je opravdu nízká částka. SVJ nemá žádný dluh. Velké investice se neplánují, jelikož je celý dům zrekonstruovaný.
Ložnice, kuchyň a jedna koupelna jsou umístěny na jižní straně a mají výhled do zahrady. K domu náleží i menší dvůr, kde je možné relaxovat.
Byt se nachází přímo naproti nádhernému parku (zahradě) Kinských, což je ideální zvláště pro pejskaře. Pár minut od bytu najdete také restaurace, bary, metro, nákupní centrum Anděl, polikliniku Kartouzská, kina atd. Na Náplavku je to také pouze pár minut chůze. Asi 100 m od bytu je zastávka autobusu Kobrova. Tramvajové spojení je také pár kroků od bytu na Náměstí Kinských. Parkování možné přímo před bytem.
Prohlídka možná pouze v případě, že má zájemce vyřešené a hlavně zajištěné financování nemovitosti.
Parametry nemovitosti
| Stáří | Nad 50 let |
|---|---|
| Stav | Po rekonstrukci |
| Dispozice | 3+1 |
| Podlaží | 1. podlaží z 6 |
| Vytápění | Plynové |
| Vlastnictví | Osobní |
| Rekonstrukce | Kompletní |
| Užitná plocha | 92 m² |
| Cena za jednotku | 136 848 Kč / m2 |
| Dostupné od | 1. 1. 2026 |
|---|---|
| Konstrukce budovy | Cihla |
| Vybaveno | Nevybaveno |
| Provedení | Standardní |
| Číslo inzerátu | 838128 |
| PENB | E - Nehospodárná |
| Umístění | Centrum |
| Rizika | Prověřit » |
Co tato nemovitost nabízí?
| Sklep 13 m² | |
| Parkování |
| MHD 1 minuta pěšky |
V okolí nemovitosti najdete
Využít program Bydlím hned, koupím později
Stále hledáte to pravé?
Nastavte si hlídacího psa. Nabídky vybrané na míru dostanete souhrnně 1× denně e-mailem. S Premium profilem máte k ruce hlídačů rovnou 5 a když se něco objeví, informují vás obratem.















