
Pronájem bytu 3+kk • 84 m² bez realitkyAmbrožova, Praha - Žižkov
Ambrožova, Praha - ŽižkovČástečně vybaveno • Výtah • Parkování • Garáž • Balkón 3 m² • Sklep 1 m²Máte o nabídku zájem?
Ušetřete 35 000 Kč na provizi a komunikujte se všemi majiteli.
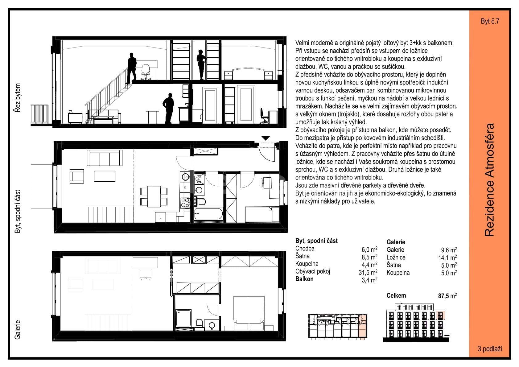
Přímí majitelé nabízí od 1. 2. 2026 nejpozději od 1. 4. 2026 k dlouhodobému pronájmu velmi moderně a originálně pojatý loftový byt 3+kk s balkonem v moderním areálu Rezidence Atmosféra s krásným výhledem.
Krásný, velmi světlý prosluněný byt o velikosti 3+kk s plochou 87,5 m² s velkými okny a prosklenými dveřmi pro přístup na balkon s plochou 3,4 m². Byt se nachází ve 3. patře cihlového domu s možností pronájmu vlastního parkovacího stání ve vnitrobloku pod uzamčením za příplatek.
Při vstupu se nachází prostorná předsíň, ložnice a koupelna s vanou, toaletou a pračkou se sušičkou. Z předsíně vcházíte do obývacího prostoru, který je doplněn kuchyňskou linkou se spotřebiči: indukční varnou deskou, odsavačem par, pečící a mikrovlnnou troubou, myčkou na nádobí a velkou lednicí s mrazákem. Nacházíte se ve velmi zajímavém obývacím prostoru s oknem, které dosahuje rozlohy obou pater (trojsklo). Vidíte zde původní zanechaný konstrukční prvek bývalé továrny (skelet). Z obývacího pokoje je přístup na balkon, kde můžete posedět.
Do mezipatra je přístup po kovovém industriálním schodišti s dřevěnými schodnicemi. Vcházíte do prostoru, kde je perfektní místo pro pracovnu s krásným výhledem. Z pracovny vcházíte přes šatnu do útulné ložnice, kde se nachází i Vaše soukromá koupelna s prostornou sprchou, toaletou a s exkluzivní dlažbou. Ložnice je orientována do klidné zahrady. Jsou zde masivní dřevěné parkety a dřevěné dveře. Byt je určen pro milovníky světla, ale zároveň můžete mít dostatek soukromí díky elektrickým žaluziím.
Dům je ekonomicko-ekologický, to znamená s nízkými náklady pro uživatele. Provozní náklady jsou 4.200 Kč/měsíc včetně topení, vody a internetu. Výše záloh na elektřinu 1.500 Kč/měsíc. Požadujeme kauci ve výši 2 nájmů.
Velká občanská vybavenost v okolí - restaurace, obchody, tramvaj (300 m), metro Jana Želivského (5 min.), obchodní centrum Flora (7 min.).
Pokud Vás tento byt zaujal, uvítáme krátkou informaci o Vás.
Direct owners offer from 1.12.2024 or at the latest from 1. 1.2025 for long-term rent a very modern and originally conceived loft apartment 3 + kk with balcony in the modern area of Rezidence Atmosféra with a beautiful view.
Beautiful, very bright and sunny apartment 3 + kk with an area of 87.5 m² with large windows and glass doors for access to a balcony with an area of 3.4 m². The apartment is located on the 3rd floor of a brick house with the possibility of renting its own parking space in the secured courtyard for an additional fee.
At the entrance there is a spacious hall with cloakroom, bedroom, bathroom with tub, washing machine and dryer. From the hall you enter the living area, which is complemented by a kitchen with appliances: induction hob, extractor hood, oven and microwave, dishwasher and large refrigerator with freezer. You are in a very interesting living area with a window that reaches the area of both floors (triple glazing). You can also see the original left structural element of the former factory (skeleton). From the living room there is access to the balcony where you can sit and enjoy the view.
The mezzanine floor is accessed by a metal industrial staircase with wooden staircases. You enter a space where there is a perfect place for a study with a beautiful view. From the study you enter through the dressing room to a cozy bedroom, where there is also your private bathroom with a spacious shower, toilet and exclusive tiles. The bedroom is oriented to the peaceful garden. There are solid wooden floors and wooden doors. The apartment is designed for lovers of light, but at the same time you can have enough privacy thanks to electric blinds.
The house is economically and ecologically friendly, i.e. with low costs for the user. Operating costs are 4.200 CZK/month including heating, water and internet. The amount of the advance payments for electricity is 1.500 CZK/month. We require a deposit of 2 rents.
Large civic amenities in the area - restaurants, shops, tram (300 m), metro Jana Želivského (5 min.), Shopping center Flora (7 min.). If the offer appealed to you, or you have any other questions, do not hesitate to contact us by email at the adress pronajem ad 1627 . cz or at this portal.
Parametry nemovitosti
| Stáří | Do 10 let |
|---|---|
| Stav | Novostavba |
| Dispozice | 3+kk |
| Podlaží | 3. podlaží z 4 |
| Vytápění | Ústřední |
| Vlastnictví | Osobní |
| Rekonstrukce | Kompletní |
| Užitná plocha | 84 m² |
| Dostupné od | 1. 2. 2026 |
|---|---|
| Konstrukce budovy | Cihla |
| Vybaveno | Částečně |
| Provedení | Luxusní |
| Číslo inzerátu | 863808 |
| PENB | B - Velmi úsporná |
| Umístění | Klidná část |
| Cena za jednotku | 417 Kč / m2 |
Co tato nemovitost nabízí?
| Balkón 3 m² | |
| Garáž | |
| Výtah |
| Sklep 1 m² | |
| Parkování |
V okolí nemovitosti najdete
Máte o nabídku zájem?
Ušetřete 35 000 Kč na provizi a komunikujte se všemi majiteli.
Stále hledáte to pravé?
Nastavte si hlídacího psa. Nabídky vybrané na míru dostanete souhrnně 1× denně e-mailem. S Premium profilem máte k ruce hlídačů rovnou 5 a když se něco objeví, informují vás obratem.























