
Pronájem bytu 2+kk • 54 m² bez realitkyBratislavská, Praha - Hostivař
Máte o nabídku zájem?
Ušetřete 21 000 Kč na provizi a komunikujte se všemi majiteli.
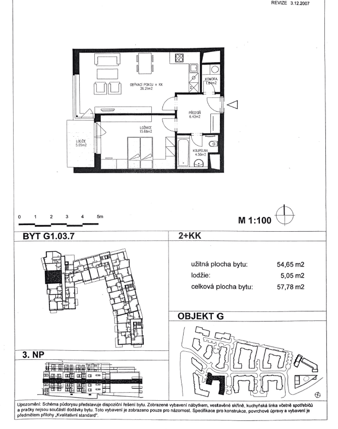
K dlouhodobému pronájmu nabízíme prostorný byt 2+kk (54,6 m²) v klidné lokalitě Praha 10 – Hostivař, Slunečný vršek. Pronájem přímo od majitele, bez provize.
Byt se nachází ve 3. patře a součástí nájmu je kryté garážové stání a sklep.
Byt je nezařízený – zůstává pouze skříň v ložnici a jídelní stůl se židlemi v kuchyni. Pračka, sušička i myčka z fotografií nejsou součástí vybavení, vše instaloval nájemce na svoje náklady (po dohodě lze ponechat erární pračku).
Dispozice: neprůchozí ložnice, obývací pokoj s kuchyňským koutem, koupelna s WC, samostatná komora s přípojkou na pračku a balkon. Součástí bytu je kuchyňská linka s elektrickým sporákem, troubou a lednicí. Ohřev teplé vody v kuchyni je řešen samostatným ohřívačem pod dřezem, plně funkční.
Měsíční nájem činí 21 000 Kč, poplatky 3500 Kč + elektřina se převádí na nájemníka cca 1500 Kč. Vratná kauce je stanovena na 21 000 Kč. Internet si nájemce zařizuje sám. Byt bude k dispozici od 1. března 2026 nebo po dohodě i dřívě (nájemnice spěchá na odstěhování).
Prohlídky budou možné v odpoledních hodinách nebo o víkendu po domluvě s vybranými zájemci.
V okolí najdete veškerou občanskou vybavenost a Hostivařský lesopark s vodní nádrží, ideální pro procházky, sport a odpočinek. Lokalita nabízí skvělou dostupnost do centra města.
Parametry nemovitosti
| Dostupné od | 1. 3. 2026 |
|---|---|
| Konstrukce budovy | Cihla |
| Vybaveno | Nevybaveno |
| Číslo inzerátu | 881811 |
| PENB | G - Mimořádně nehospodárná |
| Užitná plocha | 54 m² |
| Stav | Velmi dobrý |
|---|---|
| Dispozice | 2+kk |
| Podlaží | 3. podlaží z 5 |
| Vlastnictví | Osobní |
| Umístění | Klidná část |
| Cena za jednotku | 389 Kč / m2 |
Co tato nemovitost nabízí?
| Balkón 5,85 m² | |
| Sklep 2 m² | |
| Bezbariérový přístup | |
| Garáž | |
| Výtah |
V okolí nemovitosti najdete
Máte o nabídku zájem?
Ušetřete 21 000 Kč na provizi a komunikujte se všemi majiteli.
Stále hledáte to pravé?
Nastavte si hlídacího psa. Nabídky vybrané na míru dostanete souhrnně 1× denně e-mailem. S Premium profilem máte k ruce hlídačů rovnou 5 a když se něco objeví, informují vás obratem.


















