
Pronájem bytu 1+kk • 35 m² bez realitkyPoděbradská, Praha - Hloubětín
Máte o nabídku zájem?
Ušetřete 18 000 Kč na provizi a komunikujte se všemi majiteli.
Pronájem bytu 1+kk 35 m²
Tesla Hloubětín, Poděbradská
18 000,- měsíčně
Nabízím k pronájmu krásný, moderní byt v novém rezidenčním komplexu Tesla Hloubětín. Vchod do domu je přímo u tramvajové zastávky, ze které je to 3 minuty na metro Hloubětín. Kousíček od domu je cyklostezka a množství zelených ploch pro sport a odpočinek v okolí říčky Rokytky. Byt je k dispozici od 1. dubna 2026.
Byt samotný se nachází se v prvním patře, takže je pohodlně dostupný jak výtahem, tak po schodišti. Je orientován do klidného vnitrobloku se zelení, přitom je dostatečně stíněný proti letnímu horku. Je vybaven rekuperací pro trvalý přísun čerstvého vzduchu.
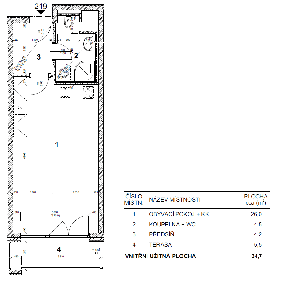
Na byt 1+kk o vnitřní užitné ploše 34,7 m² navazuje terasa o ploše 5,5 m². Obývací pokoj nabízí velkorysý prostor 26 m² s kuchyňským koutem na míru vč. vestavěných spotřebičů Whirlpool (indukční varná deska, trouba, mikrovlnná trouba, myčka, lednice s mrazničkou) a velikou potravinovou skříní. Součástí vybavení je rozkládací jídelní stůl a dvě židle (zbylý nábytek na fotografiích bude odstěhován).
V předsíni je šatní skříň s posuvnými dveřmi a botník. Koupelna s WC má celkovou plochu 4,5 m² a je vybavena sprchovým koutem, pračkou, zrcadlovou skříňkou, skříňkou pod umyvadlem a nástěnným skládacím sušákem na prádlo.
K bytu dále náleží sklepní kóje (2,2 m²).
Tesla Hloubětín je prémiový rezidenční projekt, který snoubí výhody skvělé lokality se spoustou zeleně s výbornou dopravní dostupností. Nedaleko se nachází O2 arena, nákupní Galerie Harfa, pěšky dostupný je například plavecký a sportovní areál Hloubětín atd.
Nájemné 18 000,- Kč/měsíc + zúčtovatelné poplatky ve výši 3 000,- Kč/měsíc. Kauce ve výši jednoho nájemného vč. služeb. Jednání přímo s majitelem (bez zprostředkování, tudíž i bez provize pro RK).
V okolí nemovitosti najdete
Máte o nabídku zájem?
Ušetřete 18 000 Kč na provizi a komunikujte se všemi majiteli.
Stále hledáte to pravé?
Nastavte si hlídacího psa. Nabídky vybrané na míru dostanete souhrnně 1× denně e-mailem. S Premium profilem máte k ruce hlídačů rovnou 5 a když se něco objeví, informují vás obratem.
















