
Inzerát již není v nabídce
Pronájem bytu 4+1 • 108 m² bez realitkyKlánova, Praha - Hodkovičky
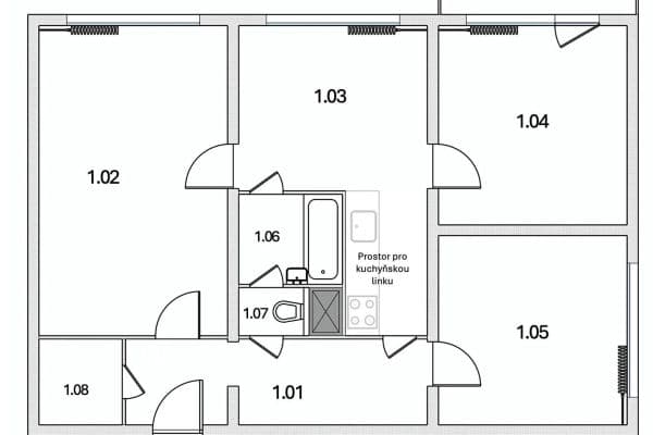
Klánova, Praha - HodkovičkyMHD 2 minuty pěšky • Částečně vybaveno • Lodžie 16 m²Vyžadováno pojištění odpovědnostiVyžadováno ověření bezdlužnostiNabízím k pronájmu prostorný byt o dispozici 4+1 ve velmi dobrém stavu, v cihlové budově. Nachází se ve čtvrtém patře ze čtyř, což zaručuje klid a soukromí. Celková plocha bytu činí 108 m² a jeho útulný charakter doplňují 2 lodžie s východní a západní orientací, o celkové rozloze 16m², ideální pro ranní kávu či odpočinek po náročném dni. Byt je částečně vybavený, disponuje dostatkem úložného prostoru. Vlastní vytápění a ohřev vody plynovým kotlem.
Byt je situován u lesoparku s dětským hřištěm a venkovní posilovnou. V blízkosti se též nachází veškerá občanská vybavenost a doprava (MHD 2 min. od domu), což zaručuje pohodlné městské bydlení.
Zájemci mě mohou kontaktovat skrz zprávy či komunikační platformu a domluvit si osobní prohlídku této okouzlující nemovitosti.
I am offering for rent a spacious 4+1 apartment in very good condition, located in a brick building. It is situated on the fourth floor out of four, which guarantees peace and privacy. The total area of the apartment is 108 m², and its cozy character is complemented by two loggias with eastern and western orientations, covering 16m² – ideal for enjoying a morning coffee or unwinding after a long day. The apartment comes partially furnished and offers plenty of storage space. It has its own heating system with water heated by a gas boiler.
The apartment is ideally located near a forest park with a children’s playground and an outdoor gym. All essential amenities and public transport (just a 2-minute walk from the building) are in close proximity, ensuring comfortable urban living.
Interested parties can contact me via messages or the communication platform to arrange a personal viewing of this charming property.
Parametry nemovitosti
| Dostupné od | 28. 4. 2025 |
|---|---|
| Konstrukce budovy | Cihla |
| Vybaveno | Částečně |
| Vytápění | Plynové |
| Vlastnictví | Osobní |
| Umístění | Klidná část |
| Cena za jednotku | 288 Kč / m2 |
| Stav | Velmi dobrý |
|---|---|
| Dispozice | 4+1 |
| Podlaží | 4. podlaží z 4 |
| Číslo inzerátu | 900509 |
| PENB | E - Nehospodárná |
| Užitná plocha | 108 m² |
Co tato nemovitost nabízí?
| MHD 2 minuty pěšky |
| Lodžie 16 m² |
V okolí nemovitosti najdete
Stále hledáte to pravé?
Nastavte si hlídacího psa. Nabídky vybrané na míru dostanete souhrnně 1× denně e-mailem. S Premium profilem máte k ruce hlídačů rovnou 5 a když se něco objeví, informují vás obratem.




