
Prodej bytu 2+1 • 57 m² bez realitkyU Průhonu, Praha - Holešovice
U Průhonu, Praha - HolešoviceVybaveno • Výtah • Parkování • Sklep 3,5 m²Využít program Bydlím hned, koupím později
Prodej světlého bytu 2+1, 56,5 m², + sklep, Praha 7 – Holešovice
Nabízím k prodeji světlý a prostorný byt o dispozici 2+1 nacházející se v udržovaném cihlovém domě v atraktivní lokalitě Praha 7 – Holešovice.
Byt působí velmi vzdušně a díky praktickému uspořádání nabízí pohodlné bydlení pro jednotlivce i pár. Dominantou bytu je prostorný obývací pokoj s jídelní částí a dostatkem denního světla. Samostatná ložnice orientovaná do klidné části domu zajišťuje soukromí a klid.
Byt prošel rekonstrukcí (elektroinstalace a rozvody vytápění byly modernizovány), je ve velmi dobrém udržovaném stavu a připraven k okamžitému užívání nebo případným drobným úpravám dle vlastních představ.
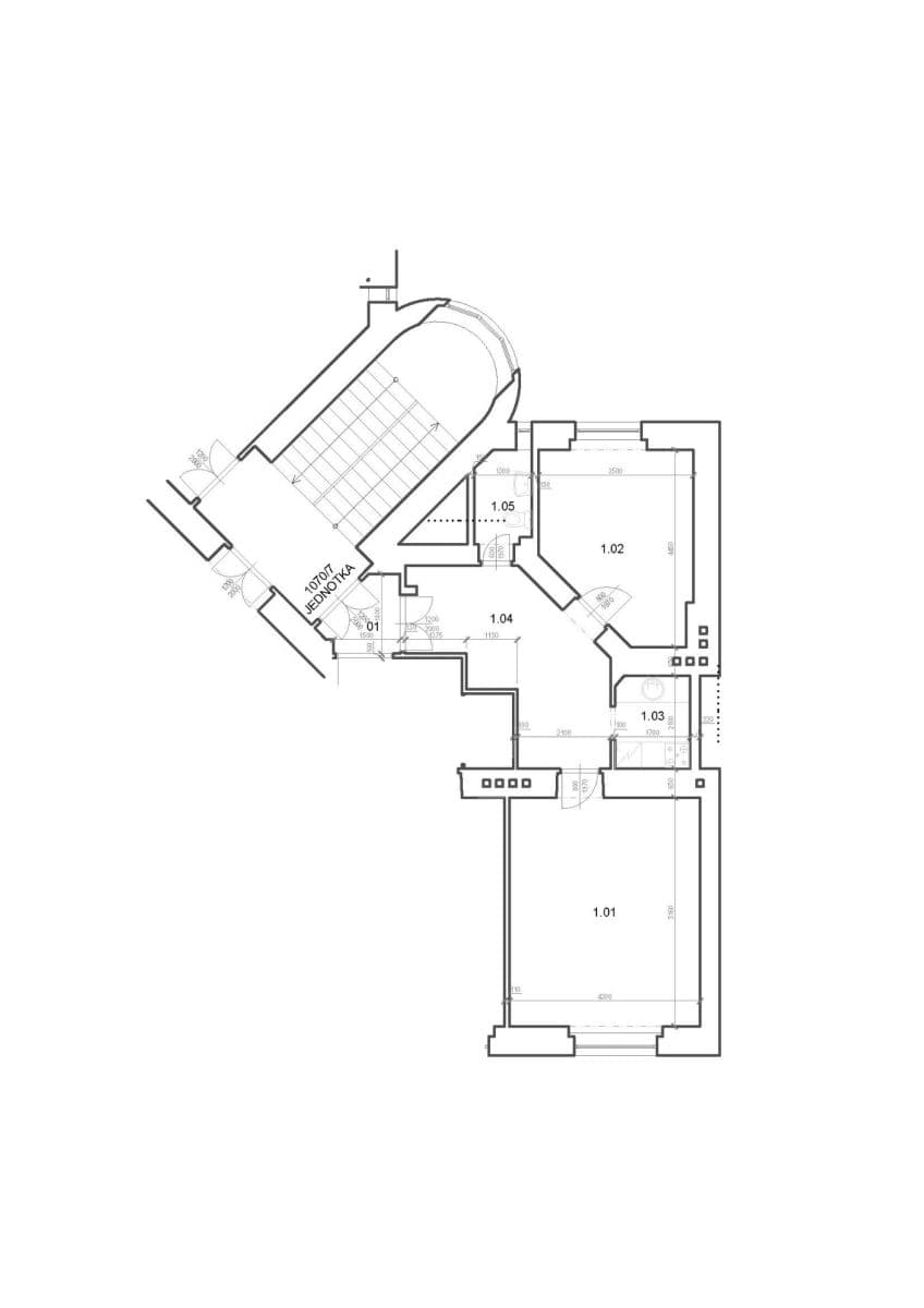
Dispozice a výměry
obývací pokoj
samostatná ložnice
koupelna se sprchovým koutem a WC
vstupní chodba s úložným prostorem
sklepní kóje cca 3,5 m²
Podlahová plocha bytu 56,5 m² + sklep 3,5 m². Byt má také podíl na společné vstupní předsíni, která poskytuje další úložný prostor a odděluje byt od společné chodby domu
Nízké náklady na bydlení
Velkou výhodou jsou nízké měsíční náklady na provoz a správu bytu, což činí nemovitost vhodnou jak pro vlastní bydlení, tak i jako investici k pronájmu.
Lokalita
Holešovice patří dlouhodobě mezi nejžádanější části Prahy. V docházkové vzdálenosti se nachází parky Letná a Stromovka, kavárny, restaurace, galerie i kompletní občanská vybavenost. Výborná dopravní dostupnost do centra města.
Další informace
osobní vlastnictví
financování hypotékou možné
byt je k dispozici dle dohody
Cena k jednání po osobní prohlídce.
V ceně jsou zahrnuty advokátní služby spojené s převodem nemovitosti.
Prodej přímo od majitele. Prosím realitní kanceláře, aby mě nekontaktovaly
Prohlídky možné po předchozí domluvě.
Sun, style, and good old Prague – 2+1 in the heart of Holešovice
2+1 | 56.5 m² | elevator | 3rd floor | high ceilings | peace and quiet | bedroom window overlooking the courtyard | living room window overlooking a quiet street.
The living room (23.5 m²) with large windows opens up to a serene environment. The bedroom (14.1 m²) looks out onto a quiet courtyard where, in the morning, birds sing (yes, that’s possible in Prague too!). The kitchen is separate (3.6 m²), so you can cook without worrying about the smoke drifting onto everything around you—even your blankets. And when you open the windows, you’ll feel as if you’re breathing in both the city and the tranquility. There is also a large hall spanning 12.6 m². The bathroom comes fully equipped with a sink with a storage cabinet, a large mirror, a toilet, and a shower with two windows (2.8 m²). The apartment also includes a small corridor of 1.7 m² and a storage space of 7.25 m².
The apartment is furnished and ready to move in. Additionally, the monthly electricity costs (including heating and hot water) do not exceed 2200 CZK. The monthly maintenance costs, including water, are 1080 CZK. The last renovation of the apartment (2019) included the replacement of all engineering networks (electrical wiring, plumbing, heating, windows). Security metal doors were installed to ensure extra protection. Moreover, there is a basement – so there’s room for skis, a bike, or your grandmother’s belongings. You can also use parts of the corridor belonging to the apartment for storing small items.
The recently renovated façade has preserved all the details that no one else does. The building naturally has an elevator, providing ample comfort. High ceilings and monumental walls will keep you warm in winter and cool you in summer.
And now, the best part – the location. Prague 7, Holešovice. If any area has transformed beyond recognition (and for the better) over the past 10 years, it’s Holešovice. Once an industrial zone, it is now the cultural, gastronomic, and social center of the city. Artistic galleries, showrooms of young designers, specialty coffee shops, and traditional pubs with genuine draft beer abound. Stromovka park is a 15-minute walk – ideal for a morning run or an afternoon picnic. Letná is a 10-minute tram ride away. The Vltavská metro station and Holešovice train station are within sight. And if you’re taking a train or need to leave the city, you can get directly to the station. The journey to the airport takes up to 40 minutes.
Parking is provided, which significantly simplifies everyday life in this area.
Overall, I can recommend this apartment as an ideal choice for those seeking comfortable living in a well-connected location. For more information or to schedule a viewing, please feel free to contact me via messages/communication platform.
Parametry nemovitosti
| Dostupné od | 8. 2. 2026 |
|---|---|
| Konstrukce budovy | Cihla |
| Vybaveno | Vybaveno |
| Provedení | Standardní |
| Číslo inzerátu | 935905 |
| PENB | G - Mimořádně nehospodárná |
| Umístění | Klidná část |
| Rizika | Prověřit » |
| Stav | Velmi dobrý |
|---|---|
| Dispozice | 2+1 |
| Podlaží | 3. podlaží z 6 |
| Vytápění | Elektrické |
| Vlastnictví | Osobní |
| Rekonstrukce | Kompletní |
| Užitná plocha | 57 m² |
| Cena za jednotku | 175 000 Kč / m2 |
Co tato nemovitost nabízí?
| Bezbariérový přístup | |
| Parkování |
| Sklep 3,5 m² | |
| Výtah |
V okolí nemovitosti najdete
Využít program Bydlím hned, koupím později
Stále hledáte to pravé?
Nastavte si hlídacího psa. Nabídky vybrané na míru dostanete souhrnně 1× denně e-mailem. S Premium profilem máte k ruce hlídačů rovnou 5 a když se něco objeví, informují vás obratem.





















