
Pronájem bytu 3+kk • 67 m² bez realitkyRimavské Soboty, Kolín - Kolín, Středočeský kraj
Rimavské Soboty, Kolín - Kolín, Středočeský krajMHD 1 minuta pěšky • Částečně vybaveno • Výtah • Parkování • Sklep 3 m² • Lodžie 7 m²Vyžadováno ověření bezdlužnostiMáte o nabídku zájem?
Ušetřete 16 000 Kč na provizi a komunikujte se všemi majiteli.
For English speaking clients, you can contact me by email or phone for more information.
Nabízím k pronájmu zrekonstruovaný moderní prosvětlený byt v 5. NP kompletně revitalizovaného domu v Kolíně, ul. Rimavské Soboty. K nastěhování přibližně od listopadu nebo prosince. Prohlídky možné od listopadu.
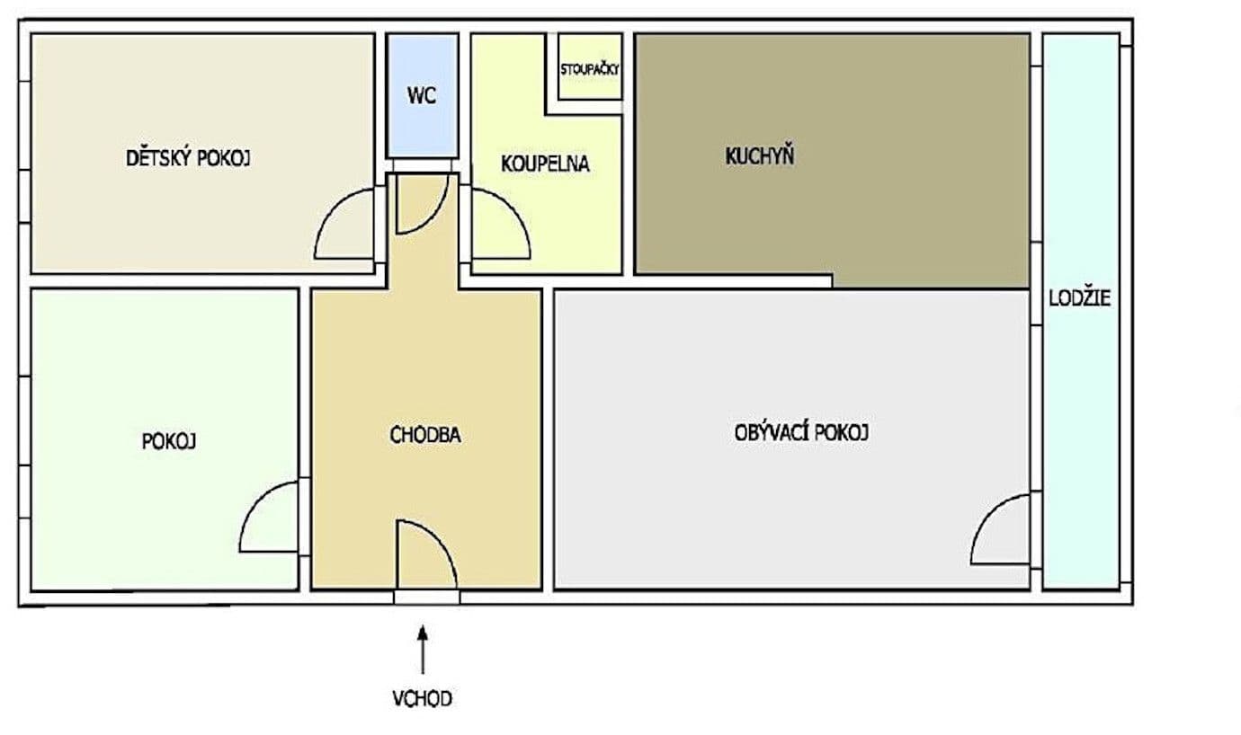
Dispozice bytu - obývací pokoj se vstupem na zasklenou lodžii (7m2, nezapočítává se do plochy bytu), ze které je krásný výhled. Obývací pokoj je spojen s kuchyňským koutem s kuchyňskou linkou s vestavěnými spotřebiči (plynový sporák, digestoř, el. trouba, myčka, lednice s mrazákem, mikrovlnná trouba). Dalšími místnostmi jsou dětský pokoj a ložnice. V bytě je zděné bytové jádro s koupelnou a samostatnou místností s wc. K bytu náleží komora na chodbě a sklepní kóje (3m2) v suterénu.
Podlahové krytiny (laminátové plovoucí podlahy a dlažba), provedená montáž sádrokartonu na stropy, zhotoveny velkoformátové obklady a dlažba v koupelně a na wc, na chodbě dvě vestavěné prostorné skříně a botník, osazeny vnitřní dveře s dřevěnými obložkami, bezpečnostní vchodové dveře. Vytápění bytu a dodávky teplé vody je zajišťováno dálkově. Byt má velmi nízké měsíční náklady.
Vedle domu se nachází pěkné dětské hřiště, které je oploceno. Možnost vysokorychlostního připojení na internet. Z domu se dostanete během 5 minut do supermarketu, plaveckého stadionu, dětského hřiště, školky, školy, restaurace nebo nemocnice.
Byt není vybavený nábytkem, na fotkách je příklad zařízeného bytu.
Parametry nemovitosti
| Dostupné od | 1. 11. 2025 |
|---|---|
| Konstrukce budovy | Panel |
| Vybaveno | Částečně |
| Provedení | Standardní |
| Číslo inzerátu | 938398 |
| PENB | B - Velmi úsporná |
| Umístění | Okraj |
| Cena za jednotku | 239 Kč / m2 |
| Stav | Velmi dobrý |
|---|---|
| Dispozice | 3+kk |
| Podlaží | 4. podlaží z 7 |
| Vytápění | Vzdálené |
| Vlastnictví | Osobní |
| Rekonstrukce | Kompletní |
| Užitná plocha | 67 m² |
Co tato nemovitost nabízí?
| Sklep 3 m² | |
| Výtah | |
| Parkování |
| Lodžie 7 m² | |
| MHD 1 minuta pěšky |
V okolí nemovitosti najdete
Máte o nabídku zájem?
Ušetřete 16 000 Kč na provizi a komunikujte se všemi majiteli.
Stále hledáte to pravé?
Nastavte si hlídacího psa. Nabídky vybrané na míru dostanete souhrnně 1× denně e-mailem. S Premium profilem máte k ruce hlídačů rovnou 5 a když se něco objeví, informují vás obratem.


















