
Prodej bytu 3+kk • 53 m² bez realitkyBuková, Praha - Žižkov
Využít program Bydlím hned, koupím později
Přímý majitel nabízí k prodeji světlý byt 3+kk o celkové ploše 53 m², který se nachází ve 3. nadzemním podlaží zrekonstruovaného a zatepleného domu v oblíbené rezidenční lokalitě Prahy 3 – Žižkov, v ulici Bukova. Byt je situován v klidném prostředí obklopeném zelení, které zajišťuje příjemné a pohodové bydlení. Lokalita nabízí ideální kombinaci městského komfortu a přírody s výbornou dostupností do centra Prahy. Byt je vhodný pro jednotlivce, pár nebo jako investiční příležitost k pronájmu.
Žižkov patří mezi vyhledávané části Prahy díky kompletní občanské vybavenosti a skvělé dopravní dostupnosti. Tramvajová zastávka Kněžská louka i autobusová zastávka Habrová se nacházejí jen pár minut chůze od domu a zajišťují rychlé spojení na metro i do centra města. V okolí je k dispozici veškerá infrastruktura – školy, školky, obchody, restaurace, kavárny, knihovna i další služby. Nedaleko se nachází také sportovní a rekreační areál Pražačka. Pro odpočinek i sport jsou ideální blízké parky Židovské pece a Malešický park.
Byt právě prochází kompletní a kvalitní rekonstrukcí, která zahrnuje nové rozvody elektřiny, vody a odpadů, nové podlahy, moderní obklady a dlažbu značky Marazzi, koupelnu se sprchovým koutem a sanitou Grohe a také novou kuchyňskou linku se spotřebiči Gorenje, na kterou je poskytována prodloužená záruka pět let.
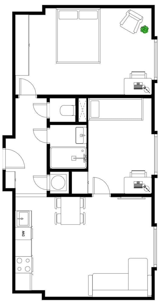
Dispozičně byt nabízí obývací pokoj s kuchyňským koutem, dva samostatné pokoje vhodné jako ložnice a dětský pokoj nebo pracovna, prostornou vstupní chodbu a moderní koupelnu s toaletou. K bytu náleží sklepní kóje o velikosti 2 m².
Vytápění je centrální dálkové.
Fotografie jsou ilustrační a pocházejí z jiného dokončeného projektu, avšak odpovídají úrovni a stylu prováděné rekonstrukce.
Byt je prodáván přímo majitelem, bez provize, a cena zahrnuje kompletní právní servis.
V případě zájmu o více informací nebo domluvení prohlídky mě prosím neváhejte kontaktovat.
Direct owner offers for sale a bright 3+kk apartment with a total area of 53 m², located on the 3rd floor of a renovated and insulated building in the popular residential area of Prague 3 – Žižkov, on Bukova Street. The apartment is situated in a quiet environment surrounded by greenery that ensures pleasant and relaxed living. The area offers the ideal combination of urban comfort and nature with excellent accessibility to the center of Prague. The apartment is suitable for an individual, a couple, or as an investment opportunity for renting.
Žižkov is among the sought-after parts of Prague thanks to its comprehensive civic amenities and excellent transportation links. The Kněžská louka tram stop and the Habrová bus stop are only a few minutes’ walk from the building and provide quick connections to the metro and the city center. All necessary infrastructure is available in the vicinity – schools, kindergartens, shops, restaurants, cafés, a library, and other services. Not far away is the Pražačka sports and recreation complex. For relaxation and sports, the nearby parks Židovské pece and Malešický park are ideal.
The apartment is currently undergoing a complete and high-quality renovation, which includes new wiring for electricity, water, and waste, new flooring, modern tiling and paving by the Marazzi brand, a bathroom with a shower and Grohe sanitary fittings, as well as a new kitchen set with Gorenje appliances, which comes with an extended five-year warranty.
In terms of layout, the apartment offers a living room with a kitchenette, two separate rooms suitable as a bedroom and a child’s room or home office, a spacious entrance hall, and a modern bathroom with a toilet. The apartment also includes a 2 m² storage cellar.
Heating is provided by central district heating.
The photographs are for illustration purposes and come from another completed project; however, they correspond to the quality and style of the ongoing renovation.
The apartment is being sold directly by the owner, without any commission, and the price includes complete legal services.
If you are interested in more information or would like to arrange a viewing, please do not hesitate to contact me.
Parametry nemovitosti
| Dostupné od | 29. 10. 2025 |
|---|---|
| Konstrukce budovy | Cihla |
| Vybaveno | Částečně |
| Číslo inzerátu | 959888 |
| PENB | D - Méně úsporná |
| Užitná plocha | 53 m² |
| Cena za jednotku | 169 809 Kč / m2 |
| Stav | Velmi dobrý |
|---|---|
| Dispozice | 3+kk |
| Podlaží | 3. podlaží z 4 |
| Vlastnictví | Osobní |
| Umístění | Centrum |
| Rizika | Prověřit » |
Vybíráte byt?
Mějte jistotu, že máte všechny důležité informace!
Co tato nemovitost nabízí?
| Sklep 2 m² |
V okolí nemovitosti najdete
Využít program Bydlím hned, koupím později
Stále hledáte to pravé?
Nastavte si hlídacího psa. Nabídky vybrané na míru dostanete souhrnně 1× denně e-mailem. S Premium profilem máte k ruce hlídačů rovnou 5 a když se něco objeví, informují vás obratem.
























