
Prodej bytu 3+1 • 64 m² bez realitkyKřenická, Praha - Strašnice
Křenická, Praha - StrašniceMHD 4 minuty pěšky • Výtah • Balkón 2,8 m² • Sklep 1,4 m²Využít program Bydlím hned, koupím později
Hledáte byt, který si můžete upravit přesně podle vlastních představ? Oceníte funkční dispozici, balkon a klidnou lokalitu v docházkové vzdálenosti k metru?
Nabízím k prodeji slunný byt 3+1 v panelovém domě, který je zasazený do otevřeného prostoru se zelení, dětskými hřišti a parkovou úpravou v bezprostředním okolí.
Byt má užitnou plochu 64 m² včetně balkonu, k bytu dále náleží zděný sklep. Nachází se v bezbariérovém domě s centrálním vytápěním, osobním i nákladním výtahem a zabezpečeným vstupem na čip s kamerovým systémem. Dům je dlouhodobě dobře spravovaný, SVJ funguje bezproblémově s velkou finanční rezervou a nízkými poplatky do fondu oprav.
Byt je v původním, udržovaném stavu, což nabízí ideální příležitost přizpůsobit si bydlení podle vlastního vkusu a potřeb, bez nutnosti přizpůsobovat se zásahům předchozích majitelů.
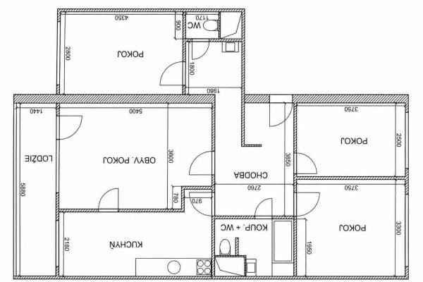
Dispozičně byt nabízí obývací pokoj, samostatnou kuchyni se vstupem na balkon, dvě ložnice, koupelnu, samostatné WC, předsíň, komoru.
Významným benefitem je výborná dopravní dostupnost. Stanice metra Skalka (linka A) je vzdálena přibližně 7 minut chůze, což umožňuje rychlé spojení do centra města i dalších částí Prahy. Panuje tu klid a příjemná sousedská atmosféra. V docházkové vzdálenosti se nachází anglické mateřské i základní školy, dětská hřiště, parky a sportoviště, včetně oblíbeného sportovního areálu Gutovka.
Tato nabídka představuje praktické bydlení pro rodinu nebo zajímavou příležitost pro ty, kteří hledají byt s potenciálem ve stabilní lokalitě. Zaujala vás nabídka? Napište a domluvíme se na prohlídce.
Are you looking for an apartment that you can customize exactly to your own ideas? Will you appreciate a functional layout, a balcony, and a quiet neighborhood within walking distance to the metro?
I am offering for sale a sunny 3+1 apartment in a panel building, which is set in an open area with greenery, playgrounds, and park landscaping in the immediate vicinity.
The apartment has a usable area of 64 m² including the balcony. Additionally, a brick cellar is included with the apartment. It is located in a barrier-free building with central heating, both a passenger and a cargo elevator, and secured access via chip along with a camera system. The building has been well maintained over the long term, with the homeowners’ association operating smoothly, holding a sizable financial reserve and low contributions to the repair fund.
The apartment remains in its original, maintained condition, which provides an ideal opportunity to customize your living space according to your own taste and needs, without having to adapt to the interventions of previous owners.
In terms of layout, the apartment offers a living room, a separate kitchen with access to the balcony, two bedrooms, a bathroom, a separate toilet, an entrance hall, and a storage room.
An important advantage is the excellent transport accessibility. The Skalka metro station (Line A) is about a 7-minute walk away, which allows for quick connections to the city center and other parts of Prague. The area is calm and features a pleasant neighborhood atmosphere. Within walking distance, you will find English kindergartens and primary schools, playgrounds, parks, and sports facilities, including the popular Gutovka sports complex.
This offer represents practical living for a family or an interesting opportunity for those looking for an apartment with potential in a stable location. Interested in the offer? Write in, and we can arrange a viewing.
Parametry nemovitosti
| Dostupné od | 10. 3. 2026 |
|---|---|
| Konstrukce budovy | Panel |
| Vybaveno | Nevybaveno |
| Vytápění | Ústřední |
| Vlastnictví | Osobní |
| Užitná plocha | 64 m² |
| Cena za jednotku | 132 187,50 Kč / m2 |
| Stav | Dobrý |
|---|---|
| Dispozice | 3+1 |
| Podlaží | 3. podlaží z 13 |
| Číslo inzerátu | 999365 |
| PENB | D - Méně úsporná |
| Rizika | Prověřit » |
Co tato nemovitost nabízí?
| Balkón 2,8 m² | |
| MHD 4 minuty pěšky |
| Sklep 1,4 m² | |
| Výtah |
V okolí nemovitosti najdete
Využít program Bydlím hned, koupím později




















