
Prodej bytu 3+kk • 56 m² bez realitkyVratislavská, Praha - Bohnice
Vratislavská, Praha - BohniceČástečně vybaveno • Výtah • Sklep 2 m² • Lodžie 5,5 m²Využít program Bydlím hned, koupím později
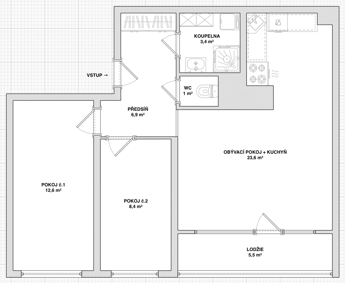
Nabízím k prodeji světlý byt v osobním vlastnictví 3+kk o celkové ploše 56 m² s lodžií 5,5 m² a sklepem 2 m², celkem 63,5 m². Byt je umístěný v sedmém podlaží panelového domu v klidné ulici Vratislavská, Praha 8 – Bohnice.
Bohnice jsou oblíbenou lokalitou s výbornou občanskou vybaveností i dopravní dostupností. V docházkové vzdálenosti jsou obchody, služby, lékaři i školy a školky. Krátkou procházkou se ocitnete na stezkách Bohnického údolí, Draháňského údolí a na vyhlídkách směřujících nad Vltavu. O kousek dál začíná ZOO, botanická zahrada, Troja, Čimický háj, aquacentrum Šutka a množství sportovišť, která celou lokalitu dělají ještě příjemnější pro život. Zastávka autobusu je přímo u domu – do 10 minut na metro Kobylisy a parkování v okolí je bez modrých zón.
Byt je orientovaný na západ s širokým výhledem a krásnými západy slunce. Dispozice bytu je řešená velmi prakticky, kdy je společenská zóna (tvořená velkým obývacím pokojem a kuchyňským koutem) oddělena vstupní předsíní od klidové zóny, tedy od dvou neprůchozích pokojů. I ten menší z pokojů pojme vše potřebné – postel, noční stolek i malou skříň, případně může sloužit jako pracovna. Druhý pokoj je ještě větší a více flexibilní. Kuchyň je rohová, s vestavěnou myčkou a horkovzdušnou troubou. Koupelna je moderní se sprchovým koutem a pračkou, toaleta je samostatná a má bidetovou spršku. V praktické vstupní předsíni se nachází velká šatní skříň a je zde prostor na botník i věšáky. Další úložné prostory pak nabízí sklepní kóje o velikosti cca 2 m² v suterénu domu, která je součástí jednotky.
Měsíční zálohy na bydlení dle předpisu SVJ pro 2 osoby jsou 4 004 Kč (z toho fond oprav 899 Kč), elektřina cca 1 200 Kč dle spotřeby. Vodu zajišťuje dálkový vodovod a topení je ústřední dálkové, což přispívá k nízkým provozním nákladům. SVJ funguje velmi dobře, nesplácí žádný úvěr a pravidelně hospodaří s přebytkem. Celý dům je v pěkném stavu po rekonstrukci (zateplení, stoupačky, společné prostory) bez nutnosti dalších větších investic.
Byt je vhodný pro páry i rodiny, s výborně fungující polohou, veškerými službami na dosah a klidným okolím plným zeleně.
Pro bližší informace či domluvení prohlídky mě neváhejte kontaktovat skrz zprávy prostřednictvím komunikační platformy.
Parametry nemovitosti
| Dostupné od | 15. 1. 2026 |
|---|---|
| Konstrukce budovy | Panel |
| Vybaveno | Částečně |
| Číslo inzerátu | 981586 |
| PENB | D - Méně úsporná |
| Užitná plocha | 56 m² |
| Cena za jednotku | 133 750 Kč / m2 |
| Stav | Velmi dobrý |
|---|---|
| Dispozice | 3+kk |
| Podlaží | 7. podlaží z 17 |
| Vlastnictví | Osobní |
| Umístění | Klidná část |
| Rizika | Prověřit » |
Co tato nemovitost nabízí?
| Sklep 2 m² | |
| Výtah |
| Lodžie 5,5 m² |
V okolí nemovitosti najdete
Využít program Bydlím hned, koupím později
Stále hledáte to pravé?
Nastavte si hlídacího psa. Nabídky vybrané na míru dostanete souhrnně 1× denně e-mailem. S Premium profilem máte k ruce hlídačů rovnou 5 a když se něco objeví, informují vás obratem.























