
Prodej domu 6+1 • 135 m² bez realitkyBergedorf OT Neuallermöhe Neuallermöhe Hamburg 21035
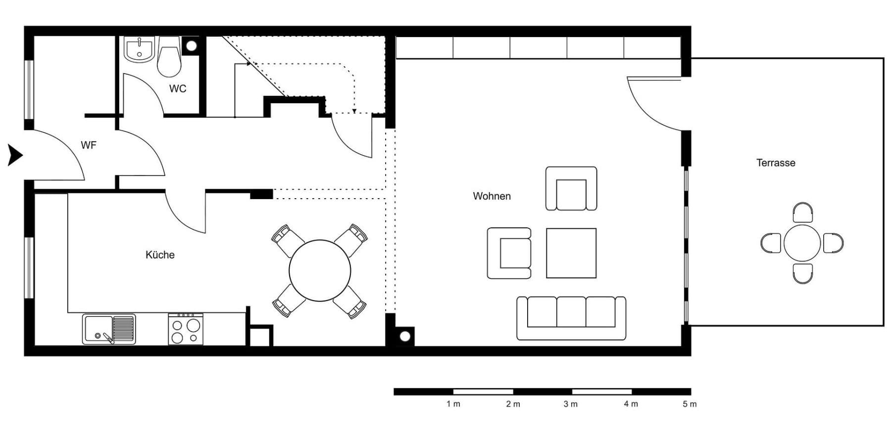
Bergedorf OT Neuallermöhe Neuallermöhe Hamburg 21035MHD 1 minuta pěšky • ParkováníPečovaný řadový dům postavený v roce 1996 nabízí s 135 m² obytné plochy prostor pro velkou rodinu. Disponuje šesti pokoji, koupelnou se vanou, sprchovou koupelnou, hostinským WC a vestavěnou kuchyní.
Je třeba vyzdvihnout prostorný obývací/jídelní prostor s dubovým parketovým podlahovým krytím, včetně podlahového topení a přilehlé otevřené vestavěné kuchyně. Krb s panoramatickým prosklením vytváří útulnou atmosféru. Podlahové okna vedou na terasu vyloženou přírodním kamenem, orientovanou na jihozápad, a do zastrčené, neprostupné zahrady.
Prostor pod schody je optimálně využit obytným úložným prostorem, kterým se dá volně procházet. Mezi vstupními dveřmi a hostinským WC se nachází prostor s integrovanou šatnou a botníkem.
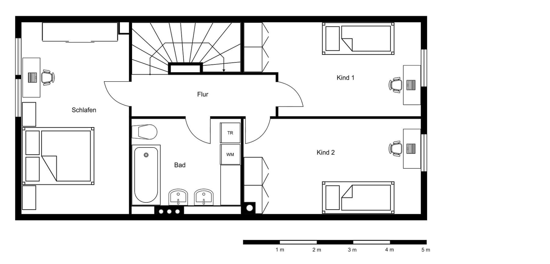
V horním patře se nacházejí tři pokoje a světlá opláštěná koupelna s vanou a dvojitým umyvadlem, přičemž je zde i dostatek místa pro pračku a sušičku.
V podkroví jsou dva pokoje se šikmými stropy a okny ve výklencích, rovněž světlá opláštěná sprchová koupelna a kotelna s oknem ve střeše, která se ideálně hodí pro sušení prádla.
Podkroví nabízí spoustu úložného prostoru a mohlo by být z jednoho z pokojů rozšířeno do ložnice s vysokým postelovým systémem.
Kromě toho je před domem parkovací místo pro automobil a k dispozici i kolárna.
Řadový dům se nachází v hamburské čtvrti Allermöhe v dopravně uklidněné herní ulici. Hřiště a Allermöher See jsou vzdáleny cca 200 metrů. Okolí je charakterizováno harmonickou kombinací malých obytných ulic a prostorných zelených ploch. Desetiminutová chůze vás zavede na stanici S-Bahn „Allermöhe“, odkud se dostanete za 15 minut na hlavní nádraží, a navíc působí několik autobusových linek. Mateřské školy, základní školy, čtvrťová střední škola i gymnázium, stejně jako obchody pro běžné potřeby a ordinace lékařů, jsou pohodlně dostupné pěšky.
Autostráda A25 je vzdálena přibližně 3 minuty autem.
K místní rekreaci láká nedaleký Allermöher See a několik parků a dětských hřišť. Díky loukám, bažinám a přírodní rezervaci Boberger Dünen lze podniknout nádherné, rozlehlé cyklistické výlety.
* V přízemí: vestavěná kuchyň, terakotové dlaždice v kuchyni a chodbě, dubový parket a podlahové topení v obývacím pokoji, krb, hostinské WC
* V horním patře: tři pokoje, koupelna se vanou, korková podlaha
* V podkroví: dva pokoje s okny ve výklencích, sprchová koupelna, kotelna, korková podlaha
* Dřevěné schody, konstrukce – horní patro uzavřeno, podkroví otevřeno
* Podkroví
* Terasa, zahrada, parkovací místo, kolárna
Dům byl průběžně modernizován. V roce 2018 byla kompletně zrekonstruována sprchová koupelna a v koupelně byl instalován nový dvojitý umyvadlový set s podstavcem.
V roce 2019 bylo vyměněno několik okenních tabulí, přičemž byly zachovány dřevěné rámy. V rámci této akce byly ošetřeny a natřeny vstupní dveře i všechny okenní rámy.
V roce 2020 byla provedena zkouška těsnosti základních rozvodů a šachet.
V roce 2021 bylo v obývacím pokoji instalováno podlahové topení a byl pokládán dubový parket.
V roce 2022 byl instalován nový krb – Contura 596 – který splňuje předepsané emisní limity.
V roce 2024 byl instalován nový ohřívač vody včetně nové přívodní linky, čerpadla a pojistného ventilu na přetlaku.
V roce 2025 bylo zajištěno připojení na optickou síť.
Dům se nachází ve velmi udržovaném stavu s běžnými známkami používání a lze do něj nastěhovat po individuálních malířských nebo tapetářských úpravách.
V okolí nemovitosti najdete
Stále hledáte to pravé?
Nastavte si hlídacího psa. Nabídky vybrané na míru dostanete souhrnně 1× denně e-mailem. S Premium profilem máte k ruce hlídačů rovnou 5 a když se něco objeví, informují vás obratem.


















