
Pronájem bytu 3+kk • 71 m² bez realitkyProsluněná, Praha - Hlubočepy
Prosluněná, Praha - HlubočepyČástečně vybaveno • Sklep 3,1 m² • Lodžie 2,7 m²Máte o nabídku zájem?
Ušetřete 30 900 Kč na provizi a komunikujte se všemi majiteli.
Dobrý den,
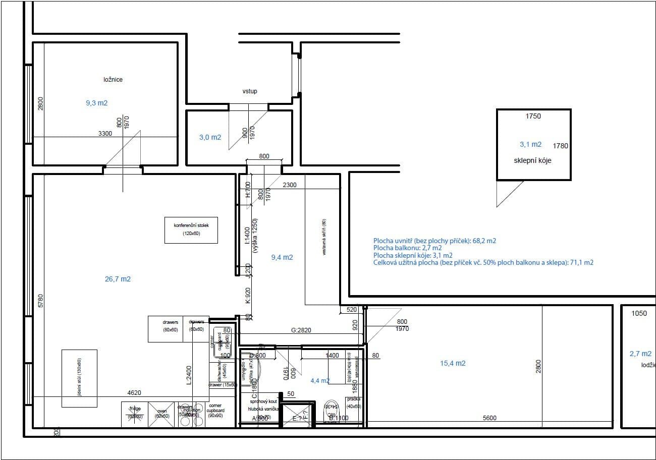
nabízíme k pronájmu byt 3+kk o užitné ploše 71,1 m². Součástí bytu je také lodžie o ploše 2,7 m² s úžasným výhledem na údolí Vltavy a protější svahy s dohledem na Vyšehrad a do centra metropole. Součástí je taktéž sklep o ploše 3,1 m² dostupný bezbariérově z ulice. Dále je možné využívat společné prostory.
Byt se nachází v třetím podlaží ze čtyř, dostupný po společném schodišti, bez výtahu. Dům je čtyřpodlažní, ve vchodě je tudíž pouze 11 bytů s velmi příjemnými sousedy. Příjemnou atmosféru dokresluje fakt, že se sousedé starají o zatravněný prostor a ohniště hned u vchodu do domu. Jedná se o konec slepé ulice a poslední ulici od Vltavy směrem k Děvínu, za domem začíná přírodní park, který přechází až do Prokopského a Dalejského údolí. Okna na jedné straně jsou orientována do zeleně s výhledem na Pražský Semmerink. Okna na straně druhé na zmíněné výhledy na Vyšehrad, Braník, Kavčí hory, ...
Byt je po kompletní rekonstrukci v udržovaném stavu (sami jsme v něm doposud bydleli a starali se o něj s péčí). Poskytuje tedy nové rozvody včetně elektrických rozvodů v mědi. Udělány jsou též podhledy s bodovým stmívatelným osvětlením.
Dispozici bytu včetně výměr naleznete v přiloženém plánku, stejně jako fotografie aktuálního stavu (na fotografiích je patrný nábytek, který však nebude součástí pronájmu - níže naleznete popis příslušenství, které v bytě zůstane). V bytě je dřevěná podlaha (kartáčovaný olejovaný dub) v kombinaci s kobercem a laminátovou podlahou v samostatných pokojích. Topení a teplá voda je ústřední (domy v ulici mají vlastní plynovou kotelnu). Poplatky jsou velmi příznivé na úrovni 4-5 tisíc Kč pro 5člennou rodinu (kromě elektřiny a internetu). Internet za ca 250 Kč, elektřina dle Vaší spotřeby (jen na vaření a svícení a domácí spotřebiče). V případě vážného zájmu zašleme předpis záloh.
Parkování je bezproblémové na místní modré zóně pro rezidenty, volno je tu vždy.
Z vybavení bude v bytě k dispozici: kuchyňská linka včetně všech spotřebičů, obrovská vestavěná skříň na chodbě, druhá vestavěná skříň v zádveří, umyvadlo se zrcadlem, případně skříňky v koupelně. Po domluvě lze ponechat i svítidla a závěsy (na oknech jsou i žaluzie).
Byt bude k dispozici nejdříve koncem února a nejpozději koncem března. V tomto intervalu se bude hledat termínová shoda s potenciálními zájemci. Vratná kauce ve výši 2 měsíčních nájmů (při bezproblémovém chodu lze posléze redukovat na 1 nájem). Od vážných zájemců budeme vyžadovat doložit s maximálním ohledem na soukromí (citlivé části lze skrýt) solventnost, způsobů je pro to několik. Byt je striktně nekuřácký a dřevěné podlahy náchylné k některým domácím mazlíčkům. Preferujeme dlouhodobé nájemce.
Moc děkujeme za Váš zájem a budeme se těšit na příjemné nové obyvatele našeho bytu.
Parametry nemovitosti
| Dostupné od | 1. 3. 2026 |
|---|---|
| Konstrukce budovy | Panel |
| Vybaveno | Částečně |
| Vytápění | Ústřední |
| PENB | D - Méně úsporná |
| Umístění | Klidná část |
| Cena za jednotku | 435 Kč / m2 |
| Stav | Po rekonstrukci |
|---|---|
| Dispozice | 3+kk |
| Podlaží | 3. podlaží z 4 |
| Číslo inzerátu | 985027 |
| Rekonstrukce | Kompletní |
| Užitná plocha | 71 m² |
Co tato nemovitost nabízí?
| Sklep 3,1 m² | |
| Lodžie 2,7 m² |
V okolí nemovitosti najdete
Máte o nabídku zájem?
Ušetřete 30 900 Kč na provizi a komunikujte se všemi majiteli.
Stále hledáte to pravé?
Nastavte si hlídacího psa. Nabídky vybrané na míru dostanete souhrnně 1× denně e-mailem. S Premium profilem máte k ruce hlídačů rovnou 5 a když se něco objeví, informují vás obratem.























