
Prodej bytu 3+kk • 60 m² bez realitkyAnny Drabíkové, Praha - Háje
Anny Drabíkové, Praha - HájeČástečně vybaveno • Výtah • Balkón 3 m² • Sklep 2 m²Využít program Bydlím hned, koupím později
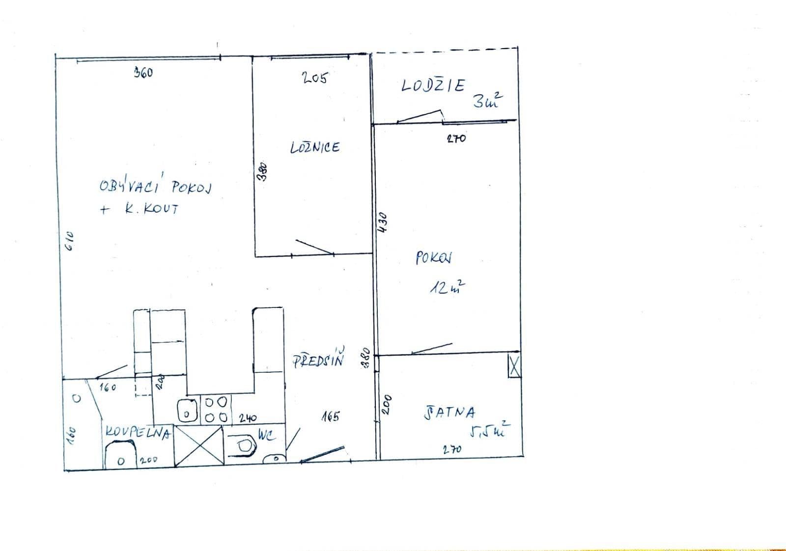
Prodávám byt ve 3NP, v dobrém stavu, 60m2 s lodžií 3m2 a sklepní kójí. Dům je zateplený, má plastová okna a opravené společné prostory – dveře, schodiště, chodby, výtahy, světla, optický kabel. Do domu jsou 2 vchody, jeden je bezbariérový. Samotný byt má zrekonstruované jádro v roce 2015, je udržovaný, ale vhodný spíš k instalaci nové vlastní kuchyně. Okna bytu jsou orientovaná na severovýchod – v létě se tedy nepřehřívá.
Přes ulici je hned mateřská školka (cca 20m), škola 3 minuty po chodníku. Přímo v ulici je dětský lékař, lékárna, kadeřnictví. Poliklinika Palas Athena je 60m od domu. Autobus 50m. Metro Háje a kulturní centrum Galaxie 300m.
Nyní jsme ve fázi, kdy byt vyklízíme z důvodu stěhování a budeme ho lehce rekonstruovat a malovat. Tudíž ještě chybí několik fotek interiéru a samotných místností, které poskytnu hned, jakmile bude byt vyklizen a vymalován. Nicméně i tak jsou již možné prohlídky. Pro další informace či domluvení prohlídky mě kontaktujte prostřednictvím zpráv zde nebo hned volejte na tel.č. uvedené v inzerátu.
Při rychlém jednání je možná sleva.
Děkuji, Tereza Fridrichová.
Realitní makléři, nevolejte!
Parametry nemovitosti
| Dostupné od | 1. 3. 2026 |
|---|---|
| Konstrukce budovy | Panel |
| Vybaveno | Částečně |
| Vytápění | Ústřední |
| Vlastnictví | Osobní |
| Rekonstrukce | Interiér |
| Užitná plocha | 60 m² |
| Cena za jednotku | 139 167 Kč / m2 |
| Stav | Dobrý |
|---|---|
| Dispozice | 3+kk |
| Podlaží | 2. podlaží z 11 |
| Číslo inzerátu | 987022 |
| PENB | C - Úsporná |
| Umístění | Klidná část |
| Rizika | Prověřit » |
Co tato nemovitost nabízí?
| Balkón 3 m² | |
| Sklep 2 m² | |
| Výtah |
V okolí nemovitosti najdete
Využít program Bydlím hned, koupím později
Stále hledáte to pravé?
Nastavte si hlídacího psa. Nabídky vybrané na míru dostanete souhrnně 1× denně e-mailem. S Premium profilem máte k ruce hlídačů rovnou 5 a když se něco objeví, informují vás obratem.












