
Prodej bytu 3+kk • 79 m² bez realitkyDukelských hrdinů, Praha - Holešovice
Využít program Bydlím hned, koupím později
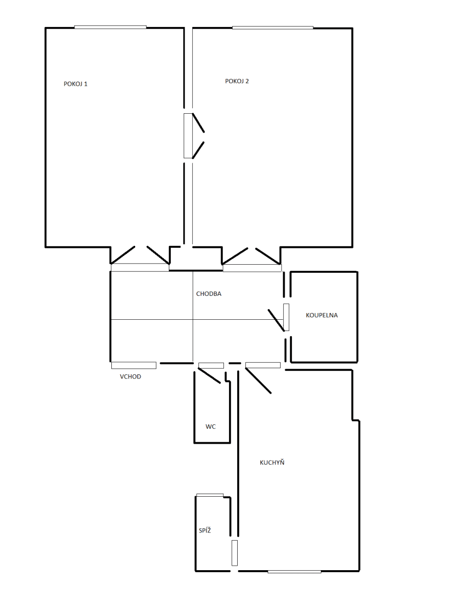
Nabízím k prodeji velmi světlý a prostorný byt 3+kk o výměře 79 m², který se nachází ve cihlové budově. Nemovitost je ve velmi dobrém stavu a je nabízena v osobním vlastnictví. Byt se nachází ve třetím patře z celkem pěti, přičemž budova je vybavena výtahem, což zajišťuje pohodlný přístup do všech pater.
Vysoké stropy, dveře, historické prvky, dřevěné podlahy po celkové rekonstrukci. Dvě místnosti orietovány na západ, ložnice do klidného vnitrobloku. Topení i ohřev vody na elektřinu.
V případě zájmu mě prosím kontaktujte prostřednictvím zpráv na komunikační platformě, kde se domluvíme na osobní prohlídce.
Parametry nemovitosti
| Dostupné od | 1. 5. 2026 |
|---|---|
| Konstrukce budovy | Cihla |
| Vybaveno | Nevybaveno |
| Číslo inzerátu | 988483 |
| PENB | G - Mimořádně nehospodárná |
| Užitná plocha | 79 m² |
| Cena za jednotku | 202 532 Kč / m2 |
| Stav | Dobrý |
|---|---|
| Dispozice | 3+kk |
| Podlaží | 3. podlaží z 5 |
| Vlastnictví | Osobní |
| Umístění | Klidná část |
| Rizika | Prověřit » |
Co tato nemovitost nabízí?
| Výtah |
V okolí nemovitosti najdete
Využít program Bydlím hned, koupím později
Stále hledáte to pravé?
Nastavte si hlídacího psa. Nabídky vybrané na míru dostanete souhrnně 1× denně e-mailem. S Premium profilem máte k ruce hlídačů rovnou 5 a když se něco objeví, informují vás obratem.















