
Pronájem bytu 4+1 • 118 m² bez realitkyJahnstraße 7 Osnabrück Osnabrück Niedersachsen 49080
Jahnstraße 7 Osnabrück Osnabrück Niedersachsen 49080MHD 1 minuta pěškyErstklassová poloha se snoubí s hojným prostorem: Tato 118 m² velká 4-pokojová bytová jednotka v 1. patře na ulici Jahnstraße je ideální základnou pro exkluzivní spolubydlení nebo náročné bydlení. Centrálně, klidně a s velkým balkonem – vzácná příležitost!
POPIS NEMOVITOSTI:
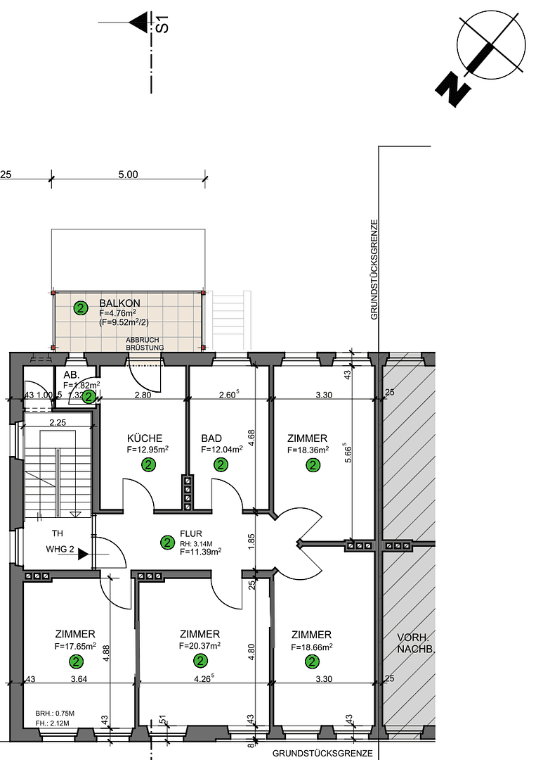
Bydlete tam, kde je Osnabrück nejkrásnější. Tento byt vyniká prvotřídním dispozicí: Čtyři samostatně přístupné pokoje ho činí ideálním objektem pro založení kvalitní spolubydlení nebo také pro rodinu či páry hledající prostor. Krásná dřevěná parketa ve spojení s vysokými stropy dodává bytu vznešený charakter, který je perfektně doplněn klidnou polohou v boční ulici (Jahnstraße). Po univerzitě nebo po práci se nejlépe relaxuje na velkém balkoně (10 m²) – luxus, který se v této centrální lokalitě téměř nikomu neosvědčí. Krátká cesta k fakultám, do centra i k populárním kavárnám ve Wüste činí tuto nemovitost skutečnou výhodou lokality.
K balkonu:
V březnu dojde v kuchyni ke výměně stávajícího okna za balkón a následně bude přístavěn 10 m² velký balkon.
VYBAVENÍ:
- Plocha: Štědrých 118 m² obytné plochy
- Pokoje: 4 pokoje + kuchyň s komorou + koupelna
- Venkovní: Velký 10 m² balkon
- Kouzlo: Krásná originální dřevěná parketa a šarm historické budovy
- Lokalita: Prémiová mikrolokace ve Wüste (Jahnstraße), klidná a centrální
- Patro: Pohodlné bydlení v 1. patře
- Kuchyň: Před 2 lety byla instalována nová kuchyň, která je pronajímána za 50 € měsíčně (bez lednice). (Pračka bude ještě odstrčena a místo ní bude nainstalována zásuvková skříň o šířce 60 cm).
- Byt je dále předáván zcela nevybavený. Na požádání mohou být vybrané kusy nábytku převzaty od předchozího nájemce.
Nájemné se skládá následovně:
- Základní nájemné (byt): 1 200,00 €
- Záloha na provozní náklady: 130,00 €
- Záloha na náklady na vytápění: 200,00 €
- Celkové nájemné (včetně energie): 1 530,00 €
*Volitelně: samostatný sklep k pronájmu (40 € měsíčně).
K nastěhování:
Byt je k nastěhování k dispozici ihned od 01.03.2026. Nejpozdější možný termín nastěhování by měl být 01.04.2026.
Rádi s vámi domluvíme prohlídku, abyste se sami přesvědčili o tomto bydlení snů.
Abychom však mohli vaši poptávku řádně zohlednit, uveďte prosím nezbytně následující údaje:
- úplná jména + věk
- povolání + čistý rodinný příjem
- kolik osob se stěhuje
- plánované/možné datum nastěhování
Těšíme se na vaši poptávku.
V okolí nemovitosti najdete
Stále hledáte to pravé?
Nastavte si hlídacího psa. Nabídky vybrané na míru dostanete souhrnně 1× denně e-mailem. S Premium profilem máte k ruce hlídačů rovnou 5 a když se něco objeví, informují vás obratem.



















