
Pronájem bytu 2+kk • 56 m²Poděbradská, Praha - Hloubětín
Poděbradská, Praha - HloubětínMHD 1 minuta pěškyPoznámka k ceně
+ poplatky 3.749 Kč/měsíc/2 os. (každá další osoba za příplatek) + elektřina, která bude převedena na nájemníkaMáte o nabídku zájem?
Ušetřete 23 990 Kč na provizi a komunikujte se všemi majiteli.
Vzhledem k vysokému zájmu o námi inzerované nemovitosti žádáme všechny vážné zájemce o prohlídky, aby nás pro rychlý a efektivní postup kontaktovali výhradně skrze formulář níže. Následně Vám emailem zašleme krátký osobní dotazník, ve kterém bude třeba uvést několik základních informací. Po vyplnění tohoto dotazníku obdržíte informaci o dalším postupu. Než se setkáme na prohlídce, podívejte se prosím na výhody bydlení s námi na webu Dokonalý nájemník v sekci „Hledám bydlení“. Tuto sekci najdete přímo v horním menu našich internetových stránek.
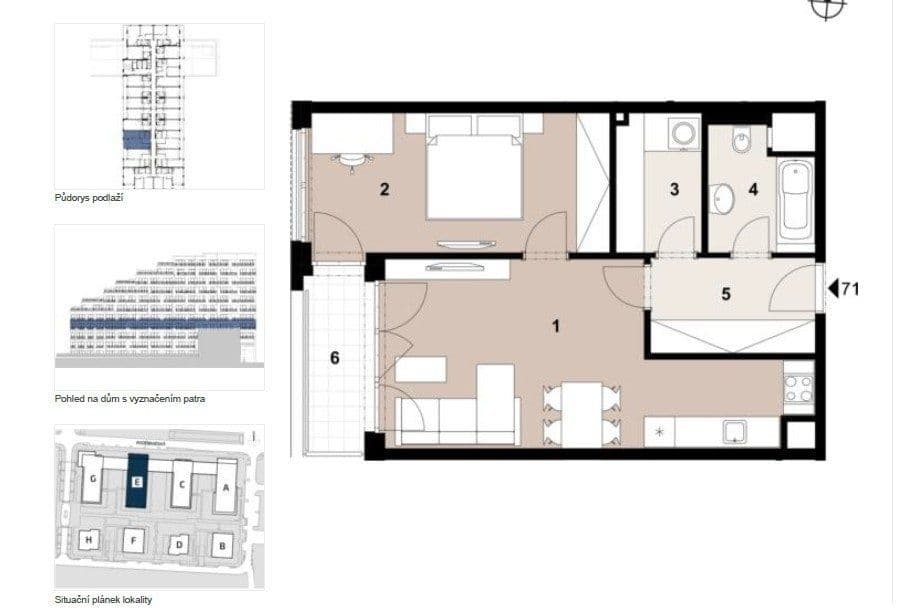
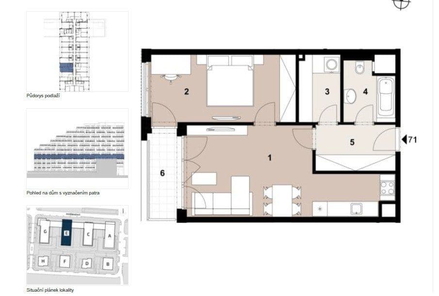
Nabízíme k podnájmu zcela nový byt 2+kk s užitnou plochou 55,6 m² ve 4. nadzemním podlaží v úspěšném rezidenčním projektu Tesla Hloubětín, který se nachází v atraktivní lokalitě Prahy 9 – Hloubětín, přímo u tramvajové zastávky. Projekt je navržen v moderním stylu a ve vysokém standardu. Byt má promyšlené dispoziční řešení - díky částečně oddělenému prostoru kuchyňského koutu si obyvatelé mohou užít otevřenost a vzdušnost interiéru i jeho praktičnost při každodenním fungování. Ve vstupní v chodbě bude instalována vestavěná šatní skříň, ostatní vybavení interiéru tak již bude podle Vašeho stylu a představ. Západně orientovaná lodžie, která je přístupná z obou pokojů, nabízí výhled do klidného vnitrobloku. Okna směrem do ložnice jsou navíc osazena elektricky ovládanými roletami.
Standardním vybavením bytů v tomto projektu je moderní systém větrání s rekuperací tepla, který zajišťuje optimální kvalitu vzduchu a přispívá k energetické úspornosti (kategorie B). Místnost vedle koupelny (vybavená pračkou) může sloužit např. jako šatna nebo technické zázemí. Sklepní kóje je součástí podnájmu, za příplatek (2.500 Kč/měsíc) je k bytu možné pronajmout parkovací stání v podzemních garážích.
Nabídka je určena výhradně k dlouhodobému podnájmu a je ihned k nastěhování.
Rezidenční projekt Tesla Hloubětín představuje moderní městskou čtvrť s výbornou dopravní dostupností, kompletní občanskou vybaveností a dostatkem zeleně. Tramvajová zastávka Nademlejnská se nachází přímo u areálu, stanice metra Hloubětín je vzdálena přibližně 3 minuty, stanice Českomoravská pak 5 minut. Součástí projektu je plánovaný rozsáhlý park se zelení, pěšími zónami a dětskými hřišti, doplněný o kavárny, restaurace a obchody v přízemí domů. V rámci areálu jsou dále plánovány mateřské školy, fitness zóna pro dospělé a hřiště na pétanque. V bezprostředním okolí se nachází ZŠ a MŠ Elektra, nákupní centrum Galerie Harfa, sportovní areál Hloubětín a oblíbené relaxační lokality jako Kejřův park, Hořejší rybník či fitness stezka podél Rokytky. Architektonický koncept projektu čerpá z industriální historie lokality a propojuje moderní bydlení s pohodlným městským životem.
Poznámka k ceně: Poplatky za služby vč. pojištění domácnosti a odpovědnosti činí 3.749 Kč/měsíc + elektřina, která bude převedena na nájemníka. Při podpisu smlouvy nájemník hradí první nájemné, dále rezervaci a vratnou kauci ve výši jedné měsíční platby.
Pokud se nemůžete na prohlídku bytu dostavit osobně, je možné domluvit prohlídku formou videohovoru. V reakci na tento inzerát o sobě prosím uvádějte alespoň základní informace (počet osob, zaměstnání, od kdy hledáte bydlení, zda máte domácího mazlíčka). Děkujeme.
Parametry nemovitosti
| Dostupné od | 1. 3. 2026 |
|---|---|
| Konstrukce budovy | Smíšená |
| Vybaveno | Nevybaveno |
| Číslo inzerátu | 991770 |
| PENB | B - Velmi úsporná |
| Užitná plocha | 56 m² |
| Stav | Novostavba |
|---|---|
| Dispozice | 2+kk |
| Podlaží | 4. podlaží |
| Vlastnictví | Osobní |
| Odpad | Veřejná kanalizace |
| Cena za jednotku | 428 Kč / m2 |
Co tato nemovitost nabízí?
| MHD 1 minuta pěšky |
V okolí nemovitosti najdete
Poznámka k ceně
+ poplatky 3.749 Kč/měsíc/2 os. (každá další osoba za příplatek) + elektřina, která bude převedena na nájemníkaMáte o nabídku zájem?
Ušetřete 23 990 Kč na provizi a komunikujte se všemi majiteli.
Stále hledáte to pravé?
Nastavte si hlídacího psa. Nabídky vybrané na míru dostanete souhrnně 1× denně e-mailem. S Premium profilem máte k ruce hlídačů rovnou 5 a když se něco objeví, informují vás obratem.


































