
Prodej bytu 2+kk • 59 m² bez realitkyPod Harfou, Praha - Vysočany
Pod Harfou, Praha - VysočanyVybaveno • Výtah • Garáž • Lodžie 8 m²Využít program Bydlím hned, koupím později
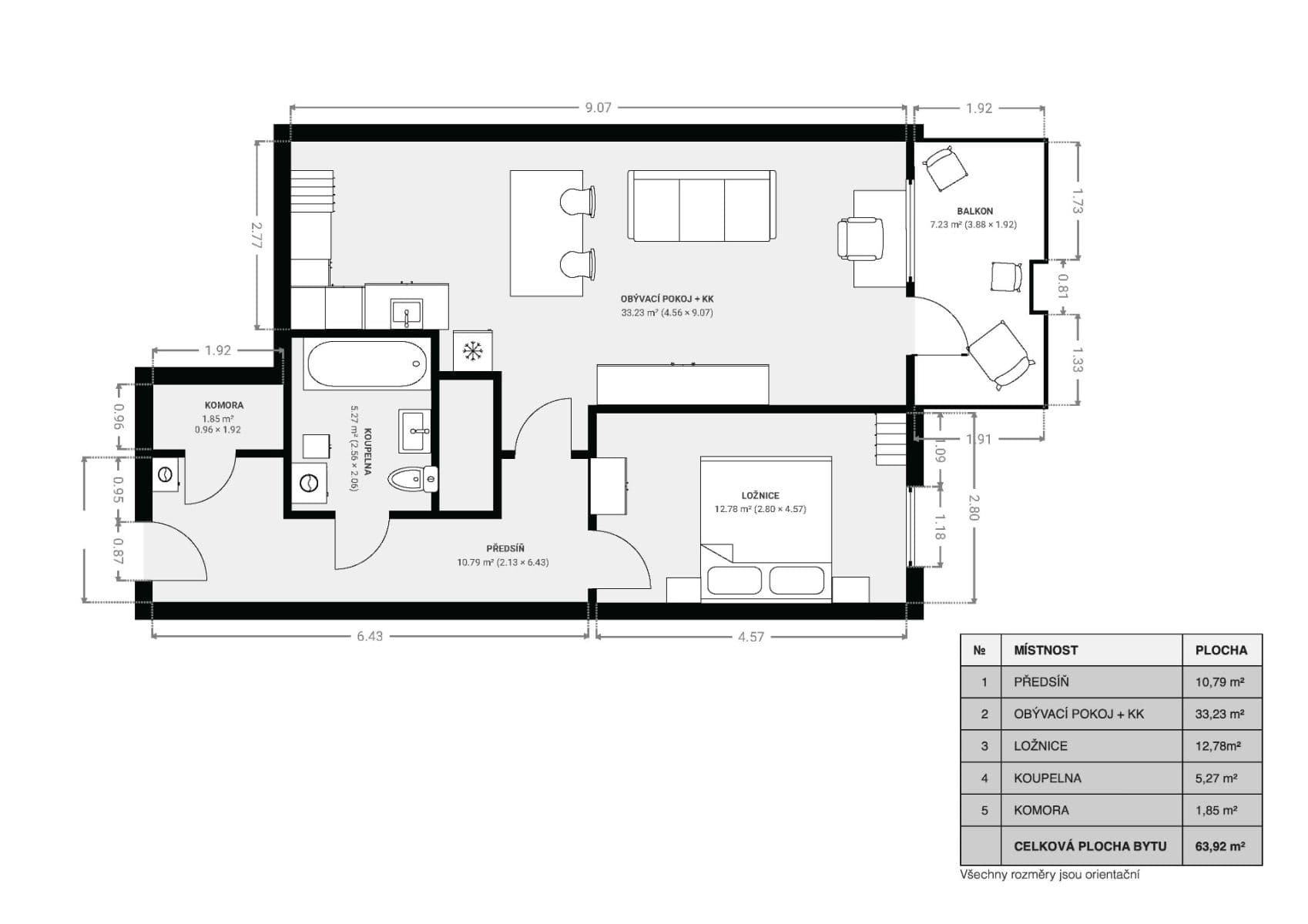
Prodej bytu 2+kk, 67 m2 s lodžií, komorou a parkovacím stáním – Pod Harfou 25, Praha 9 – Vysočany
nabízíme k prodeji byt nacházející se v 6 NP projektu Nová Harfa v žádané lokalitě Praha 9 – Vysočany. Celková výměra bytu činí 59 m2 + lodžie 8 m2. Součástí bytu je vnitřní komora a podzemní parkovací stání.
Dispozice 2+kk nabízí praktické a komfortní uspořádání vhodné jak pro vlastní bydlení, tak pro investici. Součástí bytu je komora, která poskytuje vítaný úložný prostor. Lodžie o velikosti 8 m2 nabízí příjemné místo k odpočinku a podzemní parkovací stání zajišťuje pohodlí každodenního parkování.
Velkou výhodou je samotná poloha – přímo naproti domu se nachází supermarket Albert, v bezprostřední blízkosti je tramvajová zastávka Kabešova a v docházkové vzdálenosti stanice metra B Českomoravská. Nedaleko se nachází obchodní centrum Galerie Harfa i multifunkční hala O2 arena. Lokalita nabízí kompletní občanskou vybavenost, služby, restaurace i zeleň v okolí říčky Rokytky.
Nemovitost představuje stabilní investici a komfortní bydlení v dynamicky se rozvíjející části Prahy 9.
Pro více informací či sjednání prohlídky mě neváhejte kontaktovat.
Apartment for Sale (1-Bedroom / 2+kk), 67 m² with Loggia, Storage Room and Parking Space – Pod Harfou 25, Prague 9 – Vysočany
We exclusively offer for sale an apartment located on the 6th floor of the Nová Harfa residential project in the sought-after area of Prague 9 – Vysočany.
The total floor area of the apartment is 59 m² + an 8 m² loggia. The unit also includes an internal storage room and an underground parking space.
The 1-bedroom layout (2+kk) provides a practical and comfortable arrangement, suitable both for owner-occupancy and as an investment. The storage room offers convenient additional space. The 8 m² loggia provides a pleasant area for relaxation, while the underground parking space ensures convenient everyday parking.
A major advantage is the location itself – directly opposite the building is a supermarket Albert, with the Kabešova tram stop nearby and the B-line metro station Českomoravská within walking distance. Close by are the Galerie Harfa shopping center and the multifunctional O2 Arena.
The area offers full civic amenities, services, restaurants, and green spaces along the Rokytka stream.
This property represents a stable investment opportunity and comfortable living in a dynamically developing part of Prague 9.
For more information or to arrange a viewing, please do not hesitate to contact me.
Parametry nemovitosti
| Dostupné od | 20. 2. 2026 |
|---|---|
| Konstrukce budovy | Smíšená |
| Vybaveno | Vybaveno |
| Číslo inzerátu | 993134 |
| PENB | B - Velmi úsporná |
| Užitná plocha | 59 m² |
| Cena za jednotku | 161 016,95 Kč / m2 |
| Stav | Velmi dobrý |
|---|---|
| Dispozice | 2+kk |
| Podlaží | 6. podlaží z 11 |
| Vlastnictví | Osobní |
| Umístění | Klidná část |
| Rizika | Prověřit » |
Vybíráte byt?
Mějte jistotu, že máte všechny důležité informace!
Co tato nemovitost nabízí?
| Garáž | |
| Výtah |
| Lodžie 8 m² |
V okolí nemovitosti najdete
Využít program Bydlím hned, koupím později
























