
Prodej bytu 5+1 • 119 m² bez realitkyDominova, Praha - Stodůlky
Dominova, Praha - StodůlkyČástečně vybaveno • Výtah • Sklep 4 m² • Lodžie 7 m²Využít program Bydlím hned, koupím později
Prostorný rodinný mezonet v posledním patře s výhledy a potenciálem.
Přímo od majitele nabízím k prodeji prostorný mezonetový byt 5+1 v posledním patře domu, ideální pro rodinu, která hledá klid, soukromí a možnost vytvořit si bydlení přesně podle vlastních představ. Byt se nachází v klidné části Prahy 5 – Stodůlky, jen pár minut chůze od metra Hůrka a v bezprostřední blízkosti zeleně.
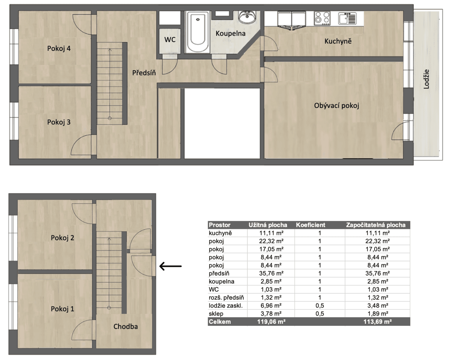
Byt o celkové podlahové ploše 119 m² je rozložen do dvou podlaží, což poskytuje dostatek prostoru i soukromí pro větší rodinu. Dominantou bytu je světlý obývací pokoj s výstupem na lodžii o velikosti 7 m², odkud se otevírají ničím nerušené výhledy do okolí.
Dispozice nabízí celkem pět obytných místností, samostatnou kuchyni, koupelnu, oddělené WC a dostatek úložných prostor včetně vestavěných skříní. Součástí bytu je také sklepní kóje o velikosti 3,78 m².
Byt je udržovaný a ihned obyvatelný, zároveň však představuje výbornou příležitost k rekonstrukci, díky které lze naplno využít jeho prostorový potenciál a vytvořit moderní rodinné bydlení přesně podle vlastního vkusu. Šikovný investor bude případně schopen i vybudovat sociální zázemí ve spodním patře a rozdělit bytovou jednotku na dvě.
Pro lepší představu o možnostech budoucí podoby bytu jsou součástí inzerátu také vizualizace možného stavu po rekonstrukci.
Dům prošel v posledních letech rozsáhlou modernizací – nové rozvody, moderní výtahy, zateplená střecha, rekonstruované balkony a fasáda z ulice Dominova. Vnitroblok je aktuálně připravován k zateplení. Umístění v posledním patře zajišťuje klidné bydlení bez rušivých vlivů shora.
Lokalita nabízí kompletní občanskou vybavenost – školy, školky, obchody, sportoviště i rychlou dostupnost MHD. Byt je v osobním vlastnictví a připraven k převodu.
Proč právě tento byt
✔️ Mezonetový byt 5+1 o ploše 119 m²
✔️ Poslední patro – klid, soukromí a výhledy
✔️ Lodžie 7 m² + sklepní kóje 3,78 m²
✔️ Výborná dostupnost metra Hůrka
✔️ Dům po rozsáhlé modernizaci
✔️ Skvělý základ pro rekonstrukci podle vlastních představ
Ideální volba pro ty, kteří hledají prostor, klid a dlouhodobou hodnotu v jedné z nejžádanějších částí Prahy 5.
Spacious family duplex on the top floor with views and potential.
Directly from the owner, I am offering for sale a spacious 5+1 duplex apartment on the top floor of the building, ideal for a family seeking tranquility, privacy, and the opportunity to create a home exactly to their own specifications. The apartment is located in a quiet part of Prague 5 – Stodůlky, just a few minutes’ walk from Hůrka metro station and in the immediate vicinity of greenery.
The apartment, with a total floor area of 119 m², is spread over two levels, offering plenty of space and privacy for a larger family. The highlight of the apartment is the bright living room with access to a 7 m² loggia, from which uninterrupted views of the surroundings unfold.
The layout includes a total of five living rooms, a separate kitchen, a bathroom, a separate WC, and ample storage space including built-in wardrobes. The apartment also comes with a cellar storage room of 3.78 m².
The apartment is well-maintained and ready for immediate occupancy, yet it also represents an excellent opportunity for renovation, which would fully realize its spatial potential and allow the creation of modern family living exactly to one’s own taste. A savvy investor might even be able to develop additional social facilities on the lower floor and divide the apartment unit into two.
For a better idea of the apartment’s potential appearance after reconstruction, the advertisement also includes visualizations of a possible post-renovation state.
The building has undergone extensive modernization in recent years – including new utility systems, modern elevators, an insulated roof, renovated balconies, and a renovated facade on Dominova street. The inner courtyard is currently being prepared for insulation. Being located on the top floor ensures peaceful living without disturbances from above.
The area offers complete civic amenities – schools, kindergartens, shops, sports facilities, and excellent public transport accessibility. The apartment is privately owned and ready for transfer.
Why this apartment?
✔️ Duplex apartment 5+1 with an area of 119 m²
✔️ Top floor – tranquility, privacy, and views
✔️ 7 m² loggia + 3.78 m² cellar storage room
✔️ Excellent access to Hůrka metro station
✔️ Building after extensive modernization
✔️ A great foundation for a renovation tailored to your own ideas
An ideal choice for those who are looking for space, tranquility, and long-term value in one of the most sought-after parts of Prague 5.
Parametry nemovitosti
| Dostupné od | 25. 2. 2026 |
|---|---|
| Konstrukce budovy | Panel |
| Vybaveno | Částečně |
| Číslo inzerátu | 994768 |
| PENB | G - Mimořádně nehospodárná |
| Užitná plocha | 119 m² |
| Cena za jednotku | 98 739,50 Kč / m2 |
| Stav | Dobrý |
|---|---|
| Dispozice | 5+1 |
| Podlaží | 7. podlaží z 7 |
| Vlastnictví | Osobní |
| Umístění | Sídliště |
| Rizika | Prověřit » |
Co tato nemovitost nabízí?
| Sklep 4 m² | |
| Výtah |
| Lodžie 7 m² |
V okolí nemovitosti najdete
Využít program Bydlím hned, koupím později


















