
Pronájem bytu 3+kk • 131 m² bez realitky, Bádensko-Württembersko
, Bádensko-WürttemberskoMHD 1 minuta pěšky • Parkování • GarážK dispozici od 01.05.2026.
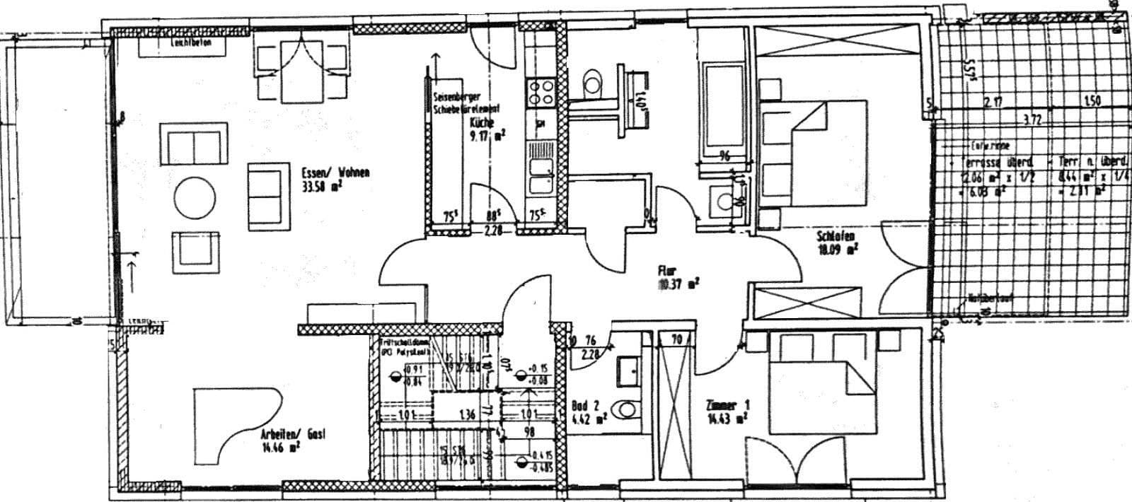
Tento výjimečný byt se rozprostírá zcela v jedné úrovni a nabízí přístup k vlastní, nesledovatelné zahradě s rozsáhlou, částečně krytou terasou – naprosto klidný a soukromý.
Z chodby se dostanete do otevřeného obývacího a jídelního prostoru. Prostřednictvím velké posuvné dveře máte ze západního balkonu výhled na Rýnskou nížinu.
Byt disponuje dvěma plnohodnotnými koupelnami s dostatkem denního světla. Koupelna č. 1 je vybavena sprchovým koutem bez schodů, zatímco koupelna č. 2 nabízí jak vanu, tak sprchu. V této koupelně je také vyhrazen samostatný prostor pro pračku a sušičku.
Z každé místnosti máte přímý vstup do exteriéru. Ložnice orientovaná na východ poskytuje přímý přístup do zahrady.
Menší místnost sousedící s obývacím a jídelním prostorem je navíc výborně využitelná jako pracovna.
Obě ložnice jsou vybaveny kvalitními olejovanými parketami. V obývacím/jídelním prostoru, chodbě i kuchyni jsou položeny dlaždice.
Vestavěná kuchyň s kombinací chladničky a mrazáku je vybavena veškerými potřebnými elektrospotřebiči (varná deska, digestoř, trouba, myčka na nádobí) a její využití je zahrnuto v nájemném.
Před samostatnou garáží s přístupem do domu se nachází další parkovací místo. Garáž lze snadno vybavit wallboxem pro nabíjení elektromobilů.
K bytu náleží také sklepní místnost s připojením na elektřinu.
Dalším plusem jsou nízké provozní náklady díky využití geotermální energie.
Pokud hledáte byt rozprostřený na jedné úrovni, spojený s privátní zahradou, vysoce kvalitním vybavením a výbornou dostupností, je tento objekt vaším ideálním novým domovem.
Tato exkluzivní nemovitost se nachází ve Weinheim-Lützelsachsen v blízkosti zámkového parku. Malebné historické centrum s jedním z nejkrásnějších tržních náměstí Bádenska-Württemberska, zámkový park i exotický les jsou dosažitelné během několika minut chůze.
Nejlepší infrastruktura – všechny školy, mateřské školy, obchody a veřejná doprava jsou v bezprostřední blízkosti a rychle dostupné. Autobusová zastávka se nachází přibližně 100 metrů od domu.
• Vestavěná kuchyň
• Okna sahající až k podlaze
• Podlahové vytápění
• Elektrické žaluzie, resp. rolety v ložnicích
• Trojité zasklení
• Koupelny s dostatkem denního světla a topným tělesem pro osušení ručníků
• Terasa a balkon
• Vlastní zahrada
• Garáž s přilehlým venkovním parkovacím místem
V okolí nemovitosti najdete
Stále hledáte to pravé?
Nastavte si hlídacího psa. Nabídky vybrané na míru dostanete souhrnně 1× denně e-mailem. S Premium profilem máte k ruce hlídačů rovnou 5 a když se něco objeví, informují vás obratem.
















