
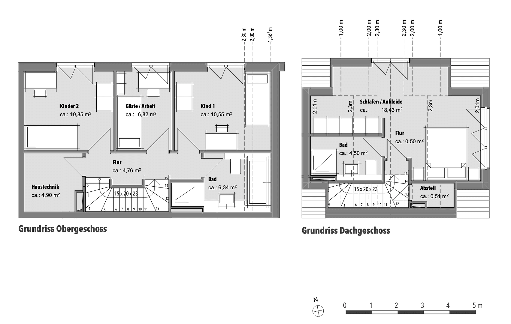
Pronájem bytu 4+kk • 124 m² bez realitkyHamburg Lurup Hamburg 22547
Níže naleznete překlad textu do češtiny:
Prosím, přečtěte → Upozornění k prohlídkovému procesu
Prosíme o pochopení, že prohlídky se mohou uskutečnit pouze po úspěšném online předběžném ověření.
Průběh:
1. Výstižný dotaz s krátkým představením a účelem využití
2. Virtuální 360-stupňová prohlídka na vyžádání
3. Rodinný příjem a vlastní prohlášení budou ověřeny předem
Až po vzájemném zájmu a pozitivním ověření proběhne osobní schůzka na místě.
--> Proto vás prosíme, abyste se zdrželi obecných žádostí o prohlídky bez předložených dokumentů nebo představení – děkujeme za vaše pochopení!
V okolí nemovitosti najdete
Stále hledáte to pravé?
Nastavte si hlídacího psa. Nabídky vybrané na míru dostanete souhrnně 1× denně e-mailem. S Premium profilem máte k ruce hlídačů rovnou 5 a když se něco objeví, informují vás obratem.














































