
Prodej domu 6+1 • 150 m² bez realitky, Bavorsko
, BavorskoMHD 1 minuta pěšky • Parkování • GarážPro rodiny s dětmi, milovníky přírody, soběstačné – kdo ocení klidný život ve spojení с přírodou – zde může splnit svůj sen!
Péčlivě udržovaný a neustále renovovaný rodinný dům byl postaven v roce 1977 masivní konstrukcí a nabízí perfektní možnosti pro individuální rozvoj.
Obytná plocha se rozprostírá na třech úrovních, celkem je zde 6 světlých pokojů a přibližně 150 m² obytné plochy; půdní prostor poskytuje dodatečnou rezervu pro případný objezd, který může vzniknout ve formě oázy klidu či něčeho podobného. Dům lze bez obtíží přestavět také na dům pro dvě rodiny.
Zde lze žít a pracovat v harmonii s přírodou, a ještě k tomu se můžete nastěhovat se zavazadly, protože objekt je prodáván částečně zařízený (např. studiový pokoj, šatna; rovněž zahradní vybavení).
Proto platí: Nenechte si tuto příležitost ujít – nastěhujte se a nechte se hýčkat!
Vlastnosti v bodech
Obecné:
• 1700 m² pozemek, 150 m² obytná plocha
• Parkovací místa: garáž, venkovní parkovací místo
• 3 podlaží
• Sklep upravený, půda kompletně upravená
• Rezerva pro další využití na půdě (cca 50 m²)
• Jižní orientace s úžasným výhledem na Steigerwald
Interiér:
• Prostorné, světlé uspořádání místností
• 2 koupelny s dešťovými/masážními sprchami, 1 sprchový kout, částečně s francouzskou dlažbou
• Hostinský záchod
• Kuchyň s předprostorem (speis)
• Podlahové krytiny: dlaždice, parkety, laminát
• 2 vstupy na terasu (z jídelny a obývacího pokoje)
• 2 balkóny (východní a severní)
• 2 přípojky pro kamna na pevné palivo (v 1. a 2. patře)
• Převážně bílá plastová okna s dvojskly (izolační sklo 35 dp)
Exteriér:
• Terasa orientovaná na východ a jih (celkem cca 80 m²) s pergolou, 2 Warema markýzy (2021)
• Zahrada uspořádaná jako park se dvěma grilovacími místy a zařízeními pro ukládání, skleník
• Domácí studna
Elektrická/energetická zařízení:
• Pelletový kotel (2021)
• Solární podpora
• Balkónová solární elektrárna 2025 (800 kWh) a 2 menší fotovoltaické systémy (2022)
• Garáž s elektrickými posuvnými vraty
• WLAN
• Interkomový systém
Nemovitost se nachází v klidné části Vestenbergsgreuth, v slunné lokalitě a příjemném sousedství s přímým nezastiřitelným výhledem na Steigerwald. Z domu můžete vyrazit na pěší túru nebo na kole, což okamžitě vyvolá pocit dovolenkové atmosféry. Díky výbornému dopravnímu spojení po dálnici A3 (vjezd Schlüsselfeld, Höchstadt Aisch) je možné navštívit kulturní centra Würzburg/Norimberk nebo franské vinařské oblasti jako Volkach, Kitzingen, Iphofen a další.
Dům se nachází v ideální poloze mezi Burghaslach, Höchstadt Aisch a Neustadt Aisch, kde se venkovská idyla snoubí s praktickou blízkostí k okolním městům, kde najdete veškeré základní služby, školy, mateřské školy, lékárny, lékaře apod.
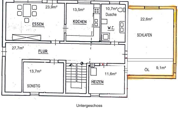
Přízemí / sklep jako samostatné podlaží:
• 1 studiový pokoj/hostinský pokoj s východem na terasu směrem na sever (renovace 2019/20)
• Technická a skladová místnost pro pelletový kotel (2021)
• Prádelna (plánovaná renovace 2025)
• Skladovací místnost. Všechny podlahy jsou průběžně dlažděné.
Vedle domu se nachází garáž, která disponuje krytím, takže se můžete dostat k vchodu suchou nohou.
1. patro / obytné podlaží:
• Jídelna s dřevěným stropem a samostatným východem na terasu na jižní stranu
• Obývací pokoj s parketovou podlahou, přípojkou pro kamna na pevné palivo; vstup na terasu na jižní stranu a přístup na severní balkón
• Čtvercová kuchyň se nachází uprostřed
• Naproti jsou předprostor, hostinský záchod a koupelna s bezbariérovým sprchovým koutem (plánovaná renovace 2025)
2. patro / půda:
• Tři světlé obytné/spací/pracovní místnosti orientované na jih s výhledem do zahrady
• Velká bílá střešní okna v rustikálním stylu, která dělají půdu slunnou a prostornou
• 1 koupelna s kulatou a dešťovou sprchou, kdy jsou stěny obkládány francouzskými dlaždicemi
• Šatna (plánovaná renovace 2025)
Toto patro lze také přestavět na samostatný byt s využitím rezervy pro další využití na půdě. Z domu pak na východní straně vybočuje další balkón.
Parková zahradní plocha:
Zahrada je uspořádána jako park a je přístupná z více stran. Je rozdělena na růžovou a bylinkovou zahradu s vyvýšenými záhony, 2 grilovací stanice a několik dřevěných kůl pro úschovu zahradního nářadí. Celý pozemek je protkán chodníky a terasami. Pro zavlažování slouží vlastní studna (domovní vodárna) s několika kohouty.
Ať už jste králem grilu nebo hobby zahradník, kdo ocení přírodu a příjemnou atmosféru, zde jistě najde své osobní nebe!
Dům se prodává částečně zařízený (což snižuje daň z nabytí nemovitosti pro kupujícího).
Nástup do nemovitosti probíhá po dohodě.
V okolí nemovitosti najdete
Stále hledáte to pravé?
Nastavte si hlídacího psa. Nabídky vybrané na míru dostanete souhrnně 1× denně e-mailem. S Premium profilem máte k ruce hlídačů rovnou 5 a když se něco objeví, informují vás obratem.




















