
Pronájem bytu 2+1 • 70 m² bez realitkyBílkova, Praha - Josefov
Máte o nabídku zájem?
Ušetřete 30 000 Kč na provizi a komunikujte se všemi majiteli.
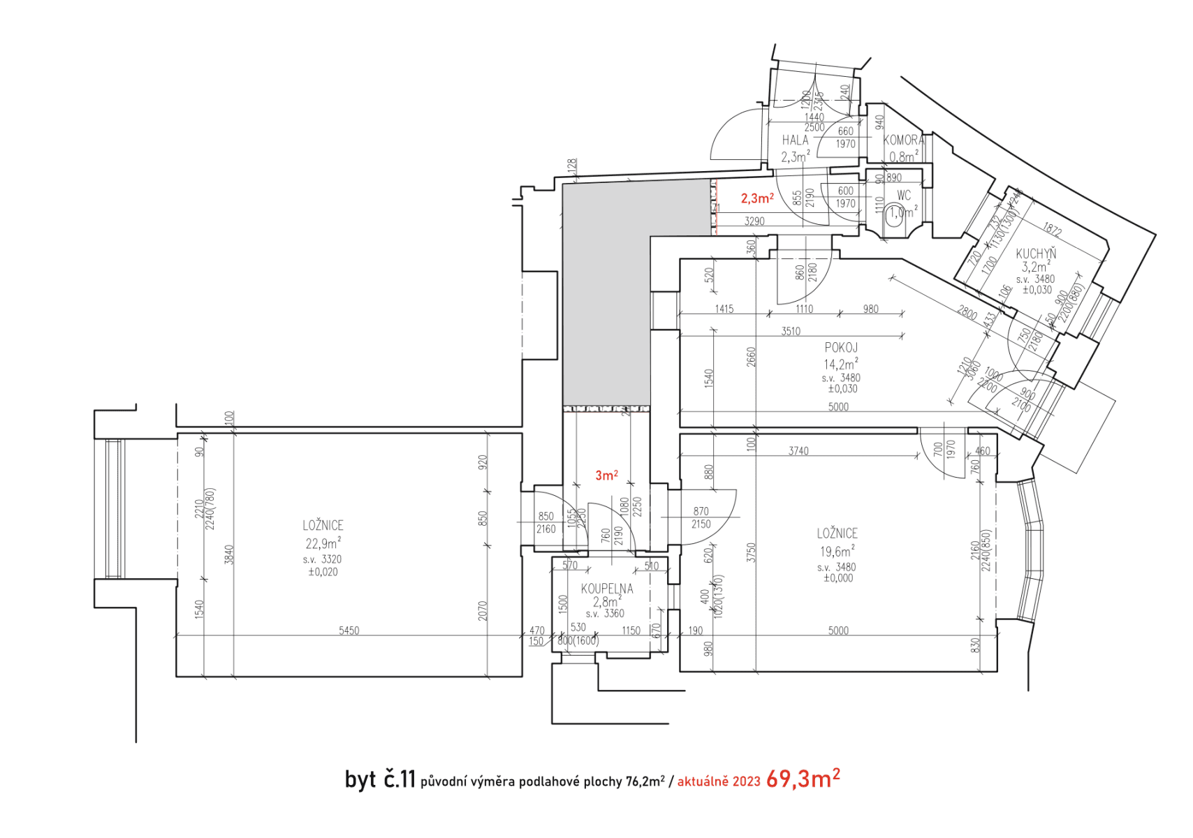
Nabízím k dlouhodobému pronájmu příjemný a světlý 2+1 byt s rozlohou 70 m², který se nachází v cihlové budově o celkové výšce čtyř podlaží. Byt, situovaný ve 3 patře, je ve velmi dobrém stavu a díky pečlivé údržbě si zachovává moderní a čistý vzhled. Interiér je nevybavený, což nabízí možnost upravit prostor dle vlastních představ, ačkoli základní dispozice zajišťuje pohodlné bydlení s dostatkem prostoru pro individuální přizpůsobení. Součástí bytu je také malý balkon o ploše 1,5 m², který je ideální pro chvíle odpočinku na čerstvém vzduchu. Budova disponuje výtahem, což výrazně usnadňuje přístup do bytu. Pro více informací a sjednání prohlídky mne kontaktujte skrz zprávy pomocí komunikační platformy.
V okolí nemovitosti najdete
Máte o nabídku zájem?
Ušetřete 30 000 Kč na provizi a komunikujte se všemi majiteli.
Stále hledáte to pravé?
Nastavte si hlídacího psa. Nabídky vybrané na míru dostanete souhrnně 1× denně e-mailem. S Premium profilem máte k ruce hlídačů rovnou 5 a když se něco objeví, informují vás obratem.





















