
Prodej domu 5+1 • 127 m² bez realitkyHamburg Osdorf Hamburg 22609
Hamburg Osdorf Hamburg 22609MHD 1 minuta pěškyTento moderní řadový dům nabízí na přibližně 136 m² obytné plochy (podle normy DIN 277 promyšlené dispoziční řešení se třemi prostornými ložnicemi, samostatnou pracovnou a dvěma koupelnami. Srdcem domu je světlý obývací a jídelní prostor s výhledem do zasazené zahrady, který vytváří příjemnou a útulnou atmosféru.
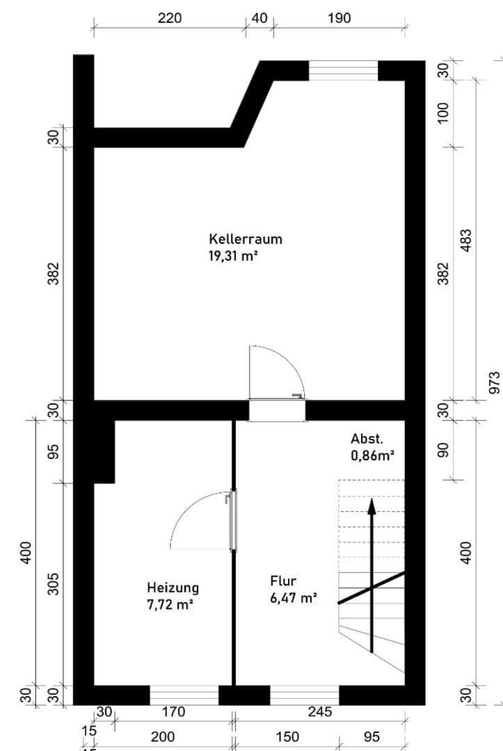
Pečlivě upravená zahrada se slunnou terasou orientovanou na jih či jihozápad zve k odpočinku venku. Vybavení je moderní a kvalitní: nová střecha s vnější i vnitřní izolací, zrekonstruovaná elektroinstalace, nové vodovodní potrubí v koupelně a kuchyni, moderní vestavná kuchyň a kompletní koupelna se sprchou i vanou. V přízemí je navíc k dispozici i hostinská toaleta se sprchou a přirozeným denním světlem. Dům se kompletním sklepem dále nabízí vytápěnou místnost pro volnočasové aktivity s řadou možností využití.
Kombinace udržované zahrady, rodinně přívětivého okolí a bydlení v souladu s přírodou činí tuto nemovitost obzvlášť atraktivní – ideální pro všechny, kteří se chtějí nastěhovat bez nutnosti renovací a hned se cítit jako doma.
Městský dům se nachází v žádané, dětem přívětivé rezidenční čtvrti v západním Hamburku. Blízkost zelených ploch, jako je Hamburská botanická zahrada, Jenischpark a elbská pláž, nabízí vysoký volnočasový a rekreační potenciál.
Hamburské centrum je dostupné veřejnou dopravou za přibližně 25 minut a dálnice za zhruba osm minut. Školy všech stupňů se nacházejí v blízkosti, včetně Christianeum a Mezinárodní školy Hamburk.
Dobré dopravní spojení je zajištěno prostřednictvím stanic S-Bahn Klein Flottbek a S-Bahn Hochkamp. Nákupní možnosti, lékaři a další služby naleznete v nákupním centru Elbe a v jádrech městských částí Nienstedten, Othmarschen, Osdorf a Blankenese.
Na části vybavení ještě platí zbytková záruka na některé řemeslné práce. Díky rozsáhlé renovaci navíc pravděpodobně nebude potřeba žádných investic v příštích 15 letech.
Všechny údaje jsou uvedeny dle nejlepšího vědomí a svědomí; za omyly se neodpovídá.
V okolí nemovitosti najdete
Stále hledáte to pravé?
Nastavte si hlídacího psa. Nabídky vybrané na míru dostanete souhrnně 1× denně e-mailem. S Premium profilem máte k ruce hlídačů rovnou 5 a když se něco objeví, informují vás obratem.















