Prodej domu • 161 m² bez realitkyHafenstraße 1, , Mecklenburg-Vorpommern
Hafenstraße 1, , Mecklenburg-VorpommernMHD 4 minuty pěšky • ParkováníSnový pozemek přímo u řeky Teterower Peene s přibližně 30 m soukromého vodního pobřeží.
Loděnice vhodná pro lodě do cca 6,00 m a do cca 2,50 m šířky, plus obytný prostor.
Pokud máte rádi přírodu, vyplujte ze své loděnice s veslem proti proudu řeky a můžete se tak setkat s ledňáky, volavkami nebo vlečkami.
Pokud jste rybář, můžete rybařit přímo z pozemku nebo vyplout ze své loděnice s rybářským člunem (součást nabídky včetně silničního přípojnice) směrem k jezeru Kummerower.
Pokud máte rádi delší plavby, opustíte svou loděnici se svým možným kabotážním člunem, který by mohl být umístěn v loděnici. Poté se přes řeku Peene dostanete až k Baltskému moři – například k přístavům Krummin nebo Zinnowitz na břehu zálivu ostrova Usedom.
A i kdybyste nebyli nadšenci do lodí, tato nemovitost je výborně vhodná jako budoucí důchodové bydlení.
Obytný dům (není na seznamu památkových objektů):
Postaven jako rodinný dům pro prvního přístavníka města Neukalen.
Exteriér byl z velké části zrekonstruován, v roce 2011 byl instalován nový střešní krov a nová střešní krytina.
Interiér ještě není dokončen, ale částečně je obýván. V této části je vytápěno velkým kachlovým krbem a moderním krbovými kamny. Je zde možnost instalace solárního systému pro vytápění. Energetický štítek byl již objednán.
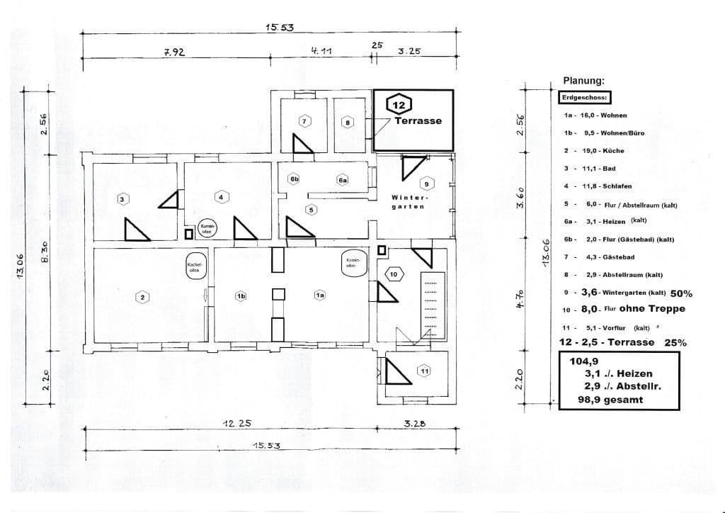
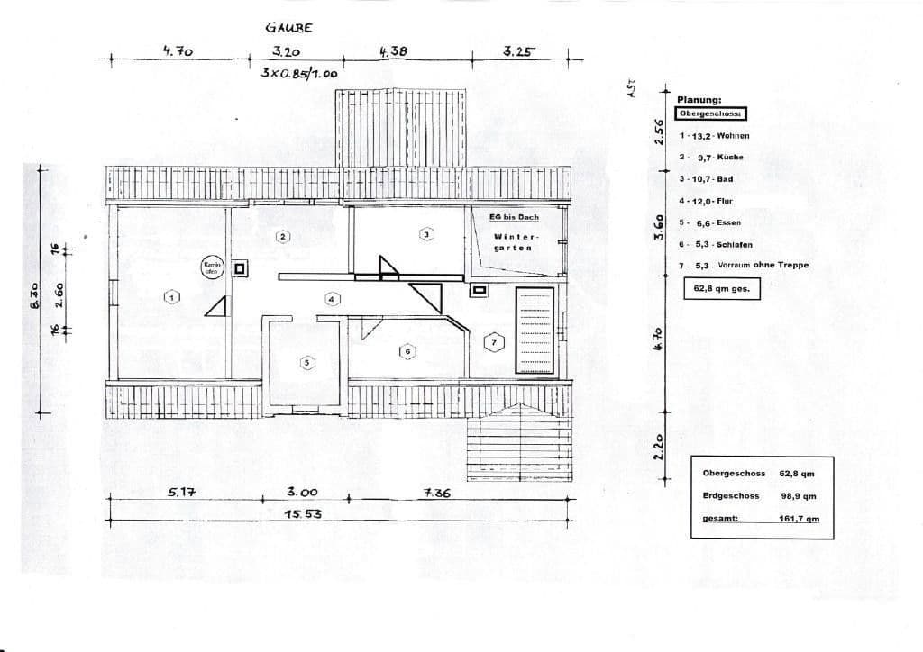
Plán obytného domu (celkem cca 161 m²):
• Přízemí cca 99 m² dle přiloženého půdorysu.
• Patro cca 62 m² dle přiloženého půdorysu, plánováno jako rekreační apartmá.
Nachází se v Peenestadt Neukalen (viz internet), přímo u řeky Teterower Peene.
K dispozici jsou možnosti nákupu, lékařská ordinace, lékárna a spořitelna.
K dispozici jsou také činnosti několika spolků a dobrovolná hasičská jednotka.
Města Rostock, Stralsund, Greifswald nebo ostrov Rügen jsou dosažitelná přibližně za jednu hodinu jízdy autem.
Obrázky lokality a nabízené nemovitosti najdete na internetu – fotograf Berthold Brinkmann z Rostocku zveřejnil krásné snímky v sekci bertbrink, fotografie I, letecké snímky, červenec 2021 Neukalen.
Parkovací místa pro mobilní bydlení:
• 2x osobní automobily v dvojitém přístřešku (carport),
• 1x parkovací místo pro obytný vůz,
• 1x zimní parkovací místo pro přívěsy a lodě.
Parametry nemovitosti
| Stáří | Nad 50 let |
|---|---|
| Číslo inzerátu | 996309 |
| Plocha pozemku | 720 m² |
| Cena za jednotku | 2 453 € / m2 |
| Stav | Před rekonstrukcí |
|---|---|
| Užitná plocha | 161 m² |
| Celkem podlaží | 2 |
Co tato nemovitost nabízí?
| MHD 4 minuty pěšky |
| Parkování | |
| Terasa |
V okolí nemovitosti najdete
Stále hledáte to pravé?
Nastavte si hlídacího psa. Nabídky vybrané na míru dostanete souhrnně 1× denně e-mailem. S Premium profilem máte k ruce hlídačů rovnou 5 a když se něco objeví, informují vás obratem.


















