
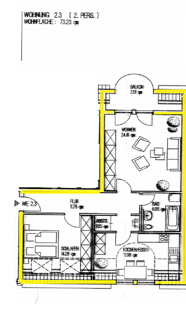
Pronájem bytu 2+1 • 74 m² bez realitky, Porýní-Falc
, Porýní-FalcMHD 2 minuty pěšky • ParkováníDobře dispozovaný 2 pokojový byt s kuchyní a koupelnou ve střešním podlaží.
Byt byl v podzimu 2020 částečně zrekonstruován.
Všimněte si prosím, že při žádosti o termín prohlídky je nutné zaslat vyplněnou osobní informaci – podrobnosti najdete v oddílu: Co očekáváme od nájemce.
Chov zvířat
Vzhledem k velikosti objektu (16 bytových jednotek) nejsou povoleni psi. Povolení jsou okrasní ptáci, akvarijní rybičky, drobní hlodavci a kočka, pokud je chována výhradně v bytě.
Prohlídky
Pátek 07.03.2026 od 14:00 do 16:00. Prosím, žádost o termín zasílejte e-mailem.
Nezapomeňte při žádosti přiložit osobní informaci!!
Klidná lokalita na okraji osady.
Vestavěná kuchyň s myčkou za měsíční poplatek 100,00 €.
Balkón je částečně krytý (skleněná střecha).
Co očekáváme od nájemce
Ve vyplněném formuláři (ke stažení) osobních údajů (celé jméno, současné bydliště, rodinný stav, povolání a informace o aktuálním pracovním poměru) byste se měli v žádosti představit.
Zřetelně rozpoznatelné, KI-generované žádosti budou ignorovány.
Kromě vyplněného formuláře / přihlášky se očekává uvedení kontaktních údajů (e-mail a telefon). V případě, že tyto údaje neuvedete, nebude žádost vyřízena!
V okolí nemovitosti najdete
Stále hledáte to pravé?
Nastavte si hlídacího psa. Nabídky vybrané na míru dostanete souhrnně 1× denně e-mailem. S Premium profilem máte k ruce hlídačů rovnou 5 a když se něco objeví, informují vás obratem.



















