
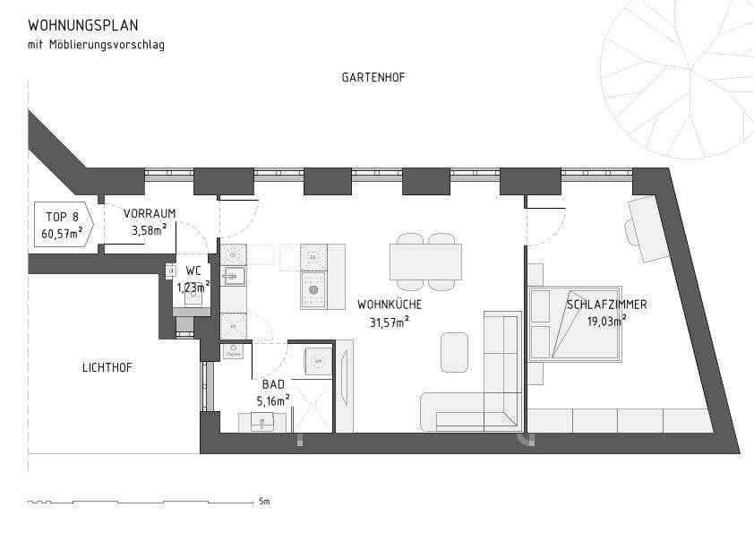
Prodej bytu 2+1 • 61 m² bez realitkyWien 2. Bezirk Wien 1020
Wien 2. Bezirk Wien 1020MHD do minuty pěšky • VýtahTato starší bytová jednotka spojuje nezaměnitelný půvab klasické architektury s rekonstruovanou kvalitou, která výrazně přesahuje obvyklý standard developerských projektů.
V rámci komplexní generální rekonstruce, provedené s velkou péčí o detaily, byla kladena zvláštní pozornost na kvalitní materiály, precizní zpracování a jednotný celkový koncept.
Také krásný roh budovy je již plně zrekonstruován a moderně adaptován.
Vybavení:
• Podlahové topení s přípravou na dálkové vytápění
• Vestavěná kuchyň se zařízeními značky Siemes
• Energeticky úsporná protihluková okna Rehau s trojitým zasklením
• Parkety z dubu Weitzer
• Koupelna se sprchou s italským obkladem z porcelánového kameniva, sušák na ručníky
• Závěsné WC s elektro- a vodním připojením pro sprchové WC
• Masivní dveře Kunex
• Bezpečnostní dveře
• Wolf kondenzační kotel s přípravou pro tepelnou pumpu nebo dálkové vytápění
• Kabelová TV/Internet
• Elektrické zásuvky ve spodní části okenních rámů a mnoho dalšího
• Přípojka krbu v obývacím pokoji a ložnici
• Zazelenaný vnitroblok
• Prostor pro kola, kočárky a místnost na odpadky v přízemí
• Rok výstavby cca 1900
• Velký výtah
• Suchý sklepní koutek o rozloze 3 m²
• Bezbariérový přístup
• Měsíční záloha (BK) 159 EUR, měsíční fond 59 EUR zálohy
MAJETEK JE PŘEDÁN BEZ ZÁVAZKŮ A ZADEFIKOVANÝ.
Žádosti od makléřů nejsou vítány.
Okolí:
U1, U2, S-Bahn Venediger, Au, Stuwerviertel, Vorgartenmarkt, WU, FH, BFI, Webster University, Viertel, zwei, OMV, ÖBB, Town-Town, Prater, Augarten, Donau, Riesenrad, Stadionbad, Austria Campus, Das Muth, Messe Wien, Rad, Highway, Kieser Training, Bilal, Penny, Reinthaler, Das Stuber, Mochi, Brösel, The Cake Tree …
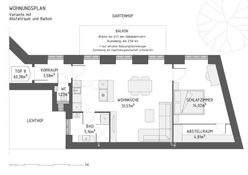
• Parkování rezidentů před domem.
• Přístavba balkonu: „V zásadě musí spoluvlastníci dát souhlas s přístavbou balkonu. V současné době však existuje možnost, v rámci takzvané ‚místní praxe‘, vynutit si právně jednotlivé souhlasy.“
V okolí nemovitosti najdete
Stále hledáte to pravé?
Nastavte si hlídacího psa. Nabídky vybrané na míru dostanete souhrnně 1× denně e-mailem. S Premium profilem máte k ruce hlídačů rovnou 5 a když se něco objeví, informují vás obratem.














