
Pronájem bytu 3+1 • 66 m² bez realitkyUhlandstraße 1, , Sasko
Uhlandstraße 1, , SaskoMHD 4 minuty pěšky • ParkováníNově zrekonstruovaný 3+kk byt se nachází v udržovaném domu pro více rodin a je ihned k nastěhování. Ve všech místnostech byla položena vysoce kvalitní designová podlaha s integrovanou zvukovou izolací pro kročejový hluk. Stěny jsou čerstvě omítnuté, což vytváří svěží a moderní atmosféru. I koupelna byla vylepšena – je vybavena novými značkovými armaturami a novým umyvadlem včetně skříňky pod ním.
Před domem je k dispozici parkovací místo. Zwenkauer See je vzdálené jen několik set metrů a nabízí bohaté možnosti pro volnočasové aktivity i atraktivní lokalitu bydlení.
Byt se nachází v klidné a ustálené obytné části města Zwenkau, pouhých pár minut chůze od jezera Zwenkauer See. Okolí je bohaté na zeleň a vyznačuje se příjemným sousedstvím a vysokou kvalitou života. Obchody, ordinace lékařů a další zařízení každodenní potřeby jsou snadno dostupné.
Díky velmi dobré dopravní dostupnosti se Lipsko dá v závislosti na cíli objevit přibližně za 20 minut. Po nově vybudované spolkové silnici a nedaleké dálnici existuje rychlé a komfortní spojení do lipského centra i do celé metropolitní oblasti. Takto lze skvěle propojit život v přírodě se všemi výhodami blízkosti velkoměsta.
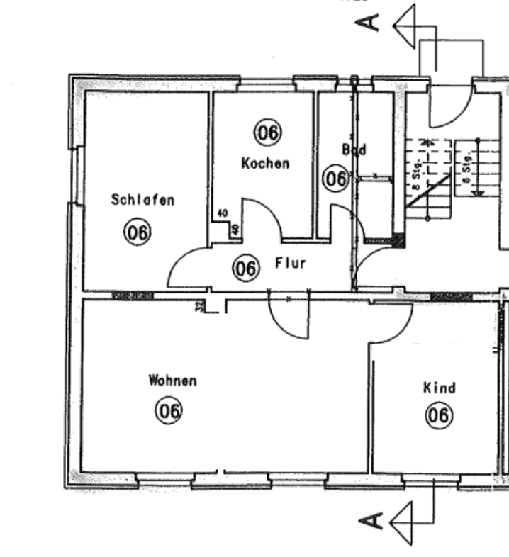
• 3+kk byt s přibližně 65 m² obytné plochy
• Izolační dvojskla
• Vizuálně velmi atraktivní nová podlaha
• Elektroinstalace odpovídá aktuálním technickým standardům
• Prostorná kuchyň s prostorem pro osobní úpravu
• Moderní denní koupelna s dlažbou a vysoce kvalitními značkovými armaturami
• K dispozici sklepní kóje
• Parkovací místo přímo před domem
• Služba správce a úklid domu pro dodatečný komfort
Pronájem je řešen soukromě. Těším se na sympatické a spolehlivé zájemce, kteří ocení hodnotný byt.
Pro podání žádosti potřebuji aktuální výpis ze Schufy, poslední tři výplatní pásky od platící strany nebo, pokud nájem hradí rodina, odpovídající potvrzení, případně studentský průkaz či pracovní smlouvu.
Dále prosím o krátký popis osoby a plánů na nadcházející roky.
V okolí nemovitosti najdete
Stále hledáte to pravé?
Nastavte si hlídacího psa. Nabídky vybrané na míru dostanete souhrnně 1× denně e-mailem. S Premium profilem máte k ruce hlídačů rovnou 5 a když se něco objeví, informují vás obratem.














