
Prodej bytu 3+1 • 83 m² bez realitkyBayreuth Bayreuth Bayern 95447
Bayreuth Bayreuth Bayern 95447MHD 2 minuty pěškyMit diesem Exposé präsentieren wir Ihnen zwei ausbaufähige Rohdachböden in attraktiver Lage von Bayreuth. → Tímto expozen představujeme dvě nedokončené podkroví se značným potenciálem umístěné v atraktivní lokalitě v Bayreuthu.
Die Einheiten befinden sich in einem äußerst gepflegten Mehrfamilienhaus, das über eine Öl-Zentralheizung Baujahr 2024 beheizt wird. → Jednotlivé prostory se nacházejí ve velmi udržovaném bytovém domě, který je vytápěn ústředním olejovým kotlem z roku 2024.
In den Jahren 2025/2026 wurde durch den derzeitigen Eigentümer eine umfassende Aufwertung des Treppenhauses vorgenommen. → V letech 2025/2026 provedl současný majitel komplexní renovaci schodiště.
In diesem Zuge wurden Wände, Decken, Treppen sowie die Wohnungseingangstüren überarbeitet und neu gestrichen. → Při této příležitosti byly zrekonstruovány a znovu natřeny stěny, stropy, schody a vstupní dveře do bytů.
Darüber hinaus wird die Hauseingangstür in Kürze vollständig erneuert, was den positiven Gesamteindruck des Hauses zusätzlich unterstreicht. → Navíc bude brzy kompletně vyměněna vstupní dveře do domu, což ještě více podtrhne pozitivní celkový dojem z budovy.
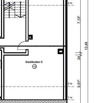
Die Dachböden überzeugen insbesondere durch ihre großzügige Giebelhöhe und eröffnen vielfältige Möglichkeiten für einen individuellen Ausbau. → Podkroví zaujme zejména svou štědrou zastřešovací výškou a nabízí řadu možností pro individuální úpravy.
Durch den Ausbau und die Zusammenlegung der beiden Einheiten lässt sich eine vermietbare Fläche von bis zu ca. 83 m² realisieren. → Spojením a dokončením obou jednotek je možné realizovat pronajímatelnou plochu až přibližně 83 m².
Die grundsätzliche Genehmigung bzw. Zustimmung zum Ausbau seitens der Eigentümergemeinschaft liegt bereits vor und ist entsprechend in der Teilungserklärung des Mehrfamilienhauses verankert. → Základní souhlas či schválení rekonstrukce ze strany společenství vlastníků již existuje a je zakotven v prohlášení o rozdělení bytového domu.
Eine etwaige baurechtliche Genehmigung für den Ausbau ist vom Käufer eigenständig bei der Stadt einzuholen. → Případné stavební povolení k rekonstrukci si musí kupující samostatně vyřídit u města.
Zusätzlich zu den Dachböden können bei Bedarf bis zu 2 Einzelgaragen im Innenhof des Mehrfamilienhauses dazu erworben werden (+12.000€ je Einzelgarage). → K podkrovím lze případně dokoupit až 2 samostatné garáže v areálu domu (+12 000 € za jednu garáž).
Dem Dachboden ist zudem ein eigenes Kellerabteil zugeordnet. → K podkroví náleží také vlastní sklepní kóje.
Die Immobilie befindet sich in einem sehr gepflegten Mehrfamilienhaus im schönen und begehrten Bayreuth. → Nemovitost se nachází ve velmi udržovaném bytovém domě v krásném a žádaném Bayreuthu.
Die Lage verbindet die Vorteile der Innenstadt mit einer angenehmen Wohnqualität: Einkaufsmöglichkeiten, Gastronomie, Nah- und Freizeitangebote befinden sich in fußläufiger Nähe, wodurch ein hoher Wohnkomfort gegeben ist. → Lokalita spojuje výhody centra s příjemnou kvalitou bydlení: obchodní možnosti, gastronomické podniky a nabídka volnočasových aktivit jsou v docházkové vzdálenosti, což přispívá k velmi vysokému komfortu bydlení.
Öffentliche Verkehrsmittel sind gut erreichbar. → Veřejná doprava je dobře dostupná.
- Ölzentralheizung Baujahr 2024 → Ústřední olejové topení z roku 2024
- Ideal ausbaubarer Dachboden → Ideálně využitelné podkroví
- Im Jahr 2025 revitalisiertes Treppenhaus → V roce 2025 zrenovované schodiště
- Im Jahr 2026 Erneuerung der Hauseingangstüre → V roce 2026 výměna vstupních dveří do domu
- Mehrfamilienhaus Baujahr 1964 → Bytový dům z roku 1964
- Kein Denkmalschutz → Není chráněná památková hodnota
- Zentrumsnahe Lage (wenige Minuten in die Altstadt) → Lokalita blízko centra (jen pár minut do historického centra)
- Optimale Anbindung an den öffentlichen Nahverkehr → Optimální spojení s městskou hromadnou dopravou
- Moderne Grundrissgestaltung möglich → Možnost moderního půdorysu
- 2. Obergeschoss → Druhé patro
- Eigenes Kellerabteil → Vlastní sklepní kóje
V okolí nemovitosti najdete
Stále hledáte to pravé?
Nastavte si hlídacího psa. Nabídky vybrané na míru dostanete souhrnně 1× denně e-mailem. S Premium profilem máte k ruce hlídačů rovnou 5 a když se něco objeví, informují vás obratem.





