
Prodej domu • 1208 m² bez realitkyDotzheimer Straße 61 Wiesbaden Wiesbaden Hessen 65197
Dotzheimer Straße 61 Wiesbaden Wiesbaden Hessen 65197MHD do minuty pěšky • Výtah • ParkováníWIESBADEN – DOTZHEIME STRASSE 61
Bytový a obchodní dům byl postaven v roce 1964. Nemovitost disponuje přibližně 1.208 m² pronajímatelných ploch a 8 venkovními parkovacími místy.
Celý objekt je kompletně pronajatý.
Nájemné je však výrazně pod tržní úrovní, takže s minimální investicí bude možné odůvodnit vyšší nájemné.
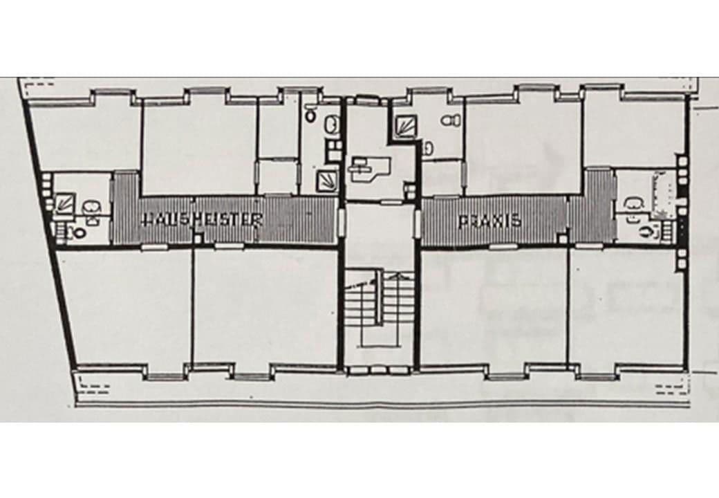
V přízemí se nacházejí dvě maloobchodní plochy: kiosek/DHL a rychlé občerstvení/döner. Obě plochy jsou velmi frekventované díky zastávce autobusu přímo před budovou.
Na patrech 1 až 4 se nachází osm komerčních jednotek (ordinace lékařů, daňové poradenství, advokátní kancelář apod.). Tito nájemci jsou v objektu již velmi dlouho a mají velkou zákaznickou, klientskou či pacientskou základnu.
Na 5. patře se nacházejí čtyři byty. Dva z nich využívá správkyně domu (k bydlení a kanceláři).
V suterénu je přibližně 88 m² skladových prostor pro kiosek a další sklepní prostory pro ostatní nájemce.
Na dvorku se nachází 8 parkovacích míst, která jsou rovněž pronajata. Pro umístění nemovitosti v této části čtvrti Rheingauviertel je k dispozici 8 parkovacích míst jako důležité kritérium pro pronájem.
Nájemní smlouvy v přízemí (kiosek a občerstvení) mají od máje 2028 (kiosek) a od července 2027 (občerstvení) každá možnost prodloužení na dalších 5 let.
Všechny ostatní nájemní smlouvy jsou na dobu neurčitou a je možné je řádně zrušit.
Přeměna kancelářských a ordinacních ploch na byty je technicky s přehledným úsilím možná.
Nemovitost se nachází ve čtvrti Rheingauviertel, která je velmi oblíbená pro městské bydlení.
Tato čtvrť sousedí na východě přímo s čtvrtí Wiesbaden-Mitte, a proto je velmi centrálně situovaná.
Tato čtvrť byla vybudována mezi lety 1898 až přibližně 1908; Gründerzeit-čtvrť je charakterizována atraktivními budovami z přelomu století – pouze na ulici Dotzheimer Straße se nachází 13 kulturně-historicky chráněných budov.
Budova úzce sousedí s ulicí Dotzheimer Straße a disponuje vlastním příjezdem vhodným pro automobily do dvorku, kde se nachází osm parkovacích míst.
V okolí objektu najdete následující nabídky:
– Ordinace lékařů, lékárna, ošetřovatelské služby, advokáti
– Obchody s potravinami, restaurace, pekárna, občerstvení, drogerie, obchod s oděvy
– Kadeřnictví, nehtové studio, kosmetické studio, taxislužba
– Evangelická církev, katolická církev
– Školy, gymnázia
… a mnoho dalšího.
Zejména se jako přímý soused nalevo nachází velmi velká drogerie dm, která rovněž přispívá k vysoké frekvenci návštěv.
Před budovou se nachází autobusová zastávka „Dreiweidenstraße“ na straně objektu a o několik metrů dále, na protější straně ulice, zastávka „Eltviller Straße“. Zde zastavují linky 4, 17, 18, 23, 24, 27 a 45.
Všechny komerční i obytné jednotky jsou ve výborném stavu. Nájemci se o své pronajaté prostory řádně starají.
Společné prostory jsou též v bezvadném stavu a pravidelně se čistí.
V uplynulých 10 letech byly provedeny následující rekonstrukční práce:
– Všechna okna byla vyměněna.
– Revize výtahové kabiny proběhla v roce 2014.
– Veškeré elektrické instalace (s výjimkou jedné komerční jednotky) byly vyměněny.
– Bylo instalováno nové centrální plynové topení.
– Přední vnější fasáda je izolována a nově natřena (v zadní části tomu tak není).
Výtah spojuje suterén až do 4. patra.
Jelikož se byty nacházejí v 5. patře, není jejich bezbariérový přístup zajištěn.
D.R.E.A.M.
Deutsche Real Estate Asset Management GmbH
Siesmayerstraße 23
60323 Frankfurt am Main
Ředitel: Dipl.-Wi.-Ing. Franz Lucien Mörsdorf
– Sídlo společnosti: Frankfurt am Main
– Soud pro obchodní rejstřík: Frankfurt am Main HRB 77596
Parametry nemovitosti
| Stáří | Nad 50 let |
|---|---|
| Číslo inzerátu | 998803 |
| Plocha pozemku | 467 m² |
| Cena za jednotku | 3 458 € / m2 |
| Stav | Dobrý |
|---|---|
| Užitná plocha | 1 208 m² |
| Celkem podlaží | 7 |
Co tato nemovitost nabízí?
| Sklep | |
| Výtah | |
| MHD 0 minut pěšky |
| Parkování |
V okolí nemovitosti najdete
Stále hledáte to pravé?
Nastavte si hlídacího psa. Nabídky vybrané na míru dostanete souhrnně 1× denně e-mailem. S Premium profilem máte k ruce hlídačů rovnou 5 a když se něco objeví, informují vás obratem.






























