
Prodej bytu 4+1 • 82 m² bez realitkyEggstätt Eggstätt Bayern 83125
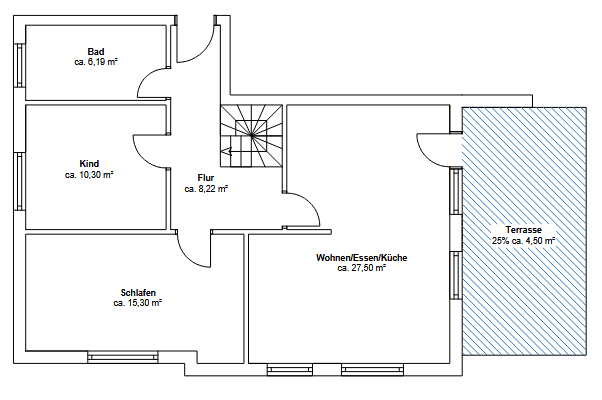
Eggstätt Eggstätt Bayern 83125MHD 2 minuty pěšky • ParkováníK prodání je udržovaný a kvalitně vybavený 4+1 pokojový byt v přízemí v Eggstätt. Jeden z těchto pokojů je světlý rekreační pokoj nacházející se v suterénu, ke kterému vede z přízemí schodiště uvnitř bytu. Byt zaujme otevřeným, promyšleným dispozičním řešením, světlými místnostmi a prvotřídním vybavením – ideální pro páry, malé rodiny nebo náročné vlastníky. K bytu patří terasa o rozloze cca 18 m² a zahradní část o rozloze cca 30 m².
Obytná plocha činí cca 82 m², přičemž rekreační pokoj v suterénu se započítává z 50 % a terasa z 25 % (podle výpočtu obytné plochy dle vyhlášky o výpočtu obytné plochy). Celková užitná plocha však činí cca 109 m².
Dům je vybaven olejovým ústředním topením.
INVESTIČNÍ PŘÍLEŽITOST
Byt je od června 2024 pronajat. Základní nájemné činí 1 190 € měsíčně plus 300 € předplatné na provozní náklady.
Roční základní nájemné: 14 280 €. Atraktivní investiční příležitost ve vyhledávané obytné lokalitě.
Byt se nachází v centrální klidné obytné zóně Eggstätt, na okraji chráněné přírodní oblasti Eggstätt-Hemhofer Seenplatte. Supermarket, lékárna, lékaři, mateřské školy, základní škola a gastronomie jsou dostupné pěšky. Oblast nabízí vysokou hodnotu pro volný čas a odpočinek díky jezerům, přírodě a aktivnímu spoluvlastnickému životu.
Rozložení a vybavení:
- Prostorný obývací/jídelní prostor s přímým přístupem na terasu
- Otevřený kuchyňský kout s kvalitní kuchyní značky Nolte (2018), systémem Bora a spotřebiči Miele – zahrnuto v kupní ceně
- Dvě dobře uspořádané ložnice plus navíc další pokoj v suterénu (s denním světlem a radiátorem)
- Zmodernizovaná koupelna (částečná rekonstrukce 2024)
- Podlahové vytápění v přízemí
- Podlahové krytiny: dlaždice a laminát
- Suterén (přímý přístup z bytu schodištěm a zvenčí společným schodištěm)
- Carport a parkovací místo
Doplňkově:
- Přípojka pro pračku v koupelně
- Vlastní sklepní místnost (cca 10 m²)
- Společný sklep na kolo
- Suchárna
Fotografie pocházejí z doby před nastěhováním současných nájemníků.
Za účelem ochrany soukromí nebyly zveřejněny aktuální interiérové snímky.
V okolí nemovitosti najdete
Stále hledáte to pravé?
Nastavte si hlídacího psa. Nabídky vybrané na míru dostanete souhrnně 1× denně e-mailem. S Premium profilem máte k ruce hlídačů rovnou 5 a když se něco objeví, informují vás obratem.










