
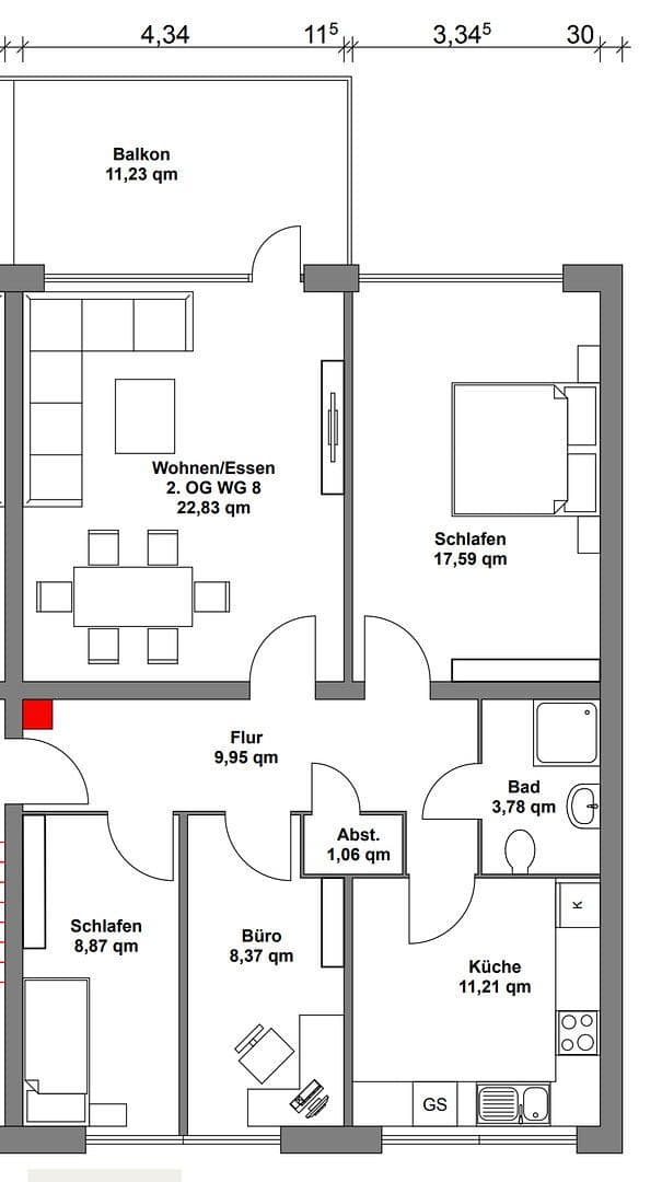
Pronájem bytu 4+1 • 86 m² bez realitkySorthmannweg 9 Hamburg Lokstedt Hamburg 22529
Sorthmannweg 9 Hamburg Lokstedt Hamburg 22529VybavenoPřímo od majitele. Krásný, jako nový, 4-pokojový byt s obrovským balkonem orientovaným na jih. Kompletně zařízený nábytkem. Velká chytrá TV v obývacím pokoji. Hezká vestavěná kuchyň s vestavěnou mikrovlnnou troubou, myčkou, sporákem a velkou chladicí-mrazicí kombinací. Všechno od Bosch. Dětské pokoje lze využít jako hostinské pokoje nebo jako domácí kancelář.
Stání v zadní části domu je k dispozici na vyžádání.
Oblíbené centrum Eimsbüttelu (Osterstraße, Heußweg, Stellinger Weg) s různými obchody, restauracemi a kavárnami, vše jen 500 m. Také supermarkety, diskontní obchody a pobočky různých bank. Velcí zaměstnavatelé jako Nestoria, Beiersdorf apod. v bezprostředním okolí.
přibližně 30 m – autobus 181,
přibližně 650 m – stanice metra Osterstraße (linka U2),
přibližně 450 m – autobusy Metrobus 20 a 25, noční autobus 600.
- Chytrá TV
- velký balkon
- parkovací místo
- velká postel typu boxspring (180 cm)
- procházející se velká sprcha s termostatem
- kompletně vybavená kuchyň
... a mnoho dalšího!
Minimální doba pronájmu 3 měsíce. Konečné úklidové poplatky 250 Euro. Všechny náklady včetně, kromě poplatku GEZ. Domácí mazlíčci nejsou povoleni.
V okolí nemovitosti najdete
Stále hledáte to pravé?
Nastavte si hlídacího psa. Nabídky vybrané na míru dostanete souhrnně 1× denně e-mailem. S Premium profilem máte k ruce hlídačů rovnou 5 a když se něco objeví, informují vás obratem.
















