
- 1+1
- 32 m²
(Poznámka: Anglická verze textu je uvedena níže.)
Přímo od majitele – ušetříte na provizi makléře
Koupíte prázdný byt, který je vhodný k okamžitému nastěhování, případně jej můžete zrenovovat pro pronájem nebo vlastní bydlení
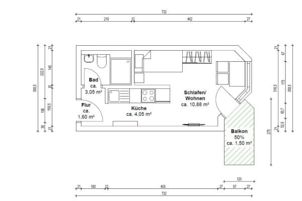
Světlý a tichý 1-pokojový studio byt o rozloze cca 27 m² s balkonem/loggií, parkovacím místem na parkovacím patře a úložným prostorem na půdě, nacházející se v Mannheim-Neckarau/Almenhof na Neckarauer Str. na zadní straně budovy. Přestože je lokalizován u hlavní dopravní tepny, byt je velmi klidný.
Byt:
Nachází se v 1. patře (s výtahem). Po vstupu úzký vestavěný sál, vlevo menší skladovací místnost, vpravo koupelna určená pro WC a sprchovací kout. Obývací pokoj s vyřezaným prostorem pro kout kuchyňku/vstavanou kuchyň a pračku. Stropní ventilátor. Světlý prostor proniká světlo ze severozápadu.
Byt i koupelna jsou připraveny k renovaci a lze je podle vlastního vkusu, účelu i rozpočtu individuálně upravit a následně nastěhovat se.
Balkon:
Světlý, slunný a rozprostřený přes celou šířku bytu, ideální také pro instalaci solární balkonové elektrárny.
Parkovací místo:
Z bytu je vidět vyhrazené parkovací místo. Parkovací řád umožňuje i odstavování odhlášených vozidel s potřebným pojištěním. V případě potřeby je možné si pronajmout další místa na parkovacím patře nebo v podzemní garáži.
Úložný prostor na půdě:
K dispozici je oddělený prostor s dřevěnou mřížkou – suchý, čistý, bez zápachu (bez pachů sklepa), přístupný výtahem a jedním schodištěm, s dostatkem úložného prostoru.
──────────────────────────
Anglická verze:
(Exposé lze zaslat na vyžádání)
Kupte přímo od majitele – ušetříte na provizi makléře
Okamžité nastěhování do prázdného bytu, s možností renovace pro pronájem nebo vlastní bydlení
Světlý a tichý 1-pokojový studio byt o rozloze cca 27 m², s balkonem/loggií, parkovacím místem na parkovacím patře a úložným prostorem na půdě, v Mannheim-Neckarau/Almenhof na Neckarauer Str. na zadní straně budovy. Přestože se nachází u hlavní komunikace, je byt velmi klidný.
Byt:
V 1. patře (s výtahem) se nachází malá chodba, vlevo malý sklad a vpravo koupelna (určená pro WC a sprchu).
Obývací pokoj s vyřezaným prostorem pro kuchyňku/vstavanou kuchyň a pračku. Stropní ventilátor. Světlo vstupuje ze severozápadu.
Byt i koupelna jsou připraveny k renovaci a mohou být dle vašich představ, potřeb a rozpočtu individuálně upraveny před nastěhováním.
Balkon:
Světlý, slunný a rozprostřený přes celou šířku bytu, ideální rovněž pro solární balkonovou elektrárnu.
Parkovací místo:
Viditelné přímo z bytu. Parkovací předpis také dovoluje stání odhlášených vozidel s příslušným pojištěním.
V případě potřeby lze pronajmout další místa na parkovacím patře nebo v podzemní garáži.
Úložný prostor na půdě:
Oddělená, dřevěnou mřížkou vymezená plocha – suchá, čistá, bez zápachu (bez pachů sklepa), přístupná pomocí výtahu a jedním schodištěm, s dostatkem místa pro uložení.
──────────────────────────
Velmi atraktivní lokalita, vhodná též pro pronájem:
V okolí se nacházejí tři vysoké školy (Mannheim University of Applied Sciences, Fakulta designu / Mannheim University of Applied Sciences a soukromá škola managementu).
Výborné dopravní spojení:
Přímo před budovou je zastávka tramvaje a autobusu (linka 1, zastávka Lettestraße).
Tramvaj vás během pár minut doveze přímo na hlavní nádraží v Mannheimu/nebo na univerzitu v Mannheimu a dále lze pokračovat k Hochschule Ludwigshafen nebo k Duales Hochschule Mannheim. Heidelberg je také snadno dosažitelný.
V blízkosti se nachází i závod John Deere v Mannheimu.
Skvělá infrastruktura:
Obchody pro každodenní potřeby, několik supermarketů (DM, Aldi), dvě fastfood restaurace (Burger King, McDonald’s) a 24hodinová čerpací stanice (Shell) jsou dosažitelné pěšky.
Naproti se nachází nedávno postavená centrála hasičů v Mannheimu a nově vybudované zdravotní centrum/ordinace.
──────────────────────────
Budova:
Přibližně 95 obytných jednotek (převážně 1- a 2-pokojových bytů), postavená kolem roku 1983, čtyři patra plus půdní prostor, výtah, parkovací patro na zadní straně budovy, podzemní garáž,
služby domovníka (není stanovena rotační úklidová povinnost apod.).
Centrální topná soustava na dálkové vytápění byla před několika lety modernizována. Energetický průkaz je k dispozici. V podzemní garáži je také sklep na kola.
Domácí mazlíčci jsou povoleni.
Dokumenty:
Vše je k dispozici: poslední vyúčtování a podnikatelské plány, vyhláška o rozdělení společných částí s vnitřními pravidly, zápisy ze schůzí vlastníků, sbírka usnesení, půdorysy a plány z katastru nemovitostí atd.
Společenství vlastníků bytů:
Nedávno proběhla výměna správce, plánují se některé rekonstrukce.
Rezerva na údržbu je v současnosti na stabilní úrovni v řádu šesticiferné částky.




Stále hledáte to pravé?
Nastavte si hlídacího psa. Nabídky vybrané na míru dostanete souhrnně 1× denně e-mailem. S Premium profilem máte k ruce hlídačů rovnou 5 a když se něco objeví, informují vás obratem.