
Prodej domu • 595 m² bez realitky, Braniborsko
, BraniborskoMHD 2 minuty pěšky • ParkováníNa prodej je atraktivní investiční objekt v Rüdersdorfu u Berlína, který se skládá z panského domu s pěti bytovými jednotkami a samostatně stojící remízy. Soubor se nachází v klidné obytné oblasti na berlínském venkově a zaujal přehlednou strukturou, jednotným standardem vybavení a stabilními příjmy z nájmu.
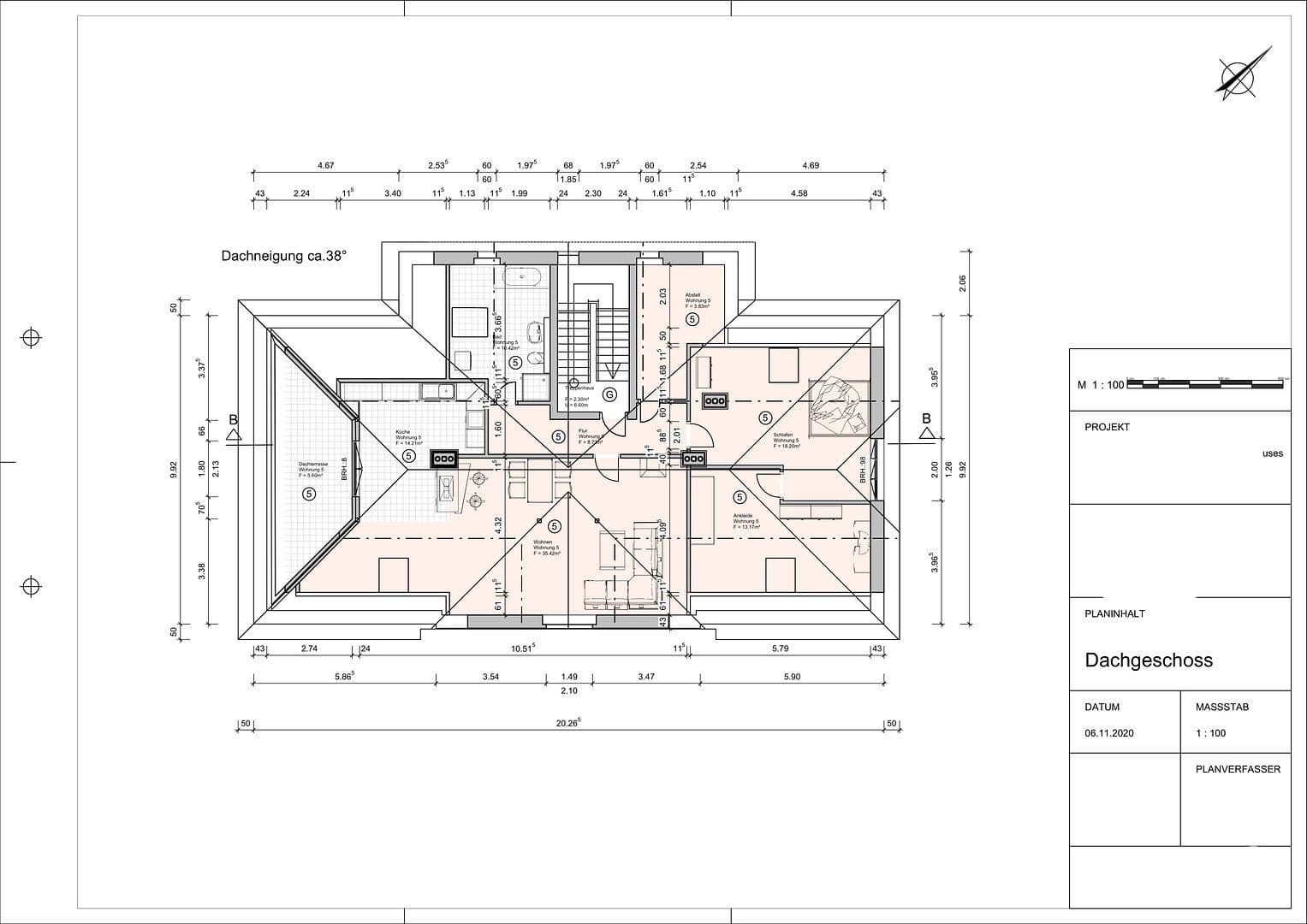
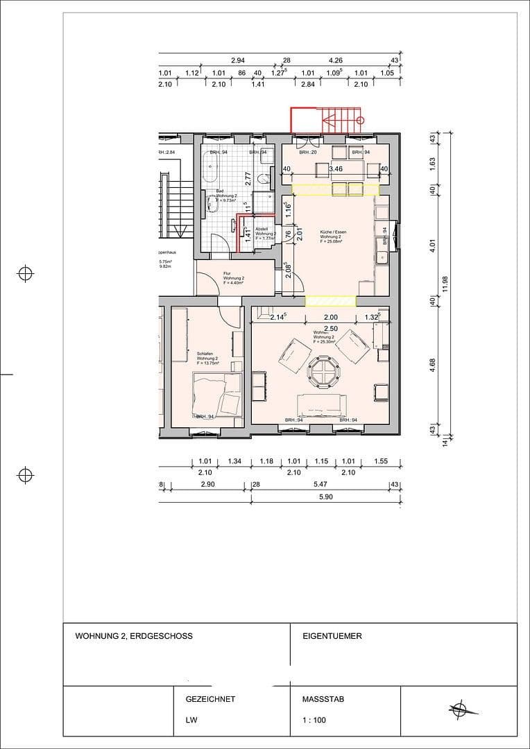
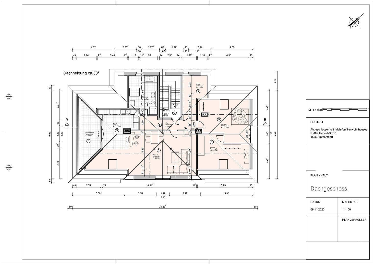
Panský dům zahrnuje pět pronajatých bytových jednotek s velikostí bytů mezi přibližně 75 m² a 112 m². Byty se nacházejí v přízemí, patře i podkroví a disponují přehlednými dispozicemi a částečně také balkonovými, terasovými či střechovými terasovými prostory. Plně zařízené sklepní patro s nájemnickými sklepy, technickými a společnými prostory doplňuje budovu funkčně.
Samostatně stojící remíza je upravena jako samostatný rodinný dům a disponuje přibližně 122 m² obytné plochy. Slouží zároveň jako referenční vzor pro standard vybavení bytových jednotek v panském domě. Remíza je součástí stávajícího pronájmu a zároveň nabízí dodatečnou flexibilitu pro budoucí koncepce využití.
Celková obytná plocha investičního objektu činí přibližně 595 m². Roční aktuální příjmy z nájmu (od 1. čtvrtletí 2026) dosahují přibližně 83 455 €, skládajících se z čistých nájemných sazeb a dodatečných příjmů za parkovací místa. Průměrná čistá nájemná sazba činí přibližně 11,69 €/m².
Budova je připojena na obecní vodovodní a kanalizační síť. Topení je zajištěno pomocí bivalentního topného systému s tepelným čerpadlem a podporou plynového topení. Energetický štítek je k dispozici.
Nemovitost je vhodná zejména pro investory, kteří kladou důraz na přehledný počet jednotek, solidní mix stávajících pronájmů a dlouhodobou pronajímatelnost.
Remízu lze zakoupit i samostatně. V současné době není pronajata.
Dále se na dvou sousedních pozemcích nacházejí dva rodinné domy, které by bylo možné zakoupit společně s tímto objektem v rámci balíčku.
Rüdersdorf u Berlína, nacházející se v okrese Märkisch-Oderland, nabízí dobrou infrastrukturu s možnostmi nákupu pro běžné potřeby, dostupností lékařů i škol. Spojení s Berlínem je zajištěno veřejnou dopravou a také nedalekými dálnicemi A10 a A11. Okolí je charakterizováno jezery a lesy, které nabízejí rozmanité možnosti pro volnočasové aktivity, jako je vodní sport a turistika.
Vybavení celého investičního objektu následuje jednotný, nadčasový koncept, který se odráží jak v panském domě s pěti bytovými jednotkami, tak v samostatně stojící remíze. Přehledné dispozice, odolné materiály a promyšlená struktura prostoru charakterizují všechny jednotky a vytvářejí spolehlivý základ pro dlouhodobou pronajímatelnost.
Obytné prostory se vyznačují štědrými okny, světlými efekty a otevřeným, zároveň promyšleným uspořádáním. V remíze se tento přístup projeví obzvláště: Prostorný obývací, jídelní a kuchyňský prostor s viditelnými dřevěnými trámy, příjemnou výškou stropů a přímým přístupem na terasu a do zahrady je příkladem standardu vybavení a dokončení, jaký byl použit i v bytech panského domu.
Všechny jednotky nabízejí funkčně a nadčasově zařízené koupelny, jasně oddělené prostory a flexibilně využitelné obytné i vedlejší místnosti. Částečně přítomné balkóny, terasy či střechové terasy rozšiřují obytný prostor směrem ven a zvyšují kvalitu pobytu.
Spojení vnitřního a venkovního prostoru, klidná a světlá koncepce interiérů a důsledně jednotné vybavení napříč všemi jednotkami podtrhují trvale udržitelný charakter objektu. Remíza tak slouží jako konkrétní ukázka kvalitního standardu celého souboru.
Celkově vzniká soudržný obytný koncept, který propojuje funkčnost, nadčasový design a solidní stavební kvalitu a zároveň vyhovuje požadavkům moderních nájemníků i očekáváním vůči dlouhodobě hodnotné investiční nemovitosti.
Parametry nemovitosti
| Stáří | Nad 50 let |
|---|---|
| Stav | Po rekonstrukci |
| PENB | B - Velmi úsporná |
| Celkem podlaží | 3 |
| Dostupné od | 4. 4. 2026 |
|---|---|
| Číslo inzerátu | 1004780 |
| Užitná plocha | 595 m² |
| Cena za jednotku | 3 866 € / m2 |
Co tato nemovitost nabízí?
| Balkón | |
| MHD 2 minuty pěšky |
| Sklep | |
| Parkování |
V okolí nemovitosti najdete
Stále hledáte to pravé?
Nastavte si hlídacího psa. Nabídky vybrané na míru dostanete souhrnně 1× denně e-mailem. S Premium profilem máte k ruce hlídačů rovnou 5 a když se něco objeví, informují vás obratem.

















